














Book your tour. Save an average of $18,473. We'll handle the rest.
- Confirmed tours
- Get matched & compare top deals
- Expert help, no pressure
- No added fees
Estimated value based on Jome data, T&C apply























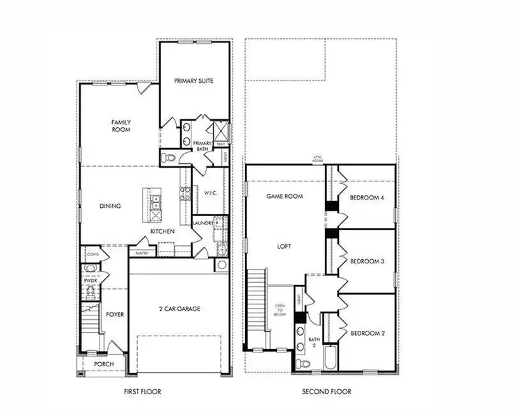
- 4 bd
- 2.5 ba
- 2,265 sqft
263 Charles Ridge Dr, Montgomery, TX 77316
Why tour with Jome?
- No pressure toursTour at your own pace with no sales pressure
- Expert guidanceGet insights from our home buying experts
- Exclusive accessSee homes and deals not available elsewhere
Jome is featured in
- Single-Family
- Quick move-in
- $125.62/sqft
- $1,200/annual HOA
Home description
Brand new, energy-efficient home available by Aug 2025! Inside, the main floor primary suite features dual sinks and a spacious walk-in closet. White cabinets with white quartz countertops and white backsplash, light brown EVP flooring and multi-tone carpet. Located in Conroe off SH-105, Pine Lake Cove is just minutes from Lake Conroe. The community is zoned in the sought-after Montgomery ISD and is near parks and entertainment. Groundbreaking energy efficiency is also built seamlessly into every home in this community so you can spend less on utility bills and more on the things that matter most.* Each of our homes is built with innovative, energy-efficient features designed to help you enjoy more savings, better health, real comfort and peace of mind.
Meritage Homes Realty, MLS 78288227
May also be listed on the Meritage Homes website
Information last verified by Jome: Today at 2:35 AM (December 6, 2025)
Home highlights
Book your tour. Save an average of $18,473. We'll handle the rest.
We collect exclusive builder offers, book your tours, and support you from start to housewarming.
- Confirmed tours
- Get matched & compare top deals
- Expert help, no pressure
- No added fees
Estimated value based on Jome data, T&C apply
Home details
- Property status:
- Move-in ready
- Size:
- 2,265 sqft
- Stories:
- 2
- Beds:
- 4
- Baths:
- 2
- Half baths:
- 1
- Garage spaces:
- 2
Construction details
- Builder Name:
- Meritage Homes
- Completion Date:
- September, 2025
- Year Built:
- 2025
- Roof:
- Composition Roofing
Home features & finishes
- Construction Materials:
- CementBrick
- Flooring:
- Vinyl FlooringTile Flooring
- Foundation Details:
- Slab
- Garage/Parking:
- Door OpenerGarageAttached Garage
- Home amenities:
- Green Construction
- Interior Features:
- Wired For SecurityWalk-In ClosetFoyerPantry
- Kitchen:
- DishwasherMicrowave OvenOvenDisposalGas CooktopKitchen IslandGas OvenKitchen Range
- Laundry facilities:
- DryerWasher
- Lighting:
- Lighting
- Property amenities:
- Porch
- Rooms:
- Kitchen
Utility information
- Heating:
- Electric Heating, Heat Pump, Water Heater
- Utilities:
- HVAC

Community details
Pine Lake Cove - Traditional Series
by Meritage Homes, Montgomery, TX
- 23 homes
- 1,287 - 2,265 sqft
View Pine Lake Cove - Traditional Series details
More homes in Pine Lake Cove - Traditional Series
About the builder - Meritage Homes
Neighborhood
Home address
- City:
- Montgomery
- County:
- Montgomery
- Zip Code:
- 77316
Schools in Montgomery Independent School District
GreatSchools’ Summary Rating calculation is based on 4 of the school’s themed ratings, including test scores, student/academic progress, college readiness, and equity. This information should only be used as a reference. Jome is not affiliated with GreatSchools and does not endorse or guarantee this information. Please reach out to schools directly to verify all information and enrollment eligibility. Data provided by GreatSchools.org © 2025
Places of interest
Getting around
Air quality
Noise level
A Soundscore™ rating is a number between 50 (very loud) and 100 (very quiet) that tells you how loud a location is due to environmental noise.
Natural hazards risk
Climate hazards can impact homes and communities, with risks varying by location. These scores reflect the potential impact of natural disasters and climate-related risks on Montgomery County
Provided by FEMA

Considering this home?
Our expert will guide your tour, in-person or virtual
Need more information?
Text or call (888) 486-2818
Financials
Estimated monthly payment
Similar homes nearby
Recently added communities in this area
Nearby communities in Montgomery
New homes in nearby cities
More New Homes in Montgomery, TX
Meritage Homes Realty, MLS 78288227
Copyright © 2025, Houston Realtors Information Service, Inc. The information provided is exclusively for consumers’ personal, non-commercial use, and may not be used for any purpose other than to identify prospective properties consumers may be interested in purchasing. Information is deemed reliable but not guaranteed. All information provided should be independently verified.
Read moreLast checked Dec 6, 8:50 pm
- Home
- New homes
- Texas
- Greater Houston Area
- Montgomery County
- Montgomery
- Pine Lake Cove - Traditional Series
- 263 Charles Ridge Dr, Montgomery, TX 77316































