













































- 4 bd
- 2.5 ba
- 2,397 sqft
2111 Dunbar Dr, Sherman, TX 75092
- Single-Family
- $144.38/sqft
- $625/annual HOA
- 0.13-acre lot
New Homes for Sale Near 2111 Dunbar Dr, Sherman, TX 75092
About this Home
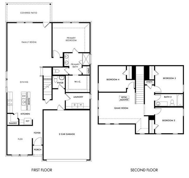
Brand new, energy-efficient home available by Sep 2025! Prepare dinner at the convenient kitchen island without missing the conversation in the adjacent family room. Versatile flex space is ideal as a study or formal dining room. Upstairs, the kids will love the spacious game room. Small-town charm meets modern convenience in Sherman, located 40 miles north of the Dallas metroplex and recognized as one of the best small cities to live in. Westmoor residents will enjoy playgrounds, trail access, and a scenic greenbelt. Groundbreaking energy efficiency is also built seamlessly into every home in this community so you can spend less on utility bills and more on the things that matter most. Each of our homes is built with innovative, energy-efficient features designed to help you enjoy more savings, better health, real comfort and peace of mind.
Meritage Homes Realty, MLS 20999420
May also be listed on the Meritage Homes website
Information last verified by Jome: Today at 1:05 AM (March 10, 2026)
Home details
- Property status:
- Sold
- Lot size (acres):
- 0.13
- Size:
- 2,397 sqft
- Stories:
- 2
- Beds:
- 4
- Baths:
- 2
- Half baths:
- 1
- Garage spaces:
- 2
- Fence:
- Wood Fence
Construction details
- Builder Name:
- Meritage Homes
- Completion Date:
- October, 2025
- Year Built:
- 2025
- Roof:
- Composition Roofing
Home features & finishes
- Construction Materials:
- BrickRockStone
- Flooring:
- Ceramic FlooringVinyl FlooringCarpet FlooringTile Flooring
- Foundation Details:
- Slab
- Garage/Parking:
- Door OpenerGarageAttached Garage
- Home amenities:
- ENERGY STAR Certified
- Interior Features:
- Walk-In ClosetBlinds
- Kitchen:
- DishwasherMicrowave OvenOvenDisposalGas Oven
- Laundry facilities:
- WasherUtility/Laundry Room
- Lighting:
- Lighting
- Property amenities:
- PatioSmart Home SystemPorch
- Rooms:
- Flex RoomKitchenGame RoomDining RoomFamily RoomPrimary Bedroom Downstairs
Utility information
- Heating:
- Thermostat
- Utilities:
- HVAC, City Water System, High Speed Internet Access, Curbs

Community details
Westmoor
by Meritage Homes, Sherman, TX
- 14 homes
- 1,659 - 2,357 sqft
View Westmoor details
Community amenities
- Energy Efficient
- Playground
- Greenbelt View
- Walking, Jogging, Hike Or Bike Trails
More homes in Westmoor
- Home at address 2210 Rannoch St, Sherman, TX 75092

$308,104
Under construction- 4 bd
- 3 ba
- 2,059 sqft
2210 Rannoch St, Sherman, TX 75092
- Home at address 2206 Rannoch St, Sherman, TX 75092

$321,700
Under construction- 4 bd
- 3 ba
- 2,260 sqft
2206 Rannoch St, Sherman, TX 75092
- Home at address 2231 Rannoch St, Sherman, TX 75092

$326,360
Under construction- 4 bd
- 3 ba
- 2,059 sqft
2231 Rannoch St, Sherman, TX 75092
- Home at address 404 Castle Rd, Sherman, TX 75092

$328,360
Move-in ready- 4 bd
- 3 ba
- 2,059 sqft
404 Castle Rd, Sherman, TX 75092
- Home at address 2225 Dunbar Dr, Sherman, TX 75092

$335,283
Under construction- 4 bd
- 2.5 ba
- 2,357 sqft
2225 Dunbar Dr, Sherman, TX 75092
- Home at address 2219 Rannoch St, Sherman, TX 75092

$338,525
Under construction- 4 bd
- 3 ba
- 2,059 sqft
2219 Rannoch St, Sherman, TX 75092
About the builder - Meritage Homes

- 324communities on Jome
- 2,721homes on Jome
Neighborhood
Home address
Schools in Sherman Independent School District
GreatSchools’ Summary Rating calculation is based on 4 of the school’s themed ratings, including test scores, student/academic progress, college readiness, and equity. This information should only be used as a reference. Jome is not affiliated with GreatSchools and does not endorse or guarantee this information. Please reach out to schools directly to verify all information and enrollment eligibility. Data provided by GreatSchools.org © 2025
Places of interest
Getting around
Noise level
A Soundscore™ rating is a number between 50 (very loud) and 100 (very quiet) that tells you how loud a location is due to environmental noise.
Financials
Nearby communities in Sherman
Homes in Sherman by Meritage Homes
Recently added communities in this area
Other Builders in Sherman, TX
Nearby sold homes
New homes in nearby cities
More New Homes in Sherman, TX
Meritage Homes Realty, MLS 20999420
IDX information is provided exclusively for personal, non-commercial use, and may not be used for any purpose other than to identify prospective properties consumers may be interested in purchasing. You may not reproduce or redistribute this data, it is for viewing purposes only. This data is deemed reliable, but is not guaranteed accurate by the MLS or NTREIS.
Read moreLast checked Mar 10, 4:00 am
- Jome
- New homes search
- Texas
- Dallas-Fort Worth Area
- Grayson County
- Sherman
- Westmoor
- 2111 Dunbar Dr, Sherman, TX 75092















































