









Book your tour. Save an average of $18,473. We'll handle the rest.
We collect exclusive builder offers, book your tours, and support you from start to housewarming.
- Confirmed tours
- Get matched & compare top deals
- Expert help, no pressure
- No added fees
Estimated value based on Jome data, T&C apply










































- 4 bd
- 3.5 ba
- 2,872 sqft
12038 Maple Oak Dr, Houston, TX 77066
Why tour with Jome?
- No pressure toursTour at your own pace with no sales pressure
- Expert guidanceGet insights from our home buying experts
- Exclusive accessSee homes and deals not available elsewhere
Jome is featured in
- Single-Family
- Quick move-in
- $144.56/sqft
- $1,025/annual HOA
Home description
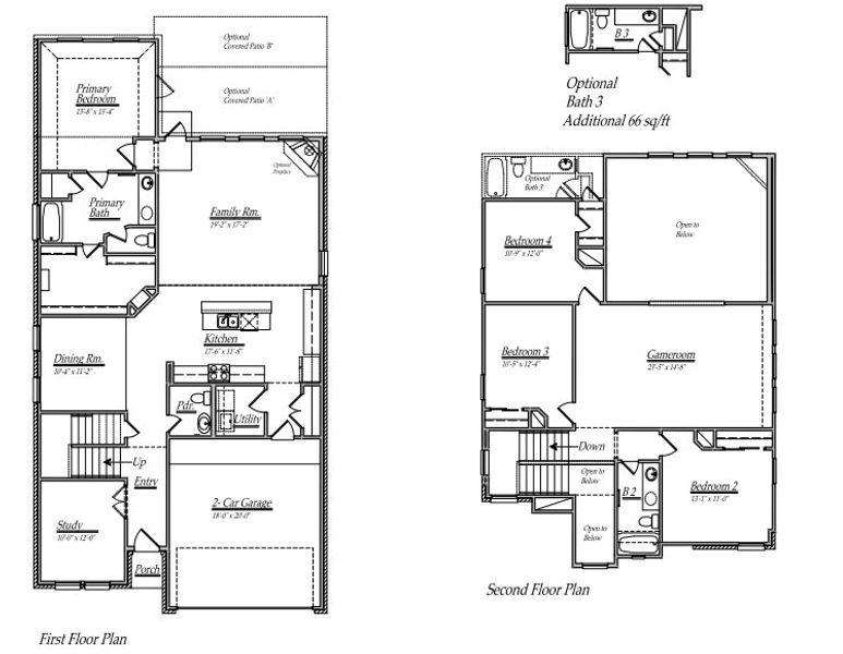
NEW CONSTRUCTION by LONG LAKE - Welcome home to 12038 Maple Oak Drive located in the highly sought-after Champions Oak, a magnificent gated community, and zoned to Klein ISD. With meticulous attention to detail and tremendous upgrades throughout, this exquisite residence showcases a remarkable floor plan featuring 4 bedrooms, 3.5 baths, home office, game room, a generous sized covered patio, and a convenient attached 2-car garage. Get ready to be enchanted by the breathtaking features. Don't miss this opportunity. Call now to discover more details about this exceptional plan.
Nan & Company Properties - Corporate Office (Heights), MLS 78070313
May also be listed on the Long Lake Ltd. website
Information last verified by Jome: Today at 2:33 AM (April 21, 2026)
Book your tour. Save an average of $18,473. We'll handle the rest.
We collect exclusive builder offers, book your tours, and support you from start to housewarming.
- Confirmed tours
- Get matched & compare top deals
- Expert help, no pressure
- No added fees
Estimated value based on Jome data, T&C apply
Home details
- Property status:
- Move-in ready
- Size:
- 2,872 sqft
- Stories:
- 2
- Beds:
- 4
- Baths:
- 3
- Half baths:
- 1
- Garage spaces:
- 2
Construction details
- Builder Name:
- Long Lake Ltd.
- Year Built:
- 2025
- Roof:
- Composition Roofing
Home features & finishes
- Appliances:
- Sprinkler System
- Construction Materials:
- BrickStone
- Cooling:
- Ceiling Fan(s)
- Flooring:
- Carpet FlooringTile Flooring
- Foundation Details:
- Slab
- Garage/Parking:
- GarageAttached Garage
- Home amenities:
- ENERGY STAR CertifiedGreen Construction
- Interior Features:
- Ceiling-HighWalk-In ClosetPantryBreakfast BarWindow Coverings
- Kitchen:
- DishwasherMicrowave OvenOvenDisposalGas CooktopKitchen IslandGas OvenKitchen Range
- Laundry facilities:
- DryerUtility/Laundry Room
- Lighting:
- Lighting
- Property amenities:
- BarDeckGas Log FireplaceBackyardCovered PatioPatioFireplacePorch
- Rooms:
- KitchenGame RoomOffice/StudyDining RoomFamily RoomPrimary Bedroom Downstairs

Get a consultation with our New Homes Expert
- See how your home builds wealth
- Plan your home-buying roadmap
- Discover hidden gems
Utility information
- Heating:
- Water Heater, Gas Heating
- Utilities:
- HVAC
- Water source:
- Public

Community details
Champions Oak
by Long Lake Ltd., Houston, TX
- 18 homes
- 15 plans
- 1,531 - 2,872 sqft
View Champions Oak details
More homes in Champions Oak
- Home at address 11906 Royal Willow Ln, Houston, TX 77066

218
Savings$396,642
- 4 bd
- 3 ba
- 1,876 sqft
11906 Royal Willow Ln, Houston, TX 77066
- Home at address 11823 Royal Willow Ln, Houston, TX 77066

218
Savings$400,642
- 4 bd
- 3 ba
- 1,876 sqft
11823 Royal Willow Ln, Houston, TX 77066
- Home at address 11915 Royal Willow Ln, Houston, TX 77066

218
Savings$412,942
- 4 bd
- 3 ba
- 1,876 sqft
11915 Royal Willow Ln, Houston, TX 77066
- Home at address 11822 Royal Willow Ln, Houston, TX 77066

265
Savings$445,818
- 4 bd
- 3.5 ba
- 2,782 sqft
11822 Royal Willow Ln, Houston, TX 77066
- Home at address 11923 Royal Willow Ln, Houston, TX 77066

252
Savings$446,974
- 4 bd
- 2.5 ba
- 2,532 sqft
11923 Royal Willow Ln, Houston, TX 77066
- Home at address 11919 Royal Willow Ln, Houston, TX 77066

269
Savings$456,064
- 4 bd
- 3 ba
- 2,659 sqft
11919 Royal Willow Ln, Houston, TX 77066
Floor plans in Champions Oak
About the builder - Long Lake Ltd.
Neighborhood
Home address
Schools in Klein Independent School District
GreatSchools’ Summary Rating calculation is based on 4 of the school’s themed ratings, including test scores, student/academic progress, college readiness, and equity. This information should only be used as a reference. Jome is not affiliated with GreatSchools and does not endorse or guarantee this information. Please reach out to schools directly to verify all information and enrollment eligibility. Data provided by GreatSchools.org © 2025
Places of interest
Getting around
Air quality
Noise level
A Soundscore™ rating is a number between 50 (very loud) and 100 (very quiet) that tells you how loud a location is due to environmental noise.

Considering this home?
Our expert will guide your tour, in-person or virtual
Need more information?
Text or call (888) 545-5198
Financials
Estimated monthly payment
Let us help you find your dream home
How many bedrooms are you looking for?
Similar homes nearby
Recently added communities in this area
Nearby communities in Houston
New homes in nearby cities
More New Homes in Houston, TX
Nan & Company Properties - Corporate Office (Heights), MLS 78070313
Copyright © 2025, Houston Realtors Information Service, Inc. The information provided is exclusively for consumers’ personal, non-commercial use, and may not be used for any purpose other than to identify prospective properties consumers may be interested in purchasing. Information is deemed reliable but not guaranteed. All information provided should be independently verified.
Read moreLast checked Apr 21, 8:50 pm
- Jome
- New homes search
- Texas
- Greater Houston Area
- Harris County
- Houston
- Champions Oak
- 12038 Maple Oak Dr, Houston, TX 77066
































