








Book your tour. Save an average of $18,473. We'll handle the rest.
We collect exclusive builder offers, book your tours, and support you from start to housewarming.
- Confirmed tours
- Get matched & compare top deals
- Expert help, no pressure
- No added fees
Estimated value based on Jome data, T&C apply






































- 4 bd
- 3.5 ba
- 2,817 sqft
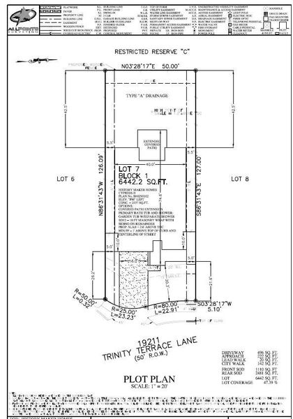
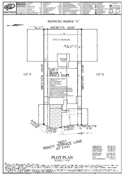
19211 Trinity Terrace Ln, Spring, TX 77379
Why tour with Jome?
- No pressure toursTour at your own pace with no sales pressure
- Expert guidanceGet insights from our home buying experts
- Exclusive accessSee homes and deals not available elsewhere
Jome is featured in
- Single-Family
- Quick move-in
- $177.49/sqft
- $995/annual HOA
Home description
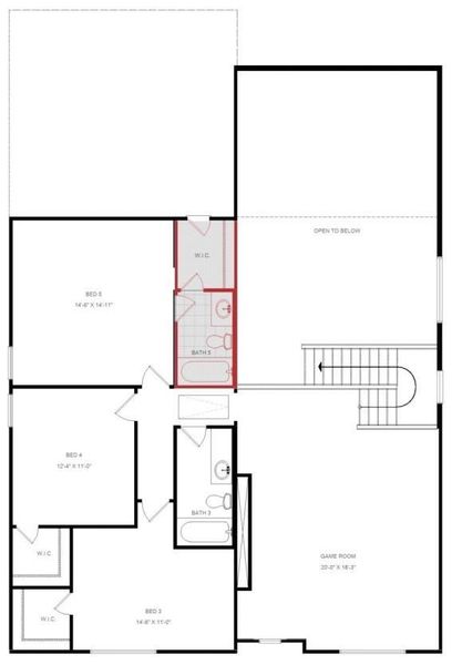
The Cypress II by Brohn Homes offers comfort, space, and style. Step through the extended foyer into your private home office/study - ideal for working from home. The family room impresses with soaring ceilings and natural light pouring through a wall of windows. The open-concept kitchen is a chef’s dream, featuring a massive island and a charming breakfast nook. The secluded primary suite offers relaxation with a separate tub and shower, dual sinks, and a spacious walk-in closet. Upstairs, the open-to-below game room adds drama and function, while three generous bedrooms provide privacy and flexibility. Two share a convenient Jack-and-Jill bath with private vanities and walk-in closets, and another bedroom is perfectly placed near a full bath. Unwind or entertain on the oversized covered patio or your front balcony—perfect for Texas evenings.
Brohn Homes, MLS 88216842
May also be listed on the Brohn Homes website
Information last verified by Jome: Today at 2:34 AM (April 13, 2026)
Home highlights
Major Houston business hub home to energy giants, top jobs, and master-planned communities with greenbelt access.
Book your tour. Save an average of $18,473. We'll handle the rest.
We collect exclusive builder offers, book your tours, and support you from start to housewarming.
- Confirmed tours
- Get matched & compare top deals
- Expert help, no pressure
- No added fees
Estimated value based on Jome data, T&C apply
Home details
- Property status:
- Move-in ready
- Size:
- 2,817 sqft
- Stories:
- 2
- Beds:
- 4
- Baths:
- 3
- Half baths:
- 1
- Garage spaces:
- 2

Floor plan details
Cypress II Trinity Grove Country
- 4 bd
- 2 ba
- 2,817 sqft
View Cypress II Trinity Grove Country details
Construction details
- Builder Name:
- Brohn Homes
- Completion Date:
- March, 2026
- Year Built:
- 2026
- Roof:
- Composition Roofing
Home features & finishes
- Appliances:
- Sprinkler System
- Construction Materials:
- CementBrick
- Cooling:
- Ceiling Fan(s)
- Flooring:
- Vinyl FlooringCarpet FlooringTile Flooring
- Foundation Details:
- Slab
- Garage/Parking:
- GarageAttached Garage
- Home amenities:
- ENERGY STAR CertifiedGreen Construction
- Interior Features:
- Ceiling-HighWalk-In ClosetFoyerPantry
- Kitchen:
- DishwasherMicrowave OvenOvenDisposalGas CooktopKitchen IslandGas Oven
- Laundry facilities:
- DryerWasherUtility/Laundry Room
- Lighting:
- Lighting
- Property amenities:
- BalconyDeckBackyardPatioPorch
- Rooms:
- Flex RoomPrimary Bedroom On MainKitchenNookPowder RoomGame RoomFamily RoomOpen Concept FloorplanPrimary Bedroom Downstairs

Get a consultation with our New Homes Expert
- See how your home builds wealth
- Plan your home-buying roadmap
- Discover hidden gems
Utility information
- Heating:
- Water Heater, Gas Heating
- Utilities:
- HVAC
- Water source:
- Public

Community details
Trinity Grove
by Brohn Homes, Spring, TX
- 3 homes
- 7 plans
- 2,105 - 2,961 sqft
View Trinity Grove details
Community amenities
- Energy Efficient
More homes in Trinity Grove
- Home at address 5307 Wittenberg Wy, Spring, TX 77379

Olive III Trinity Grove Country
Savings$449,990
- 4 bd
- 3 ba
- 2,192 sqft
5307 Wittenberg Wy, Spring, TX 77379
- Home at address 19218 Trinity Terrace Ln, Spring, TX 77379

Hemlock II Trinity Grove Country
Savings$489,990
- 4 bd
- 2.5 ba
- 2,750 sqft
19218 Trinity Terrace Ln, Spring, TX 77379
Floor plans in Trinity Grove
- View details for Trinity Grove Hickory 2240

Trinity Grove Hickory 2240
Savings$443,990+- 4 bd
- 3 ba
- 2,288 sqft
About the builder - Brohn Homes
Neighborhood
Home address
Schools in Klein Independent School District
- Grades KG-KGPrivategreengate academy inc1.1 mi18490 kuykendahl rdna
GreatSchools’ Summary Rating calculation is based on 4 of the school’s themed ratings, including test scores, student/academic progress, college readiness, and equity. This information should only be used as a reference. Jome is not affiliated with GreatSchools and does not endorse or guarantee this information. Please reach out to schools directly to verify all information and enrollment eligibility. Data provided by GreatSchools.org © 2025
Places of interest
Getting around
Air quality
Noise level
A Soundscore™ rating is a number between 50 (very loud) and 100 (very quiet) that tells you how loud a location is due to environmental noise.

Considering this home?
Our expert will guide your tour, in-person or virtual
Need more information?
Text or call (888) 545-5198
Financials
Estimated monthly payment
Let us help you find your dream home
How many bedrooms are you looking for?
Similar homes nearby
Recently added communities in this area
Nearby communities in Spring
New homes in nearby cities
More New Homes in Spring, TX
Brohn Homes, MLS 88216842
Copyright © 2025, Houston Realtors Information Service, Inc. The information provided is exclusively for consumers’ personal, non-commercial use, and may not be used for any purpose other than to identify prospective properties consumers may be interested in purchasing. Information is deemed reliable but not guaranteed. All information provided should be independently verified.
Read moreLast checked Apr 13, 2:50 pm
- Jome
- New homes search
- Texas
- Greater Houston Area
- Harris County
- Spring
- Trinity Grove
- 19211 Trinity Terrace Ln, Spring, TX 77379
































