








Book your tour. Save an average of $18,473. We'll handle the rest.
We collect exclusive builder offers, book your tours, and support you from start to housewarming.
- Confirmed tours
- Get matched & compare top deals
- Expert help, no pressure
- No added fees
Estimated value based on Jome data, T&C apply





























- 3 bd
- 2 ba
- 1,521 sqft
1315 Bessie St, Fort Worth, TX 76104
Why tour with Jome?
- No pressure toursTour at your own pace with no sales pressure
- Expert guidanceGet insights from our home buying experts
- Exclusive accessSee homes and deals not available elsewhere
Jome is featured in
- Single-Family
- Under construction
- $197.17/sqft
- 0.13-acre lot
Home description
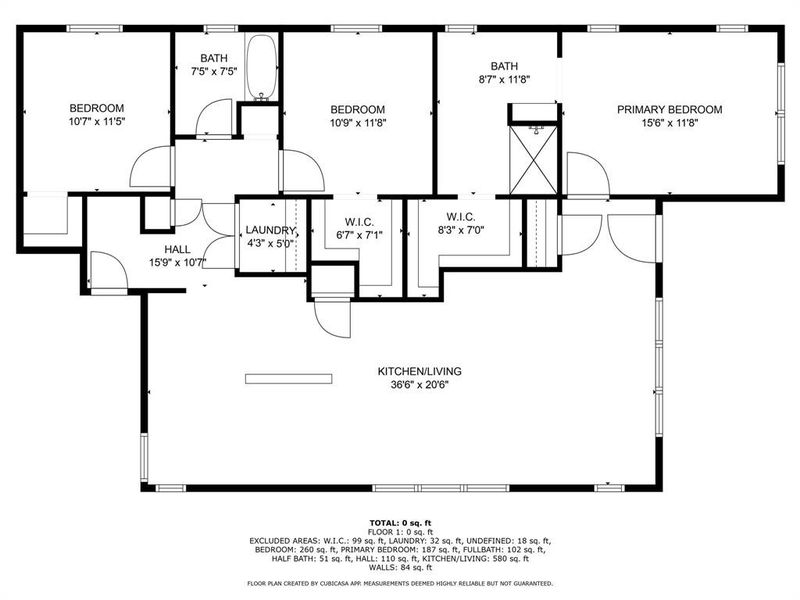
You’ve found your ideal new home with space to live, grow, and thrive! This beautifully designed layout offers an airy, open feel with room for everyone to spread out. From the inviting covered porches to the bright living room filled with natural light and a sleek fireplace, it's built for both comfort and style. The kitchen is a showstopper, featuring plenty of white cabinetry, gleaming quartz countertops, and ample storage to keep everything organized. Retreat to a peaceful primary suite featuring separate sinks, a tiled walk-in shower, and a large walk-in closet. Secondary bedrooms also shine with generous closet space, and thoughtful storage space is found throughout the home. There is no garage, but a concrete driveway is located on the front left side of the house.
Enjoy peace of mind with a builder warranty and unbeatable convenience, with downtown just minutes away and easy access to highways 287, I-30, and I-35. Entertainment, dining, and daily commutes are all within effortless reach. Don't miss the chance to make this spacious, well-appointed home yours!
HomeSmart, MLS 20986993
Information last verified by Jome: Today at 1:00 AM (April 22, 2026)
Book your tour. Save an average of $18,473. We'll handle the rest.
We collect exclusive builder offers, book your tours, and support you from start to housewarming.
- Confirmed tours
- Get matched & compare top deals
- Expert help, no pressure
- No added fees
Estimated value based on Jome data, T&C apply
Home details
- Property status:
- Under construction
- Neighborhood:
- Historic Southside
- Lot size (acres):
- 0.13
- Size:
- 1,521 sqft
- Stories:
- 1
- Beds:
- 3
- Baths:
- 2
- Fence:
- Wood Fence
Construction details
- Year Built:
- 2026
- Roof:
- Shingle Roofing
Home features & finishes
- Cooling:
- Ceiling Fan(s)Central Air
- Flooring:
- Vinyl FlooringCarpet FlooringTile Flooring
- Foundation Details:
- Slab
- Interior Features:
- Walk-In ClosetPantryPlentiful Natural Light
- Kitchen:
- DishwasherMicrowave OvenDisposalQuartz countertopKitchen CountertopKitchen IslandKitchen Range
- Laundry facilities:
- DryerWasherStackable Washer/DryerUtility/Laundry Room
- Lighting:
- Decorative/Designer Lighting
- Property amenities:
- BackyardElectric FireplaceFireplacePorch
- Rooms:
- Primary Bedroom On MainKitchenLiving RoomOpen Concept FloorplanPrimary Bedroom Downstairs
- Security system:
- Smoke Detector

Get a consultation with our New Homes Expert
- See how your home builds wealth
- Plan your home-buying roadmap
- Discover hidden gems
Utility information
- Heating:
- Electric Heating, Central Heating
- Utilities:
- Electricity Available, City Water System, High Speed Internet Access
Neighborhood
Home address
- Neighborhood:
- Historic Southside
- City:
- Fort Worth
Schools in Fort Worth Independent School District
GreatSchools’ Summary Rating calculation is based on 4 of the school’s themed ratings, including test scores, student/academic progress, college readiness, and equity. This information should only be used as a reference. Jome is not affiliated with GreatSchools and does not endorse or guarantee this information. Please reach out to schools directly to verify all information and enrollment eligibility. Data provided by GreatSchools.org © 2025
Places of interest
Getting around
5 nearby routes: 5 bus, 0 rail, 0 otherAir quality
Noise level
A Soundscore™ rating is a number between 50 (very loud) and 100 (very quiet) that tells you how loud a location is due to environmental noise.
Natural hazards risk
Provided by FEMA

Considering this home?
Our expert will guide your tour, in-person or virtual
Need more information?
Text or call (888) 545-5198
Financials
Estimated monthly payment
Let us help you find your dream home
How many bedrooms are you looking for?
Similar homes nearby
Recently added communities in this area
Nearby communities in Fort Worth
New homes in nearby cities
More New Homes in Fort Worth, TX
HomeSmart, MLS 20986993
IDX information is provided exclusively for personal, non-commercial use, and may not be used for any purpose other than to identify prospective properties consumers may be interested in purchasing. You may not reproduce or redistribute this data, it is for viewing purposes only. This data is deemed reliable, but is not guaranteed accurate by the MLS or NTREIS.
Read moreLast checked Apr 22, 7:30 am
- Jome
- New homes search
- Texas
- Dallas-Fort Worth Area
- Tarrant County
- Fort Worth
- 1315 Bessie St, Fort Worth, TX 76104

























