














Book your tour. Save an average of $18,473. We'll handle the rest.
- Confirmed tours
- Get matched & compare top deals
- Expert help, no pressure
- No added fees
Estimated value based on Jome data, T&C apply





























Why tour with Jome?
- No pressure toursTour at your own pace with no sales pressure
- Expert guidanceGet insights from our home buying experts
- Exclusive accessSee homes and deals not available elsewhere
Jome is featured in
- Single-Family
- Quick move-in
- $122.09/sqft
- $114/quarterly HOA
Home description
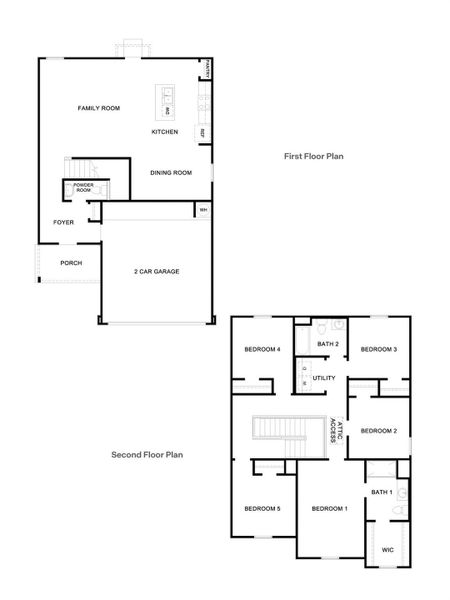
MOVE IN READY! The Franklin is our largest floorplan available at Ladera in Luling, Texas. This beautiful two-story home features 5 bedrooms (or an optional gameroom in lieu of a bedroom), 2.5 bathrooms and a 2-car garage across 1,892 square feet of comfortable living space.
Step inside the home from the front porch and cross the foyer to the family room, kitchen and dining room. This large open concept area is perfect for entertaining and everyday living. The kitchen features an island with a stainless-steel sink, quartz countertops, 42’ upper ‘picture frame’ cabinets, a pantry closet, and stainless-steel appliances. The powder room completes the downstair space and is located at the front of the home, off the foyer.
Ascend the stairs to the second floor, where you’ll find all the bedrooms, the optional gameroom, 2 full bathrooms and the utility room. The primary bedroom is located at the front of the home and includes an attached bathroom. Stretch out and relax at the end of your day in this spacious and private ensuite. The primary bathroom features a walk-in shower, cultured marble vanity with trench sink and a walk-in closet.
All secondary bedrooms have amble closet space with wood shelving. Whether you use these rooms as an office, child’s room or guest room, there is enough room for work, sleep, and play. The secondary bathroom includes a shower/tub combination and a cultured marble vanity with trench sink.
This home features our America’s Smart Home base package, which includes the Video Front Doorbell, Front Door Deadbolt Lock, Home Hub, Thermostat, and Deako® Smart Switches.
D.R. Horton, AMERICA'S Builder, MLS 6004344
May also be listed on the D.R. Horton website
Information last verified by Jome: Today at 12:40 PM (December 7, 2025)
Home highlights
Book your tour. Save an average of $18,473. We'll handle the rest.
We collect exclusive builder offers, book your tours, and support you from start to housewarming.
- Confirmed tours
- Get matched & compare top deals
- Expert help, no pressure
- No added fees
Estimated value based on Jome data, T&C apply
Home details
- Property status:
- Move-in ready
- Lot size (acres):
- 0.11
- Size:
- 1,892 sqft
- Stories:
- 2
- Beds:
- 5
- Baths:
- 2.5
- Garage spaces:
- 2
- Fence:
- Wood Fence
- Facing direction:
- East
Construction details
- Builder Name:
- D.R. Horton
- Year Built:
- 2025
- Roof:
- Composition Roofing
Home features & finishes
- Cooling:
- Central Air
- Flooring:
- Vinyl FlooringCarpet Flooring
- Foundation Details:
- Slab
- Garage/Parking:
- Garage
- Home amenities:
- Home Accessibility Features
- Interior Features:
- Pantry
- Kitchen:
- Range-Free StandingDishwasherMicrowave OvenDisposalQuartz countertopKitchen Island
- Property amenities:
- PatioYardSmart Home SystemPorch
- Security system:
- Smoke Detector
Utility information
- Heating:
- Thermostat, Central Heating
- Utilities:
- Electricity Available, Water Available

Community details
Ladera
by D.R. Horton, Luling, TX
- 17 homes
- 6 plans
- 1,156 - 1,892 sqft
View Ladera details
More homes in Ladera
Floor plans in Ladera
About the builder - D.R. Horton
Neighborhood
Home address
Schools in Luling Independent School District
GreatSchools’ Summary Rating calculation is based on 4 of the school’s themed ratings, including test scores, student/academic progress, college readiness, and equity. This information should only be used as a reference. Jome is not affiliated with GreatSchools and does not endorse or guarantee this information. Please reach out to schools directly to verify all information and enrollment eligibility. Data provided by GreatSchools.org © 2025
Places of interest
Getting around
Air quality
Natural hazards risk
Climate hazards can impact homes and communities, with risks varying by location. These scores reflect the potential impact of natural disasters and climate-related risks on Caldwell County
Provided by FEMA

Considering this home?
Our expert will guide your tour, in-person or virtual
Need more information?
Text or call (888) 486-2818
Financials
Estimated monthly payment
Similar homes nearby
Recently added communities in this area
Nearby communities in Luling
New homes in nearby cities
More New Homes in Luling, TX
D.R. Horton, AMERICA'S Builder, MLS 6004344
Based on information from the Austin Board of REALTORS® (alternatively, from ACTRIS) for the period through 08/13/2024. Neither the Board nor ACTRIS guarantees or is in any way responsible for its accuracy. All data is provided “AS IS” and with all faults. Data maintained by the Board or ACTRIS may not reflect all real estate activity in the market. Information being provided is for consumers’ personal, non-commercial use and may not be used for any purpose other than to identify prospective properties consumers may be interested in purchasing. The Digital Millennium Copyright Act of 1998, 17 U.S.C. § 512 (the “DMCA”) provides recourse for copyright owners who believe that material appearing on the Internet infringes their rights under U.S. copyright law. If you believe in good faith that any content or material made available in connection with our website or services infringes your copyright, you (or your agent) may send us a notice requesting that the content or material be removed, or access to it blocked. Notices must be sent in writing by email to DMCAnotice@MLSGrid.com. The DMCA requires that your notice of alleged copyright infringement include the following information: (1) description of the copyrighted work that is the subject of claimed infringement; (2) description of the alleged infringing content and information sufficient to permit us to locate the content; (3) contact information for you, including your address, telephone number and email address; (4) a statement by you that you have a good faith belief that the content in the manner complained of is not authorized by the copyright owner, or its agent, or by the operation of any law; (5) a statement by you, signed under penalty of perjury, that the information in the notification is accurate and that you have the authority to enforce the copyrights that are claimed to be infringed; and (6) a physical or electronic signature of the copyright owner or a person authorized to act on the copyright owner’s behalf. Failure to include all of the above information may result in the delay of the processing of your complaint.
Read moreLast checked Dec 7, 12:40 pm






























