
































- 4 bd
- 4.5 ba
- 2,867 sqft
8704 Peristyle Dr, Austin, TX 78744
- Single-Family
- $209.27/sqft
- $71/monthly HOA
- Southeast facing
New Homes for Sale Near 8704 Peristyle Dr, Austin, TX 78744
About this Home
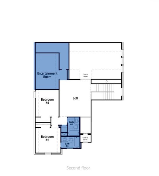
This open concept, split bedroom home features spacious gathering areas: one in the living, dining, and kitchen space with soaring ceilings, and another in the upstairs loft, perfect for game nights. The private secondary bedrooms are true retreats, with one at the front of the home, and two additional upstairs. A centrally located study ensures privacy, yet convenience to the kitchen and living space. Storage abounds in this home, with an extra deep garage bay. A wall of shelves in the laundry and oversized storage closet near the front of the home. Finally, the primary bedroom is paired with a gorgeous spa-inspired primary bath is the perfect place to unwind.
Optional upgrades include-
Extended outdoor living
Built-in hutch in dining room
Entertainment on second in addition to the game room
Two full baths ILO shared bath on second
May also be listed on the Highland Homes website
Information last verified by Jome: Wednesday at 12:40 PM (January 7, 2026)
Home details
- Property status:
- Sold
- Lot size (acres):
- 0.14
- Size:
- 2,867 sqft
- Stories:
- 2
- Beds:
- 4
- Baths:
- 4
- Half baths:
- 1
- Garage spaces:
- 2
- Fence:
- Wood Fence, Privacy Fence, Wrought Iron Fence
- Facing direction:
- Southeast
Construction details
- Builder Name:
- Highland Homes
- Completion Date:
- October, 2025
- Year Built:
- 2025
- Roof:
- Composition Roofing
Home features & finishes
- Construction Materials:
- CedarStone
- Cooling:
- Ceiling Fan(s)Central Air
- Flooring:
- Wood FlooringCarpet FlooringTile Flooring
- Foundation Details:
- Slab
- Garage/Parking:
- Door OpenerGarageFront Entry Garage/ParkingSingle-Door GarageAttached Garage
- Home amenities:
- Green Construction
- Interior Features:
- Ceiling-HighWalk-In ClosetPantryStorageLoft
- Kitchen:
- DishwasherMicrowave OvenOvenDisposalStainless Steel AppliancesGas CooktopBuilt-In OvenKitchen IslandCooktop
- Laundry facilities:
- Utility/Laundry Room
- Property amenities:
- BackyardSoaking TubPatioYard
- Rooms:
- Primary Bedroom On MainKitchenPowder RoomOffice/StudyDining RoomFamily RoomOpen Concept Floorplan
- Security system:
- Smoke DetectorCarbon Monoxide Detector
Utility information
- Heating:
- Heat Pump, Water Heater, Central Heating, Tankless water heater
- Utilities:
- Electricity Available, Natural Gas Available, Underground Utilities, Internet-Fiber

Community details
Easton Park at Easton Park
by Highland Homes, Austin, TX
- 7 homes
- 12 plans
- 1,950 - 2,832 sqft
View Easton Park details
Community amenities
- Grill Area
- Common Grounds
- Dog Park
- Fitness Center/Exercise Area
- Community Pool
- Park Nearby
- BBQ Area
- Picnic Area
- Pet Amenities
More homes in Easton Park
- Home at address 9501 Boathouse Dr, Austin, TX 78744

$598,990
Move-in ready- 4 bd
- 4 ba
- 2,613 sqft
9501 Boathouse Dr, Austin, TX 78744
- Home at address 9300 Hamadryas Dr, Austin, TX 78744

$599,990
Move-in ready- 4 bd
- 4.5 ba
- 2,604 sqft
9300 Hamadryas Dr, Austin, TX 78744
- Home at address 9612 Golden Lion Dr, Austin, TX 78744

$611,938
Under construction- 4 bd
- 4.5 ba
- 2,604 sqft
9612 Golden Lion Dr, Austin, TX 78744
- Home at address 9301 Breeze Hill Dr, Austin, TX 78744

$613,850
Under construction- 4 bd
- 4.5 ba
- 2,620 sqft
9301 Breeze Hill Dr, Austin, TX 78744
- Home at address 9305 Breeze Hill Dr, Austin, TX 78744

$629,038
Under construction- 4 bd
- 4.5 ba
- 2,794 sqft
9305 Breeze Hill Dr, Austin, TX 78744
- Home at address 9308 Hamadryas Dr, Austin, TX 78744

$633,950
Under construction- 5 bd
- 5.5 ba
- 2,832 sqft
9308 Hamadryas Dr, Austin, TX 78744
Floor plans in Easton Park
About the builder - Highland Homes
Neighborhood
Home address
Schools in Del Valle Independent School District
GreatSchools’ Summary Rating calculation is based on 4 of the school’s themed ratings, including test scores, student/academic progress, college readiness, and equity. This information should only be used as a reference. Jome is not affiliated with GreatSchools and does not endorse or guarantee this information. Please reach out to schools directly to verify all information and enrollment eligibility. Data provided by GreatSchools.org © 2025
Places of interest
Getting around
Air quality
Noise level
A Soundscore™ rating is a number between 50 (very loud) and 100 (very quiet) that tells you how loud a location is due to environmental noise.
Financials
Nearby communities in Austin
Homes in Austin Neighborhoods
Homes in Austin by Highland Homes
Recently added communities in this area
Other Builders in Austin, TX
Nearby sold homes
New homes in nearby cities
More New Homes in Austin, TX
- Jome
- New homes search
- Texas
- Greater Austin Area
- Travis County
- Austin
- Easton Park
- 8704 Peristyle Dr, Austin, TX 78744








































































