








































- 5 bd
- 4 ba
- 3,379 sqft
828 Cottontail Wy, Celina, TX 75009
- Single-Family
- $166.82/sqft
- $950/annual HOA
- West facing
New Homes for Sale Near 828 Cottontail Wy, Celina, TX 75009
About this Home
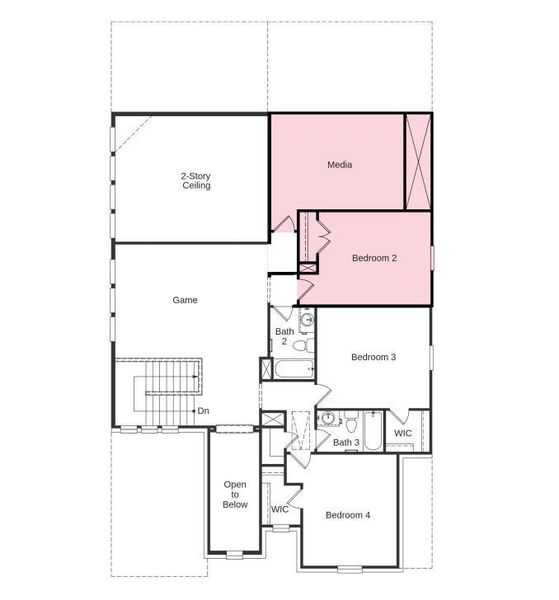
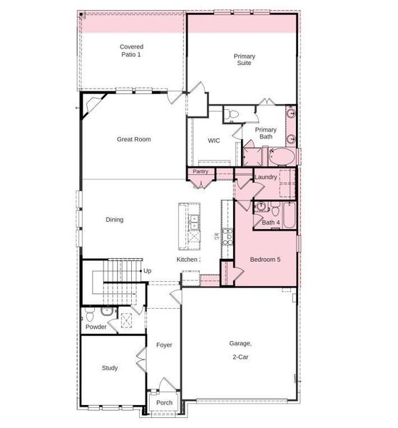
What's Special: Media Room - 1st Floor Guest Bedroom.
New Construction - Ready Now! Built by Taylor Morrison, America's Most Trusted Homebuilder. Welcome to the Bordeaux at 828 Cottontail Way in The Ranch at Uptown Celina! This spacious two-story home is thoughtfully designed for both quiet moments and lively gatherings. The gourmet kitchen opens to the dining area and great room, creating a seamless space for connection, while a flex room near the entry adds versatility. The main level features a serene primary suite with a spa-inspired bath and walk-in closet, plus a private secondary bedroom with its own ensuite. Upstairs, three more bedrooms, two full baths, a media room, and game room offer plenty of room to spread out. In this vibrant community, you’ll love the mix of outdoor adventure and everyday convenience—amenities like pools, trails, dog park, and air-conditioned community centers keep things fun and refreshing, while top-rated schools and easy access to Dallas North Tollway make life smooth and simple. Additional Highlights Include: Downstairs bedroom and full bath in place of tandem, slide in tub at primary bath, media room, extended primary suite and outdoor patio. MLS#21037387
Alexander Properties, MLS 21037387
May also be listed on the Taylor Morrison website
Information last verified by Jome: Today at 12:57 AM (May 31, 2026)
Home details
- Property status:
- Sold
- Collection:
- The Ranch at Uptown Celina 55s
- Lot size (acres):
- 0.15
- Size:
- 3,379 sqft
- Stories:
- 2
- Beds:
- 5
- Baths:
- 4
- Garage spaces:
- 2
- Fence:
- Wood Fence
- Facing direction:
- West
Construction details
- Builder Name:
- Taylor Morrison
- Completion Date:
- November, 2025
- Year Built:
- 2025
- Roof:
- Roof Gutter, Composition Roofing
Home features & finishes
- Appliances:
- Exhaust Fan VentedSprinkler System
- Construction Materials:
- BrickRockStone
- Cooling:
- Central Air
- Flooring:
- Ceramic FlooringVinyl FlooringCarpet FlooringTile Flooring
- Foundation Details:
- Slab
- Garage/Parking:
- Door OpenerGarageFront Entry Garage/ParkingAttached Garage
- Home amenities:
- Green Construction
- Interior Features:
- Ceiling-VaultedWalk-In ClosetPantry
- Kitchen:
- DishwasherDisposalGas CooktopKitchen IslandGas OvenKitchen RangeElectric Oven
- Laundry facilities:
- DryerWasherStackable Washer/DryerUtility/Laundry Room
- Property amenities:
- Gas Log FireplaceLandscapingPatioPorch
- Rooms:
- Open Concept Floorplan
- Security system:
- Fire Alarm SystemSmoke DetectorCarbon Monoxide Detector
Utility information
- Heating:
- Water Heater, Gas Heating, Tankless water heater
- Utilities:
- HVAC

Community details
The Ranch at Uptown Celina
by Taylor Morrison, Celina, TX
- 15 homes
- 27 plans
- 1,507 - 4,539 sqft
View The Ranch at Uptown Celina details
Community amenities
- Playground
- Club House
- Community Pool
- Park Nearby
- Sidewalks Available
- Walking, Jogging, Hike Or Bike Trails
More homes in The Ranch at Uptown Celina
- Home at address 1716 Buck Trl, Celina, TX 75009
Savings$548,335
Move-in ready- 5 bd
- 4 ba
- 3,061 sqft
1716 Buck Trl, Celina, TX 75009
- Home at address 1709 Yellow Rose Ct, Celina, TX 75009
Savings$790,678
Under construction- 5 bd
- 5.5 ba
- 4,539 sqft
1709 Yellow Rose Ct, Celina, TX 75009
- Home at address 1600 Yellow Rose Rd, Celina, TX 75009
Savings$874,917
Move-in ready- 5 bd
- 5.5 ba
- 4,462 sqft
1600 Yellow Rose Rd, Celina, TX 75009
- Home at address 1612 Yellow Rose Rd, Celina, TX 75009
Savings$875,540
Move-in ready- 5 bd
- 5.5 ba
- 4,539 sqft
1612 Yellow Rose Rd, Celina, TX 75009
Floor plans in The Ranch at Uptown Celina
About the builder - Taylor Morrison

- 321communities on Jome
- 1,532homes on Jome
Neighborhood
Home address
Schools in Celina Independent School District
- Grades KG-05Publicbobby ray & afton martin elementary2.3 mi2905 n louisiana drna
- Grades M-MPublicnew elementary2.7 mi2120 coventry drna
GreatSchools’ Summary Rating calculation is based on 4 of the school’s themed ratings, including test scores, student/academic progress, college readiness, and equity. This information should only be used as a reference. Jome is not affiliated with GreatSchools and does not endorse or guarantee this information. Please reach out to schools directly to verify all information and enrollment eligibility. Data provided by GreatSchools.org © 2025
Places of interest
Getting around
Air quality
Noise level
A Soundscore™ rating is a number between 50 (very loud) and 100 (very quiet) that tells you how loud a location is due to environmental noise.
Financials
Nearby communities in Celina
Homes in Celina by Taylor Morrison
Recently added communities in this area
Other Builders in Celina, TX
Nearby sold homes
New homes in nearby cities
More New Homes in Celina, TX
Alexander Properties, MLS 21037387
IDX information is provided exclusively for personal, non-commercial use, and may not be used for any purpose other than to identify prospective properties consumers may be interested in purchasing. You may not reproduce or redistribute this data, it is for viewing purposes only. This data is deemed reliable, but is not guaranteed accurate by the MLS or NTREIS.
Read moreLast checked May 30, 10:00 pm
- Jome
- New homes search
- Texas
- Dallas-Fort Worth Area
- Collin County
- Celina
- The Ranch at Uptown Celina
- The Ranch at Uptown Celina 55s
- 828 Cottontail Wy, Celina, TX 75009







































































