













































- 4 bd
- 4.5 ba
- 3,459 sqft
335 Trillium St, Oak Point, TX 75068
- Single-Family
- $186.34/sqft
- $1,250/annual HOA
- South facing
New Homes for Sale Near 335 Trillium St, Oak Point, TX 75068
About this Home
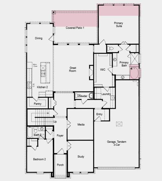
What’s Special: 2-Story Great Room with Fireplace - 3-Car Tandem Garage - Game Room & Media.
New Construction - Ready Now! Built by Taylor Morrison, America's Most Trusted Builder. Welcome to the Topaz at 335 Trillium Street in South Oak! This two-story home features a study, media room, and a secondary bedroom with en-suite off the foyer. The open-concept kitchen connects to the gathering room, dining area, and covered patio. The main level primary suite includes a spacious walk-in closet, with a game room and two additional bedrooms upstairs. Located in the upscale South Oak 60s community, enjoy lakeside living with walking paths, a fishing pond, resort-style clubhouse, pool, fitness center, and more. A new elementary school opens nearby in fall 2025. Elegant living in a vibrant, amenity-rich setting. Additional Highlights Include: Extended primary suite, extended covered patio, drop-in tub at primary bath, study in place of flex, alternate second floor layout, and 12' pop-up ceilings at game room.
Alexander Properties, MLS 21081610
May also be listed on the Taylor Morrison website
Information last verified by Jome: Today at 1:15 AM (March 8, 2026)
Home details
- Property status:
- Sold
- Collection:
- South Oak 60s
- Lot size (acres):
- 0.17
- Size:
- 3,459 sqft
- Stories:
- 2
- Beds:
- 4
- Baths:
- 4
- Half baths:
- 1
- Garage spaces:
- 3
- Fence:
- Wood Fence
- Facing direction:
- South
Construction details
- Builder Name:
- Taylor Morrison
- Completion Date:
- October, 2025
- Year Built:
- 2025
- Roof:
- Roof Gutter, Composition Roofing
Home features & finishes
- Appliances:
- Exhaust Fan VentedSprinkler System
- Construction Materials:
- BrickRockStone
- Cooling:
- Central Air
- Flooring:
- Ceramic FlooringVinyl FlooringCarpet FlooringTile Flooring
- Foundation Details:
- Slab
- Garage/Parking:
- Door OpenerGarageFront Entry Garage/ParkingAttached GarageTandem Parking
- Home amenities:
- Green Construction
- Interior Features:
- PantrySound System Wiring
- Kitchen:
- DishwasherMicrowave OvenDisposalGas CooktopElectric Oven
- Laundry facilities:
- DryerWasherStackable Washer/DryerUtility/Laundry Room
- Property amenities:
- SidewalkGas Log FireplaceLandscapingPatioPorch
- Security system:
- Smoke DetectorCarbon Monoxide Detector
Utility information
- Heating:
- Water Heater, Gas Heating, Tankless water heater
- Utilities:
- Underground Utilities, Other, HVAC, City Water System, High Speed Internet Access, Cable TV

Community details
South Oak
by Taylor Morrison, Little Elm, TX
- 12 homes
- 13 plans
- 2,033 - 3,507 sqft
View South Oak details
Community amenities
- Lake Access
- Fitness Center/Exercise Area
- Club House
- Community Pool
- Fishing Pond
- Sidewalks Available
- Greenbelt View
More homes in South Oak
- Home at address 538 Wisteria St, Oak Point, TX 75068

$537,635
Under construction- 5 bd
- 4 ba
- 2,596 sqft
538 Wisteria St, Oak Point, TX 75068
- Home at address 546 Wisteria St, Oak Point, TX 75068

$538,525
Under construction- 5 bd
- 4 ba
- 2,596 sqft
546 Wisteria St, Oak Point, TX 75068
- Home at address 519 Wisteria St, Lakewood Village, TX 75068

$546,425
Under construction- 5 bd
- 4 ba
- 2,596 sqft
519 Wisteria St, Lakewood Village, TX 75068
- Home at address 415 Chatham St, Lakewood Village, TX 75068

$559,348
Move-in ready- 4 bd
- 3.5 ba
- 2,535 sqft
415 Chatham St, Lakewood Village, TX 75068
- Home at address 415 Chatham Dr, Oak Point, TX 75068

$559,348
Move-in ready- 4 bd
- 3.5 ba
- 2,535 sqft
415 Chatham Dr, Oak Point, TX 75068
- Home at address 331 Trillium St, Oak Point, TX 75068

$561,679
Move-in ready- 4 bd
- 3.5 ba
- 2,535 sqft
331 Trillium St, Oak Point, TX 75068
Floor plans in South Oak
About the builder - Taylor Morrison

- 320communities on Jome
- 1,480homes on Jome
Neighborhood
Home address
Schools in Little Elm Independent School District
- Grades PK-03Privatecreekwood school1.8 mi800 w eldorado pkwy ste 106na
- Grades M-MPubliclakeside middle1.9 mi400 lobo lnna
- Grades M-MPublicnew elementary north1.9 mi400 lobo lnna
- Grades PK-PKPublicnew early childhood center1.9 mi300 lobo lnna
GreatSchools’ Summary Rating calculation is based on 4 of the school’s themed ratings, including test scores, student/academic progress, college readiness, and equity. This information should only be used as a reference. Jome is not affiliated with GreatSchools and does not endorse or guarantee this information. Please reach out to schools directly to verify all information and enrollment eligibility. Data provided by GreatSchools.org © 2025
Places of interest
Getting around
Air quality
Noise level
A Soundscore™ rating is a number between 50 (very loud) and 100 (very quiet) that tells you how loud a location is due to environmental noise.
Financials
Nearby communities in Oak Point
Homes in Oak Point by Taylor Morrison
Recently added communities in this area
Other Builders in Oak Point, TX
Nearby sold homes
New homes in nearby cities
More New Homes in Oak Point, TX
Alexander Properties, MLS 21081610
IDX information is provided exclusively for personal, non-commercial use, and may not be used for any purpose other than to identify prospective properties consumers may be interested in purchasing. You may not reproduce or redistribute this data, it is for viewing purposes only. This data is deemed reliable, but is not guaranteed accurate by the MLS or NTREIS.
Read moreLast checked Mar 8, 4:00 am
- Jome
- New homes search
- Texas
- Dallas-Fort Worth Area
- Denton County
- Oak Point
- South Oak
- South Oak 60s
- 335 Trillium St, Oak Point, TX 75068























































