














Book your tour. Save an average of $18,473. We'll handle the rest.
- Confirmed tours
- Get matched & compare top deals
- Expert help, no pressure
- No added fees
Estimated value based on Jome data, T&C apply






















Why tour with Jome?
- No pressure toursTour at your own pace with no sales pressure
- Expert guidanceGet insights from our home buying experts
- Exclusive accessSee homes and deals not available elsewhere
Jome is featured in
- Single-Family
- Quick move-in
- $187.82/sqft
- $800/annual HOA
Home description
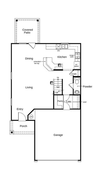
Experience the perfect blend of comfort and style in this charming, two-story home, which showcases stylish luxury vinyl plank flooring and a spacious living room for entertaining. The kitchen boasts Shaker-style upper cabinets, sleek tile backsplash and Silestone® countertops in Lusso. Upstairs, a versatile loft awaits. Unwind in the primary bedroom, which features plush carpeting, a walk-in closet and connecting bath that includes a dual-sink vanity and luxurious walk-in shower. Additional highlights include a smart thermostat, Sherwin-Williams® interior paint, Moen® fixtures throughout and ceiling fans at living room and primary bedroom. Relax outdoors on the covered back patio.
SATEX Properties, Inc., MLS 2622334
May also be listed on the KB Home website
Information last verified by Jome: Today at 6:52 AM (December 5, 2025)
Home highlights
Mixed‑use retail and entertainment center north of Austin with shops, dining, live events and walkable energy.
Book your tour. Save an average of $18,473. We'll handle the rest.
We collect exclusive builder offers, book your tours, and support you from start to housewarming.
- Confirmed tours
- Get matched & compare top deals
- Expert help, no pressure
- No added fees
Estimated value based on Jome data, T&C apply
Home details
- Property status:
- Move-in ready
- Lot size (acres):
- 0.19
- Size:
- 1,908 sqft
- Stories:
- 2
- Beds:
- 3
- Baths:
- 2.5
- Garage spaces:
- 2
- Fence:
- Privacy Fence
- Facing direction:
- South
Construction details
- Builder Name:
- KB Home
- Year Built:
- 2025
- Roof:
- Shingle Roofing
Home features & finishes
- Construction Materials:
- BrickStone
- Cooling:
- Central Air
- Flooring:
- Vinyl FlooringCarpet Flooring
- Foundation Details:
- Slab
- Garage/Parking:
- Garage
- Home amenities:
- Green Construction
- Interior Features:
- Walk-In ClosetPantryBreakfast Bar
- Lighting:
- Lighting
- Property amenities:
- PatioYard
- Rooms:
- Breakfast Area
Utility information
- Heating:
- Thermostat, Central Heating
- Utilities:
- Electricity Available, HVAC, Water Available

Community details
Retreat at San Gabriel at Retreat at San Gabriel
by KB Home, Georgetown, TX
- 3 homes
- 1,908 - 2,411 sqft
View Retreat at San Gabriel details
More homes in Retreat at San Gabriel
About the builder - KB Home
Neighborhood
Home address
- City:
- Georgetown
- County:
- Williamson
- Zip Code:
- 78628
Schools in Georgetown Independent School District
- Grades PK-08Privatecommunity montessori school5.6 mi500 pleasant valley drna
- Grades KG-06Privatedivine savior academy - santa rita ranch5.7 mi23857 ronald w reagan blvdna
GreatSchools’ Summary Rating calculation is based on 4 of the school’s themed ratings, including test scores, student/academic progress, college readiness, and equity. This information should only be used as a reference. Jome is not affiliated with GreatSchools and does not endorse or guarantee this information. Please reach out to schools directly to verify all information and enrollment eligibility. Data provided by GreatSchools.org © 2025
Places of interest
Getting around
Air quality
Natural hazards risk
Climate hazards can impact homes and communities, with risks varying by location. These scores reflect the potential impact of natural disasters and climate-related risks on Williamson County
Provided by FEMA

Considering this home?
Our expert will guide your tour, in-person or virtual
Need more information?
Text or call (888) 486-2818
Financials
Estimated monthly payment
Similar homes nearby
Recently added communities in this area
Nearby communities in Georgetown
New homes in nearby cities
More New Homes in Georgetown, TX
SATEX Properties, Inc., MLS 2622334
Based on information from the Austin Board of REALTORS® (alternatively, from ACTRIS) for the period through 08/13/2024. Neither the Board nor ACTRIS guarantees or is in any way responsible for its accuracy. All data is provided “AS IS” and with all faults. Data maintained by the Board or ACTRIS may not reflect all real estate activity in the market. Information being provided is for consumers’ personal, non-commercial use and may not be used for any purpose other than to identify prospective properties consumers may be interested in purchasing. The Digital Millennium Copyright Act of 1998, 17 U.S.C. § 512 (the “DMCA”) provides recourse for copyright owners who believe that material appearing on the Internet infringes their rights under U.S. copyright law. If you believe in good faith that any content or material made available in connection with our website or services infringes your copyright, you (or your agent) may send us a notice requesting that the content or material be removed, or access to it blocked. Notices must be sent in writing by email to DMCAnotice@MLSGrid.com. The DMCA requires that your notice of alleged copyright infringement include the following information: (1) description of the copyrighted work that is the subject of claimed infringement; (2) description of the alleged infringing content and information sufficient to permit us to locate the content; (3) contact information for you, including your address, telephone number and email address; (4) a statement by you that you have a good faith belief that the content in the manner complained of is not authorized by the copyright owner, or its agent, or by the operation of any law; (5) a statement by you, signed under penalty of perjury, that the information in the notification is accurate and that you have the authority to enforce the copyrights that are claimed to be infringed; and (6) a physical or electronic signature of the copyright owner or a person authorized to act on the copyright owner’s behalf. Failure to include all of the above information may result in the delay of the processing of your complaint.
Read moreLast checked Dec 5, 6:40 am
- Home
- New homes
- Texas
- Greater Austin Area
- Williamson County
- Georgetown
- Retreat at San Gabriel
- 101 Coastal Wy, Georgetown, TX 78628



























