





















- 3 bd
- 2 ba
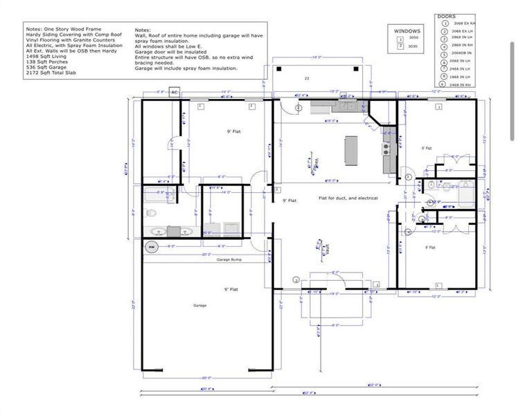
- 1,498 sqft
824 Benelli, Clyde, TX 79510
- Single-Family
- $166.89/sqft
- 0.22-acre lot
- 237 days on Jome
New Homes for Sale Near 824 Benelli, Clyde, TX 79510
About this Home
Welcome to this beautifully crafted new construction home offering the perfect blend of style, comfort, and efficiency. This 3-bedroom, 2-bathroom gem features high-end finishes throughout, including granite countertops, vinyl plank flooring, and energy-efficient LED lighting. Enjoy year-round comfort with spray foam insulation, and bask in the open, airy feel of the vaulted ceiling in the main living area. The spacious 2-car garage provides plenty of room for vehicles and storage. Located in a desirable neighborhood with curb and gutter frontage, this home offers city water and sewer and is just steps away from a beautiful city park—less than one block away. The privacy fence surrounding the backyard creates a perfect space for relaxing, entertaining, or letting kids and pets play safely.
Real Broker, LLC., MLS 20942437
Information last verified by Jome: Today at 12:28 AM (January 18, 2026)
Home details
- Property status:
- Sold
- Lot size (acres):
- 0.22
- Size:
- 1,498 sqft
- Stories:
- 1
- Beds:
- 3
- Baths:
- 2
- Garage spaces:
- 2
- Fence:
- Wood Fence
Construction details
- Year Built:
- 2025
- Roof:
- Composition Roofing
Home features & finishes
- Cooling:
- Central Air
- Flooring:
- Vinyl Flooring
- Foundation Details:
- Slab
- Garage/Parking:
- GarageFront Entry Garage/ParkingAttached Garage
- Interior Features:
- PantryDouble Vanity
- Kitchen:
- Kitchen IslandKitchen Range
- Laundry facilities:
- Stackable Washer/Dryer
- Lighting:
- Decorative/Designer Lighting
- Property amenities:
- PatioPorch
- Rooms:
- Primary Bedroom On MainKitchenOpen Concept FloorplanPrimary Bedroom Downstairs
Utility information
- Heating:
- Electric Heating, Central Heating
- Utilities:
- City Water System
Neighborhood
Home address
Schools in Clyde Consolidated Independent School District
GreatSchools’ Summary Rating calculation is based on 4 of the school’s themed ratings, including test scores, student/academic progress, college readiness, and equity. This information should only be used as a reference. Jome is not affiliated with GreatSchools and does not endorse or guarantee this information. Please reach out to schools directly to verify all information and enrollment eligibility. Data provided by GreatSchools.org © 2025
Getting around
Air quality
Natural hazards risk
Provided by FEMA
Financials
Nearby communities in Clyde
Recently added communities in this area
Other Builders in Clyde, TX
Nearby sold homes
New homes in nearby cities
More New Homes in Clyde, TX
Real Broker, LLC., MLS 20942437
IDX information is provided exclusively for personal, non-commercial use, and may not be used for any purpose other than to identify prospective properties consumers may be interested in purchasing. You may not reproduce or redistribute this data, it is for viewing purposes only. This data is deemed reliable, but is not guaranteed accurate by the MLS or NTREIS.
Read moreLast checked Jan 18, 4:00 am
- Jome
- New homes search
- Texas
- Callahan County
- Clyde
- 824 Benelli, Clyde, TX 79510


































