

Book your tour. Save an average of $18,473. We'll handle the rest.
- Confirmed tours
- Get matched & compare top deals
- Expert help, no pressure
- No added fees
Estimated value based on Jome data, T&C apply
- 3 bd
- 2 ba
- 1,416 sqft
900 Benelli, Clyde, TX 79510
Why tour with Jome?
- No pressure toursTour at your own pace with no sales pressure
- Expert guidanceGet insights from our home buying experts
- Exclusive accessSee homes and deals not available elsewhere
Jome is featured in
- Single-Family
- Under construction
- $176.55/sqft
- 0.22-acre lot
Home description
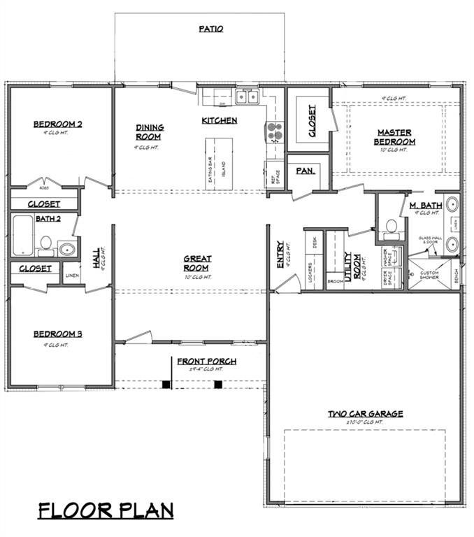
Welcome to this beautifully crafted new construction home offering the perfect blend of style, comfort, and efficiency. This 3-bedroom, 2-bathroom gem features high-end finishes throughout, including granite countertops, vinyl plank flooring, and energy-efficient LED lighting. Enjoy year-round comfort with spray foam insulation, and bask in the open, airy feel of the vaulted ceiling in the main living area. The spacious 2-car garage provides plenty of room for vehicles and storage. Located in a desirable neighborhood with curb and gutter frontage, this home offers city water and sewer and is just steps away from a beautiful city park—less than one block away. The privacy fence surrounding the backyard creates a perfect space for relaxing, entertaining, or letting kids and pets play safely.
Real Broker, LLC., MLS 21130184
Information last verified by Jome: Yesterday at 1:35 AM (December 13, 2025)
Home highlights
Book your tour. Save an average of $18,473. We'll handle the rest.
We collect exclusive builder offers, book your tours, and support you from start to housewarming.
- Confirmed tours
- Get matched & compare top deals
- Expert help, no pressure
- No added fees
Estimated value based on Jome data, T&C apply
Home details
- Property status:
- Under construction
- Lot size (acres):
- 0.22
- Size:
- 1,416 sqft
- Stories:
- 1
- Beds:
- 3
- Baths:
- 2
- Garage spaces:
- 2
Construction details
- Year Built:
- 2025
- Roof:
- Composition Roofing
Home features & finishes
- Cooling:
- Ceiling Fan(s)Central Air
- Flooring:
- Vinyl Flooring
- Foundation Details:
- Slab
- Garage/Parking:
- GarageFront Entry Garage/ParkingAttached Garage
- Kitchen:
- DishwasherDisposalKitchen Range
- Rooms:
- Primary Bedroom On MainKitchenPrimary Bedroom Downstairs
Utility information
- Heating:
- Electric Heating, Central Heating
- Utilities:
- City Water System
Neighborhood
Home address
Schools in Clyde Consolidated Independent School District
GreatSchools’ Summary Rating calculation is based on 4 of the school’s themed ratings, including test scores, student/academic progress, college readiness, and equity. This information should only be used as a reference. Jome is not affiliated with GreatSchools and does not endorse or guarantee this information. Please reach out to schools directly to verify all information and enrollment eligibility. Data provided by GreatSchools.org © 2025
Getting around
Natural hazards risk
Climate hazards can impact homes and communities, with risks varying by location. These scores reflect the potential impact of natural disasters and climate-related risks on Callahan County
Provided by FEMA

Considering this home?
Our expert will guide your tour, in-person or virtual
Need more information?
Text or call (888) 486-2818
Financials
Similar homes nearby
Recently added communities in this area
Nearby communities in Clyde
New homes in nearby cities
More New Homes in Clyde, TX
Real Broker, LLC., MLS 21130184
IDX information is provided exclusively for personal, non-commercial use, and may not be used for any purpose other than to identify prospective properties consumers may be interested in purchasing. You may not reproduce or redistribute this data, it is for viewing purposes only. This data is deemed reliable, but is not guaranteed accurate by the MLS or NTREIS.
Read moreLast checked Dec 13, 10:00 pm
- Jome
- New homes search
- Texas
- Callahan County
- Clyde
- 900 Benelli, Clyde, TX 79510









