




Book your tour. Save an average of $18,473. We'll handle the rest.
- Confirmed tours
- Get matched & compare top deals
- Expert help, no pressure
- No added fees
Estimated value based on Jome data, T&C apply
- 5 bd
- 4.5 ba
- 4,013 sqft
2213 Laurel Dr, Rockwall, TX 75087
Why tour with Jome?
- No pressure toursTour at your own pace with no sales pressure
- Expert guidanceGet insights from our home buying experts
- Exclusive accessSee homes and deals not available elsewhere
Jome is featured in
- Single-Family
- Under construction
- $199.35/sqft
- $1,283/annual HOA
Home description
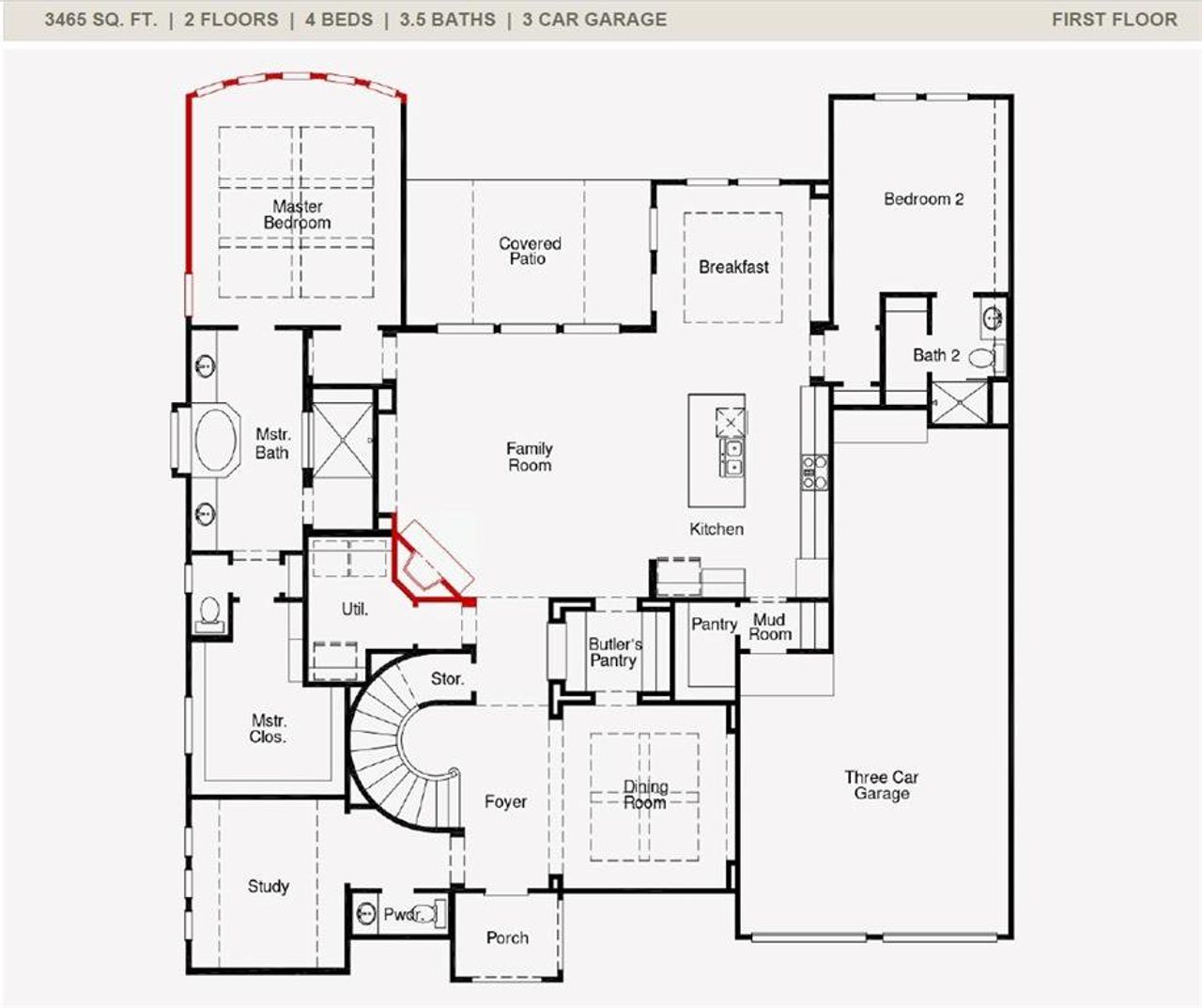
MLS# 21096533 - Built by Coventry Homes - Dec 12 2025 completion! ~ Step into the stunning Ames plan—a spacious 5-bedroom home that blends elegance and functionality with ease. Enjoy movie nights in your private media room, host game nights in the upstairs game room, and cozy up by the fireplace in the open-concept great room. The primary suite is a true retreat, featuring a dramatic bow window, luxurious freestanding tub, and soaring ceilings. With rich Nimbus Oak flooring throughout the shared spaces and a classic traditional elevation, this home offers timeless style and exceptional comfort. Don’t miss your chance to make the Ames plan your forever home—schedule your private tour today!
HomesUSA.com, MLS 21096533
May also be listed on the Coventry Homes website
Information last verified by Jome: Today at 1:33 AM (December 5, 2025)
Home highlights
Peaceful Dallas lake with trails, birdwatching, and historic neighborhoods just minutes from the city center.
Book your tour. Save an average of $18,473. We'll handle the rest.
We collect exclusive builder offers, book your tours, and support you from start to housewarming.
- Confirmed tours
- Get matched & compare top deals
- Expert help, no pressure
- No added fees
Estimated value based on Jome data, T&C apply
Home details
- Property status:
- Under construction
- Lot size (acres):
- 0.23
- Lot width (feet):
- 70
- Size:
- 4,013 sqft
- Stories:
- 2
- Beds:
- 5
- Baths:
- 4
- Half baths:
- 1
- Garage spaces:
- 3
- Fence:
- Wood Fence
- Facing direction:
- Northeast
Construction details
- Builder Name:
- Coventry Homes
- Year Built:
- 2025
- Roof:
- Composition Roofing
Home features & finishes
- Construction Materials:
- Brick
- Cooling:
- Ceiling Fan(s)Central Air
- Flooring:
- Vinyl FlooringCarpet FlooringTile Flooring
- Foundation Details:
- Slab
- Garage/Parking:
- GarageAttached GarageTandem Parking
- Home amenities:
- Green Construction
- Interior Features:
- Ceiling-VaultedWalk-In ClosetFoyerPantryFlat Screen Wiring
- Kitchen:
- DishwasherMicrowave OvenDisposalGas CooktopGranite countertopKitchen Island
- Laundry facilities:
- Stackable Washer/DryerUtility/Laundry Room
- Lighting:
- Decorative/Designer Lighting
- Property amenities:
- SidewalkButler's PantryLandscapingPatioFireplacePorch
- Rooms:
- Primary Bedroom On MainKitchenGame RoomOffice/StudyMudroomDining RoomFamily RoomBreakfast AreaPrimary Bedroom Downstairs
- Security system:
- Smoke Detector
Utility information
- Heating:
- Water Heater, Central Heating, Gas Heating
- Utilities:
- Underground Utilities, HVAC, City Water System, High Speed Internet Access, Cable TV

Community details
Saddle Star Estates at Saddle Star
by Coventry Homes, Rockwall, TX
- 11 homes
- 10 plans
- 2,684 - 4,147 sqft
View Saddle Star Estates details
Community amenities
- Playground
- Club House
- Community Pool
- Greenbelt View
- Walking, Jogging, Hike Or Bike Trails
More homes in Saddle Star Estates
Floor plans in Saddle Star Estates
About the builder - Coventry Homes
Neighborhood
Home address
Schools in Rockwall Independent School District
GreatSchools’ Summary Rating calculation is based on 4 of the school’s themed ratings, including test scores, student/academic progress, college readiness, and equity. This information should only be used as a reference. Jome is not affiliated with GreatSchools and does not endorse or guarantee this information. Please reach out to schools directly to verify all information and enrollment eligibility. Data provided by GreatSchools.org © 2025
Places of interest
Getting around
Air quality
Noise level
A Soundscore™ rating is a number between 50 (very loud) and 100 (very quiet) that tells you how loud a location is due to environmental noise.
Natural hazards risk
Climate hazards can impact homes and communities, with risks varying by location. These scores reflect the potential impact of natural disasters and climate-related risks on Rockwall County
Provided by FEMA

Considering this home?
Our expert will guide your tour, in-person or virtual
Need more information?
Text or call (888) 486-2818
Financials
Estimated monthly payment
Similar homes nearby
Recently added communities in this area
Nearby communities in Rockwall
New homes in nearby cities
More New Homes in Rockwall, TX
HomesUSA.com, MLS 21096533
IDX information is provided exclusively for personal, non-commercial use, and may not be used for any purpose other than to identify prospective properties consumers may be interested in purchasing. You may not reproduce or redistribute this data, it is for viewing purposes only. This data is deemed reliable, but is not guaranteed accurate by the MLS or NTREIS.
Read moreLast checked Dec 5, 4:00 am
- Home
- New homes
- Texas
- Dallas-Fort Worth Area
- Rockwall County
- Rockwall
- Saddle Star Estates
- 2213 Laurel Dr, Rockwall, TX 75087



































