





































- 4 bd
- 3 ba
- 3,055 sqft
2641 Acie Ln, Prosper, TX 75078
- Single-Family
- $286.41/sqft
- $381/quarterly HOA
- 0.16-acre lot
New Homes for Sale Near 2641 Acie Ln, Prosper, TX 75078
About this Home
MLS# 20997949 - Built by Highland Homes - October completion! ~ Located in Prosper with just over 800 acres of master planned community with 3 pools, playground, lighted tennis and pickle ball courts, parks, walking and biking trails and a new elementary school coming soon. Our new phase is now open and available for lot selection.
Dina Verteramo, MLS 20997949
May also be listed on the Highland Homes website
Information last verified by Jome: Today at 1:24 AM (January 22, 2026)
Home details
- Property status:
- Sold
- Lot size (acres):
- 0.16
- Lot width (feet):
- 55
- Size:
- 3,055 sqft
- Stories:
- 2
- Beds:
- 4
- Baths:
- 3
- Garage spaces:
- 2
- Fence:
- Wood Fence, Brick Fence, Metal Fence
Construction details
- Builder Name:
- Highland Homes
- Completion Date:
- October, 2025
- Year Built:
- 2025
- Roof:
- Roof Gutter, Composition Roofing
Home features & finishes
- Construction Materials:
- Brick
- Cooling:
- Ceiling Fan(s)Central Air
- Flooring:
- Ceramic FlooringWood FlooringCarpet FlooringTile Flooring
- Foundation Details:
- Slab
- Garage/Parking:
- GarageFront Entry Garage/ParkingMulti-Door GarageAttached Garage
- Home amenities:
- Green Construction
- Interior Features:
- Walk-In ClosetPantry
- Kitchen:
- DishwasherMicrowave OvenDisposalGas CooktopKitchen IslandElectric Oven
- Laundry facilities:
- Stackable Washer/DryerUtility/Laundry Room
- Lighting:
- Decorative/Designer Lighting
- Property amenities:
- SidewalkOutdoor LivingPatioFireplacePorch
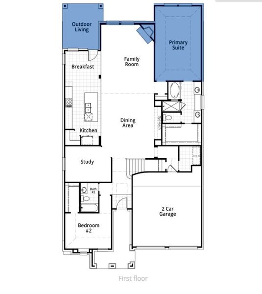
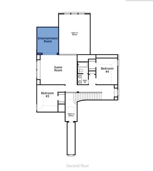
- Rooms:
- Primary Bedroom On MainKitchenGame RoomOffice/StudyDining RoomFamily RoomBreakfast AreaOpen Concept FloorplanPrimary Bedroom Downstairs
- Security system:
- Smoke DetectorCarbon Monoxide Detector
Utility information
- Heating:
- Zoned Heating, Water Heater, Gas Heating, Tankless water heater
- Utilities:
- Underground Utilities, City Water System, Individual Water Meter, Individual Gas Meter, Curbs

Community details
Star Trail: 55ft. lots at Star Trail
by Highland Homes, Prosper, TX
- 7 homes
- 14 plans
- 1,990 - 3,764 sqft
View Star Trail: 55ft. lots details
Community amenities
- Playground
- Club House
- Tennis Courts
- Community Pool
- Park Nearby
- Sidewalks Available
- Greenbelt View
- Walking, Jogging, Hike Or Bike Trails
- Electric Vehicle Charging Station(s)
More homes in Star Trail: 55ft. lots
- Home at address 2610 Merrell Ct, Prosper, TX 75078

$929,990
Move-in ready- 5 bd
- 5.5 ba
- 3,638 sqft
2610 Merrell Ct, Prosper, TX 75078
- Home at address 880 Heatherbrook Dr, Prosper, TX 75078

$947,070
Under construction- 5 bd
- 5.5 ba
- 3,421 sqft
880 Heatherbrook Dr, Prosper, TX 75078
- Home at address 910 Heatherbrook Dr, Prosper, TX 75078

$953,880
Under construction- 5 bd
- 5.5 ba
- 3,686 sqft
910 Heatherbrook Dr, Prosper, TX 75078
- Home at address 2620 Merrell Ct, Prosper, TX 75078

$990,465
Under construction- 5 bd
- 5.5 ba
- 3,472 sqft
2620 Merrell Ct, Prosper, TX 75078
- Home at address 2650 Acie Ln, Prosper, TX 75078

$996,045
Under construction- 4 bd
- 4.5 ba
- 3,450 sqft
2650 Acie Ln, Prosper, TX 75078
- Home at address 2631 Acie Ln, Prosper, TX 75078

$1,007,235
Under construction- 5 bd
- 5.5 ba
- 3,686 sqft
2631 Acie Ln, Prosper, TX 75078
Floor plans in Star Trail: 55ft. lots
About the builder - Highland Homes
Neighborhood
Home address
Schools in Prosper Independent School District
- Grades PK-05Publicnew elementary0.6 mi1001 star meadow drna
GreatSchools’ Summary Rating calculation is based on 4 of the school’s themed ratings, including test scores, student/academic progress, college readiness, and equity. This information should only be used as a reference. Jome is not affiliated with GreatSchools and does not endorse or guarantee this information. Please reach out to schools directly to verify all information and enrollment eligibility. Data provided by GreatSchools.org © 2025
Places of interest
Getting around
Air quality
Financials
Nearby communities in Prosper
Homes in Prosper by Highland Homes
Recently added communities in this area
Other Builders in Prosper, TX
Nearby sold homes
New homes in nearby cities
More New Homes in Prosper, TX
Dina Verteramo, MLS 20997949
IDX information is provided exclusively for personal, non-commercial use, and may not be used for any purpose other than to identify prospective properties consumers may be interested in purchasing. You may not reproduce or redistribute this data, it is for viewing purposes only. This data is deemed reliable, but is not guaranteed accurate by the MLS or NTREIS.
Read moreLast checked Jan 22, 10:00 am
- Jome
- New homes search
- Texas
- Dallas-Fort Worth Area
- Collin County
- Prosper
- Star Trail: 55ft. lots
- 2641 Acie Ln, Prosper, TX 75078







































































