






















- 3 bd
- 2.5 ba
- 2,070 sqft
5005 Mozzafiato Dr, Round Rock, TX 78665
- Single-Family
- $186.31/sqft
- $720/annual HOA
- North facing
New Homes for Sale Near 5005 Mozzafiato Dr, Round Rock, TX 78665
About this Home
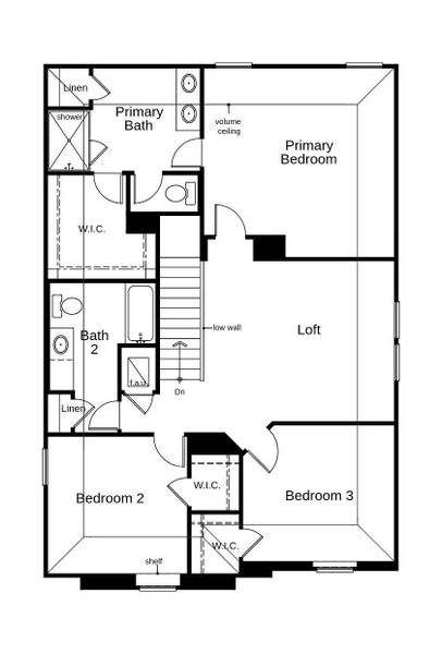
Discover modern living in this stunning, two-story home, which showcases stylish luxury vinyl plank flooring and a spacious great room, which is ideal for gatherings. The kitchen boasts elegant Shaker-style cabinets, sleek tile backsplash, a gas range and Silestone® countertops in Miami Vena. Upstairs, a versatile loft provides additional living space. The primary bedroom features plush carpeting, a walk-in closet and connecting bath that offers a dual-sink vanity and luxurious walk-in shower with tile surround. Additional highlights include an ecobee3 Lite smart thermostat, timeless Sherwin-Williams® interior paint, Moen® fixtures throughout and ceiling fans at great room and primary bedroom. Enjoy outdoor living on the covered back patio.
SATEX Properties, Inc., MLS 3586345
May also be listed on the KB Home website
Information last verified by Jome: Yesterday at 7:03 AM (December 9, 2025)
Home details
- Property status:
- Sold
- Lot size (acres):
- 0.14
- Size:
- 2,070 sqft
- Stories:
- 2
- Beds:
- 3
- Baths:
- 2.5
- Garage spaces:
- 2
- Fence:
- Privacy Fence
- Facing direction:
- North
Construction details
- Builder Name:
- KB Home
- Year Built:
- 2025
- Roof:
- Shingle Roofing
Home features & finishes
- Construction Materials:
- Brick
- Cooling:
- Central Air
- Flooring:
- Vinyl FlooringCarpet Flooring
- Foundation Details:
- Slab
- Garage/Parking:
- Garage
- Home amenities:
- Green Construction
- Interior Features:
- Walk-In ClosetPantryBreakfast Bar
- Kitchen:
- DishwasherDisposal
- Lighting:
- Lighting
- Property amenities:
- PatioYard
- Rooms:
- Breakfast Area
Utility information
- Heating:
- Thermostat, Central Heating
- Utilities:
- Electricity Available, Natural Gas Available, HVAC, Water Available
Community amenities
- Playground
- Community Pool
- Park Nearby
About the builder - KB Home
Neighborhood
Home address
- City:
- Round Rock
- County:
- Williamson
- Zip Code:
- 78665
Schools in Hutto Independent School District
- Grades M-MPublicgus almquist2.7 mi1000 haybarn lnna
GreatSchools’ Summary Rating calculation is based on 4 of the school’s themed ratings, including test scores, student/academic progress, college readiness, and equity. This information should only be used as a reference. Jome is not affiliated with GreatSchools and does not endorse or guarantee this information. Please reach out to schools directly to verify all information and enrollment eligibility. Data provided by GreatSchools.org © 2025
Places of interest
Getting around
Air quality
Natural hazards risk
Climate hazards can impact homes and communities, with risks varying by location. These scores reflect the potential impact of natural disasters and climate-related risks on Williamson County
Provided by FEMA
Financials
Nearby communities in Round Rock
Recently added communities in this area
Other Builders in Round Rock, TX
Nearby sold homes
New homes in nearby cities
More New Homes in Round Rock, TX
SATEX Properties, Inc., MLS 3586345
Based on information from the Austin Board of REALTORS® (alternatively, from ACTRIS) for the period through 08/13/2024. Neither the Board nor ACTRIS guarantees or is in any way responsible for its accuracy. All data is provided “AS IS” and with all faults. Data maintained by the Board or ACTRIS may not reflect all real estate activity in the market. Information being provided is for consumers’ personal, non-commercial use and may not be used for any purpose other than to identify prospective properties consumers may be interested in purchasing. The Digital Millennium Copyright Act of 1998, 17 U.S.C. § 512 (the “DMCA”) provides recourse for copyright owners who believe that material appearing on the Internet infringes their rights under U.S. copyright law. If you believe in good faith that any content or material made available in connection with our website or services infringes your copyright, you (or your agent) may send us a notice requesting that the content or material be removed, or access to it blocked. Notices must be sent in writing by email to DMCAnotice@MLSGrid.com. The DMCA requires that your notice of alleged copyright infringement include the following information: (1) description of the copyrighted work that is the subject of claimed infringement; (2) description of the alleged infringing content and information sufficient to permit us to locate the content; (3) contact information for you, including your address, telephone number and email address; (4) a statement by you that you have a good faith belief that the content in the manner complained of is not authorized by the copyright owner, or its agent, or by the operation of any law; (5) a statement by you, signed under penalty of perjury, that the information in the notification is accurate and that you have the authority to enforce the copyrights that are claimed to be infringed; and (6) a physical or electronic signature of the copyright owner or a person authorized to act on the copyright owner’s behalf. Failure to include all of the above information may result in the delay of the processing of your complaint.
Read moreLast checked Dec 10, 12:40 am
- Jome
- New homes search
- Texas
- Greater Austin Area
- Williamson County
- Round Rock
- 5005 Mozzafiato Dr, Round Rock, TX 78665



















































