









Book your tour. Save an average of $18,473. We'll handle the rest.
- Confirmed tours
- Get matched & compare top deals
- Expert help, no pressure
- No added fees
Estimated value based on Jome data, T&C apply
- 5 bd
- 4.5 ba
- 3,633 sqft
8493 Wyndemere Ln, Frisco, TX 75036
Why tour with Jome?
- No pressure toursTour at your own pace with no sales pressure
- Expert guidanceGet insights from our home buying experts
- Exclusive accessSee homes and deals not available elsewhere
Jome is featured in
- Single-Family
- $232.53/sqft
- $1,485/annual HOA
- East facing
Home description
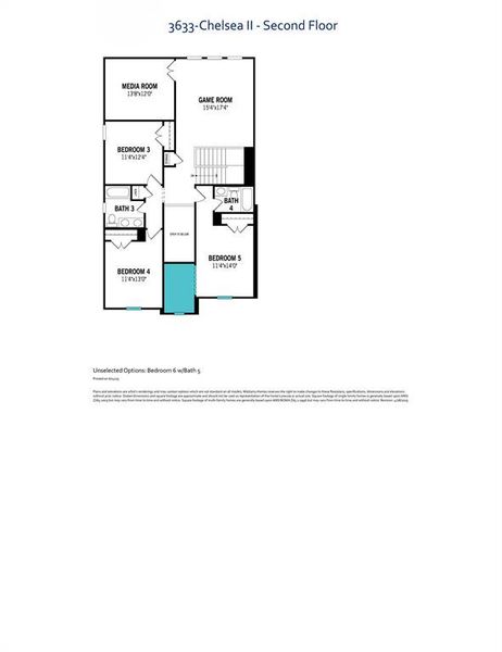
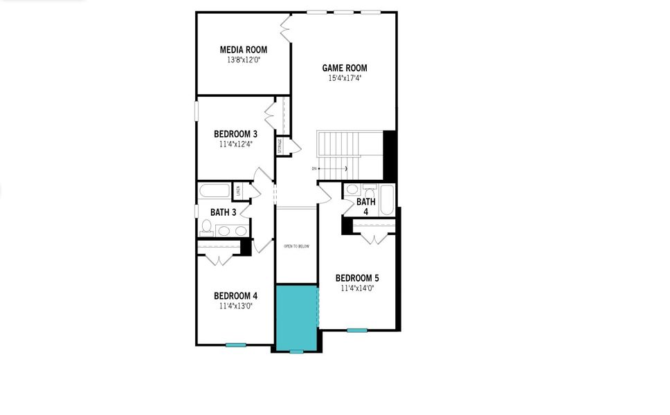
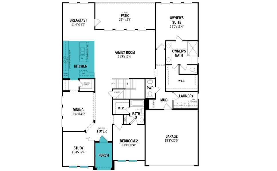
Phase II Now Available! Discover Villages at Creekwood, a beautifully designed master-planned community located in the sought-after city of Frisco—home to some of the lowest tax rates in the DFW area. Just minutes from popular destinations like Hidden Cove Marina and the upscale shops and restaurants of Legacy West, this community combines luxury with convenience. Enjoy scenic hike and bike trails and effortless access to major highways including FM 423, the Dallas North Tollway, & Hwy 121. The Chelsea II blends style, comfort, and functionality in a thoughtfully designed layout. A grand foyer makes a striking first impression, leading to a formal dining room perfect for hosting. The open-concept Great Room flows into the kitchen and breakfast nook—ideal for gathering, unwinding, and everyday moments. The main-floor owner's suite is a private retreat with a spa-inspired bathroom and generous walk-in closet. Upstairs is built for entertainment, featuring a game room and media room for movie nights, game days, and quality time together. Whether you're looking for a cozy night in or space to entertain, this home adapts to fit your lifestyle. With options like an electric fireplace, an enhanced owner’s bath, or an additional bedroom with a full bathroom, you can personalize the Chelsea II to meet your needs. Designed for modern living, this home includes energy-efficient features to enhance comfort and help lower utility costs. Smart design, flexible spaces, and thoughtful details make the Chelsea II a place where memories are made and everyday life feels just right. Estimated Completion Jul-Aug
Pinnacle Realty Advisors, MLS 20969950
May also be listed on the Mattamy Homes website
Information last verified by Jome: Today at 1:00 AM (January 20, 2026)
Home highlights
Popular Dallas trail connecting urban neighborhoods with tree-lined paths, fitness spots, and skyline views.
Book your tour. Save an average of $18,473. We'll handle the rest.
We collect exclusive builder offers, book your tours, and support you from start to housewarming.
- Confirmed tours
- Get matched & compare top deals
- Expert help, no pressure
- No added fees
Estimated value based on Jome data, T&C apply
Home details
- Property status:
- Pending/Under contract
- Lot size (acres):
- 0.17
- Size:
- 3,633 sqft
- Stories:
- 2
- Beds:
- 5
- Baths:
- 4
- Half baths:
- 1
- Garage spaces:
- 2
- Fence:
- Wood Fence
- Facing direction:
- East
Construction details
- Builder Name:
- Mattamy Homes
- Completion Date:
- August, 2025
- Year Built:
- 2025
- Roof:
- Composition Roofing
Home features & finishes
- Appliances:
- Sprinkler System
- Construction Materials:
- Brick
- Cooling:
- Central Air
- Flooring:
- Ceramic FlooringVinyl FlooringCarpet FlooringTile Flooring
- Garage/Parking:
- Door OpenerGarageRear Entry Garage/ParkingAttached Garage
- Interior Features:
- Walk-In ClosetFoyerPantryFlat Screen Wiring
- Kitchen:
- DishwasherMicrowave OvenDisposalGas CooktopKitchen Island
- Laundry facilities:
- DryerWasherStackable Washer/DryerUtility/Laundry Room
- Lighting:
- Decorative/Designer Lighting
- Property amenities:
- SidewalkLandscapingElectric FireplacePatioPorch
- Rooms:
- Primary Bedroom On MainKitchenPowder RoomGame RoomMedia RoomOffice/StudyMudroomDining RoomFamily RoomBreakfast AreaOpen Concept FloorplanPrimary Bedroom Downstairs
- Security system:
- Smoke DetectorCarbon Monoxide Detector

Get a consultation with our New Homes Expert
- See how your home builds wealth
- Plan your home-buying roadmap
- Discover hidden gems
Utility information
- Heating:
- Electric Heating, Zoned Heating, Water Heater, Central Heating, Tankless water heater
- Utilities:
- Underground Utilities, City Water System, Cable Available, Individual Water Meter, Individual Gas Meter, High Speed Internet Access, Cable TV, Curbs

Community details
Villages of Creekwood
by Mattamy Homes, Frisco, TX
- 9 homes
- 11 plans
- 2,061 - 3,631 sqft
View Villages of Creekwood details
Community amenities
- Park Nearby
- Greenbelt View
- Walking, Jogging, Hike Or Bike Trails
More homes in Villages of Creekwood
- Home at address 1016 Porter Dr, Frisco, TX 75036

Chelsea II
$833,970
- 5 bd
- 4.5 ba
- 3,631 sqft
1016 Porter Dr, Frisco, TX 75036
- Home at address 8517 Wyndemere Ln, Frisco, TX 75036

Dorian
$863,777
- 5 bd
- 4.5 ba
- 3,315 sqft
8517 Wyndemere Ln, Frisco, TX 75036
Floor plans in Villages of Creekwood
About the builder - Mattamy Homes

- 113communities on Jome
- 1,161homes on Jome
Neighborhood
Home address
Schools in Little Elm Independent School District
- Grades PK-KGPrivateprimrose of frisco west1.8 mi333 w lebanonna
- Grades M-MPublicnew elementary north2.1 mi400 lobo lnna
GreatSchools’ Summary Rating calculation is based on 4 of the school’s themed ratings, including test scores, student/academic progress, college readiness, and equity. This information should only be used as a reference. Jome is not affiliated with GreatSchools and does not endorse or guarantee this information. Please reach out to schools directly to verify all information and enrollment eligibility. Data provided by GreatSchools.org © 2025
Places of interest
Getting around
Noise level
A Soundscore™ rating is a number between 50 (very loud) and 100 (very quiet) that tells you how loud a location is due to environmental noise.

Considering this home?
Our expert will guide your tour, in-person or virtual
Need more information?
Text or call (888) 486-2818
Financials
Estimated monthly payment
Let us help you find your dream home
How many bedrooms are you looking for?
Similar homes nearby
Recently added communities in this area
Nearby communities in Frisco
New homes in nearby cities
More New Homes in Frisco, TX
Pinnacle Realty Advisors, MLS 20969950
IDX information is provided exclusively for personal, non-commercial use, and may not be used for any purpose other than to identify prospective properties consumers may be interested in purchasing. You may not reproduce or redistribute this data, it is for viewing purposes only. This data is deemed reliable, but is not guaranteed accurate by the MLS or NTREIS.
Read moreLast checked Jan 20, 4:00 pm
- Jome
- New homes search
- Texas
- Dallas-Fort Worth Area
- Denton County
- Frisco
- Villages of Creekwood
- 8493 Wyndemere Ln, Frisco, TX 75036
























