




- 4 bd
- 3 ba
- 2,850 sqft
218 Observation Drive W, Aledo, TX 76008
- Single-Family
- $209.82/sqft
- $600/annual HOA
- South facing
New Homes for Sale Near 218 Observation Drive W, Aledo, TX 76008
About this Home
LUXURY AMENITIES
- Luxury vinyl wood-style flooring in entry, living, kitchen, dining, nook, mud hall, and downstairs halls
- New stainless kitchen appliances with gas range
- Chef’s dream kitchen with an expansive eat-in island
- Painted brick fireplace and painted mantle
- Signature painted brick arch at entry
- Spacious master bathroom with large freestanding tub and separate shower
- Designer lighting and tile throughout
- Ecobee 4 Smart thermostats, RING Doorbell, 2 USB plugs, and energy efficient LED lights
- Full landscaping package with irrigation and more!
May also be listed on the Clarity Homes website
Information last verified by Jome: Thursday at 2:27 AM (April 16, 2026)
Home details
- Property status:
- Sold
- Size:
- 2,850 sqft
- Stories:
- 2
- Beds:
- 4
- Baths:
- 3
- Garage spaces:
- 2
- Facing direction:
- South
Construction details
- Builder Name:
- Clarity Homes
Home features & finishes
- Garage/Parking:
- GarageAttached Garage
- Interior Features:
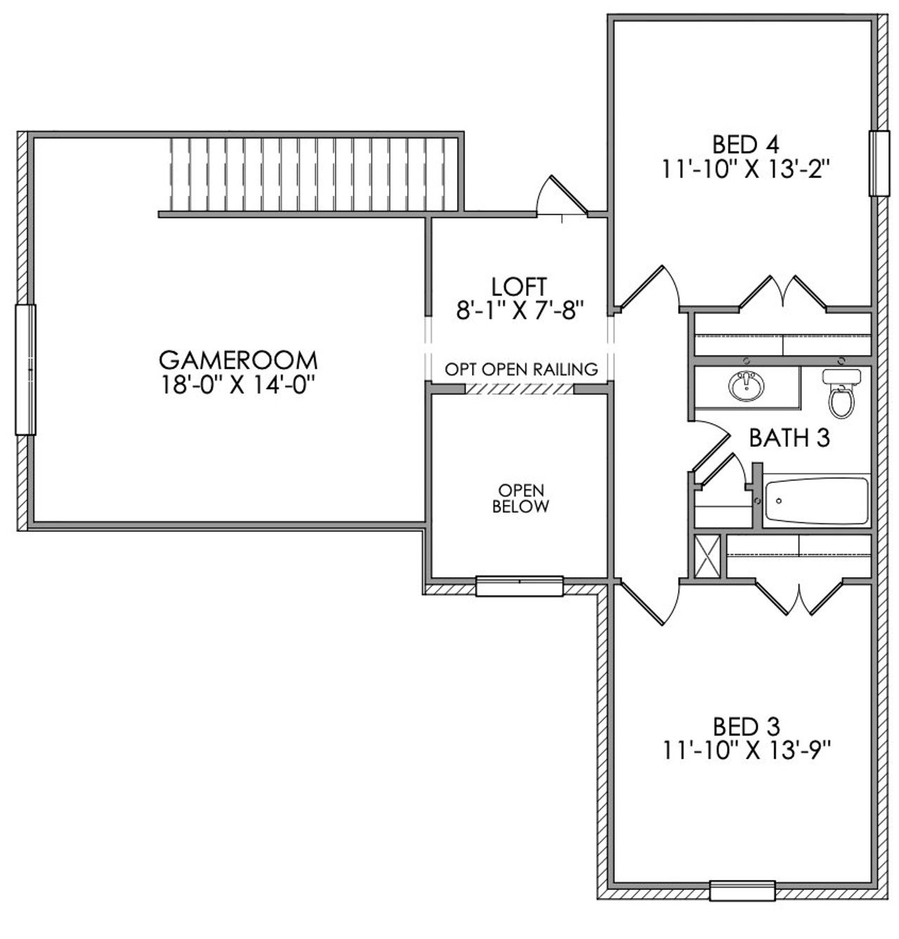
- Walk-In ClosetFoyerPantryLoft
- Kitchen:
- Stainless Steel AppliancesGas CooktopKitchen Island
- Laundry facilities:
- Utility/Laundry Room
- Property amenities:
- PatioPorch
- Rooms:
- Primary Bedroom On MainKitchenNookGame RoomLiving RoomPrimary Bedroom Downstairs
Utility information
- Heating:
- Thermostat

Community details
The Bluffs at Parks of Aledo at Parks of Aledo
by Clarity Homes, Aledo, TX
- 22 plans
- 1,858 - 3,618 sqft
View The Bluffs at Parks of Aledo details
Floor plans in The Bluffs at Parks of Aledo
About the builder - Clarity Homes
Neighborhood
Home address
Schools in Aledo Independent School District
- Grades PK-PKPublicearly childhood academy1.6 mi408 fm 1187 sna
GreatSchools’ Summary Rating calculation is based on 4 of the school’s themed ratings, including test scores, student/academic progress, college readiness, and equity. This information should only be used as a reference. Jome is not affiliated with GreatSchools and does not endorse or guarantee this information. Please reach out to schools directly to verify all information and enrollment eligibility. Data provided by GreatSchools.org © 2025
Places of interest
Getting around
Air quality
Noise level
A Soundscore™ rating is a number between 50 (very loud) and 100 (very quiet) that tells you how loud a location is due to environmental noise.
Financials
Nearby communities in Aledo
Homes in Aledo by Clarity Homes
Recently added communities in this area
Other Builders in Aledo, TX
Nearby sold homes
New homes in nearby cities
More New Homes in Aledo, TX
- Jome
- New homes search
- Texas
- Dallas-Fort Worth Area
- Parker County
- Aledo
- The Bluffs at Parks of Aledo
- 218 Observation Drive W, Aledo, TX 76008









































































