










































- 4 bd
- 2.5 ba
- 2,389 sqft
1112 Redcoat Dr, Forney, TX 75126
- Single-Family
- $132.52/sqft
- $800/annual HOA
- 0.16-acre lot
New Homes for Sale Near 1112 Redcoat Dr, Forney, TX 75126
About this Home
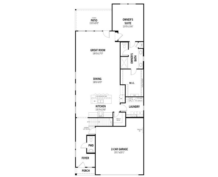
Mattamy Homes presents The Linwood Floor Plan. Walden Pond offers Peacefulness on the Texas prairie with modern amenities minutes from the Metroplex. Enjoy serene surroundings, top-rated schools, and vibrant lifestyle options. Tranquil green spaces, parks & trails meander throughout the community providing beautiful surroundings for meeting new neighbors and connecting with nature. Step into the Mirabel, an elegant two-story home offering 4 bedrooms, 2.5 bathrooms, and a generous 2,881 sq. ft. of living space. As you enter through the covered porch, you're greeted by a welcoming foyer. To one side, find a versatile flex room and convenient powder bathroom. The foyer leads you past the stairs to an open-concept living area where the great room, dining area, and kitchen seamlessly blend. The well-designed kitchen features an island that opens to both the dining area and great room, creating an ideal space for entertaining and daily life. A door provides easy access to the patio, perfect for indoor-outdoor living. The great room offers a comfortable setting for relaxation and gatherings. Ascending the stairs, you'll discover a spacious game room, perfect for family fun or leisure activities. The owner's suite, positioned on the opposite side of the stairs, offers a private retreat with a full bath and walk-in closet. Three additional bedrooms and a full bathroom complete the upper level, providing ample space for family or guests. The Mirabel's thoughtful design combines functionality with style, creating a comfortable and adaptable home for modern living. This energy efficient Mattamy Home features ENERGY STAR® certified Whirlpool® appliances and Ecobee4 smart thermostat. THIS HOME IS MOVE IN READY!
Pinnacle Realty Advisors, MLS 20963326
May also be listed on the Mattamy Homes website
Information last verified by Jome: Today at 12:52 AM (March 8, 2026)
Home details
- Property status:
- Sold
- Lot size (acres):
- 0.16
- Size:
- 2,389 sqft
- Stories:
- 2
- Beds:
- 4
- Baths:
- 2
- Half baths:
- 1
- Garage spaces:
- 2
- Fence:
- Wood Fence
Construction details
- Builder Name:
- Mattamy Homes
- Year Built:
- 2025
- Roof:
- Roof Gutter, Composition Roofing
Home features & finishes
- Appliances:
- Sprinkler System
- Construction Materials:
- BrickRockStone
- Cooling:
- Central Air
- Flooring:
- Ceramic FlooringVinyl FlooringCarpet FlooringTile Flooring
- Foundation Details:
- Slab
- Garage/Parking:
- Door OpenerGarageFront Entry Garage/ParkingAttached Garage
- Home amenities:
- ENERGY STAR Certified
- Interior Features:
- Walk-In ClosetFoyerPantryFlat Screen Wiring
- Kitchen:
- DishwasherDisposalGas CooktopKitchen IslandElectric Oven
- Laundry facilities:
- DryerWasherStackable Washer/DryerUtility/Laundry Room
- Lighting:
- Decorative/Designer Lighting
- Property amenities:
- SidewalkLandscapingPatioPorch
- Rooms:
- Primary Bedroom On MainKitchenPowder RoomGame RoomDining RoomFamily RoomOpen Concept FloorplanPrimary Bedroom Downstairs
- Security system:
- Smoke DetectorCarbon Monoxide Detector
Utility information
- Heating:
- Water Heater, Central Heating, Tankless water heater
- Utilities:
- Underground Utilities, City Water System, Individual Water Meter, Individual Gas Meter, High Speed Internet Access, Cable TV, Curbs

Community details
Walden Pond at Walden Pond
by Mattamy Homes, Forney, TX
- 13 homes
- 15 plans
- 1,447 - 3,038 sqft
View Walden Pond details
Community amenities
- Playground
- Club House
- Community Pool
- Park Nearby
- Sidewalks Available
- Greenbelt View
- Walking, Jogging, Hike Or Bike Trails
More homes in Walden Pond
- Home at address 1106 Redcoat Dr, Forney, TX 75126

$329,090
Move-in ready- 4 bd
- 2.5 ba
- 2,389 sqft
1106 Redcoat Dr, Forney, TX 75126
- Home at address 2903 Hanscom St, Forney, TX 75126

$373,990
Move-in ready- 4 bd
- 2.5 ba
- 2,881 sqft
2903 Hanscom St, Forney, TX 75126
- Home at address 2511 Sturgis St, Forney, TX 75126

$392,815
Under construction- 4 bd
- 3 ba
- 2,941 sqft
2511 Sturgis St, Forney, TX 75126
Floor plans in Walden Pond
About the builder - Mattamy Homes

- 121communities on Jome
- 1,343homes on Jome
Neighborhood
Home address
Schools in Forney Independent School District
- Grades KG-04Publicdewberry elementary1.3 mi6800 falcon wayna
- Grades 09-12Publicforney learning academy1.6 mi600 s bois d arc stna
GreatSchools’ Summary Rating calculation is based on 4 of the school’s themed ratings, including test scores, student/academic progress, college readiness, and equity. This information should only be used as a reference. Jome is not affiliated with GreatSchools and does not endorse or guarantee this information. Please reach out to schools directly to verify all information and enrollment eligibility. Data provided by GreatSchools.org © 2025
Places of interest
Getting around
Air quality
Noise level
A Soundscore™ rating is a number between 50 (very loud) and 100 (very quiet) that tells you how loud a location is due to environmental noise.
Financials
Nearby communities in Forney
Homes in Forney by Mattamy Homes
Recently added communities in this area
Other Builders in Forney, TX
Nearby sold homes
New homes in nearby cities
More New Homes in Forney, TX
Pinnacle Realty Advisors, MLS 20963326
IDX information is provided exclusively for personal, non-commercial use, and may not be used for any purpose other than to identify prospective properties consumers may be interested in purchasing. You may not reproduce or redistribute this data, it is for viewing purposes only. This data is deemed reliable, but is not guaranteed accurate by the MLS or NTREIS.
Read moreLast checked Mar 7, 10:00 pm
- Jome
- New homes search
- Texas
- Dallas-Fort Worth Area
- Kaufman County
- Forney
- Walden Pond
- 1112 Redcoat Dr, Forney, TX 75126





































































