






































- 4 bd
- 3.5 ba
- 3,400 sqft
1509 Rodeo Ridge Dr, Georgetown, TX 78628
- Single-Family
- $208.3/sqft
- $496/semi-annual HOA
- North facing
New Homes for Sale Near 1509 Rodeo Ridge Dr, Georgetown, TX 78628
About this Home
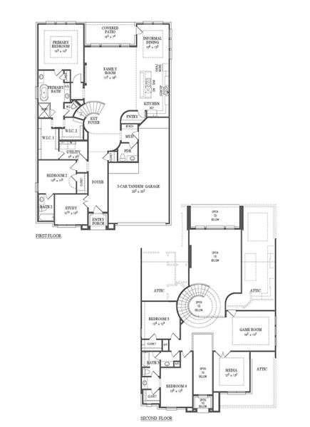
Westin Homes NEW Construction (The Wilson - A) GREENBELT! In highly sought after Wolf Ranch. 3 CAR GARAGE. Gorgeous 2-Story Rotunda Entry with Wrought Iron Circular Staircase. Gourmet Open Island Kitchen with Quartz Countertops, 42" Tall Kitchen Cabinets with Uppers & Built-In Stainless Steel Appliances. Family Room with High Ceilings & Wall of Windows. Large Covered Patio. Private Primary Suite Down with Luxurious Bath Featuring Double Vanity Sinks with Quartz Countertops, Large Walk-in Shower & Free-Standing Tub. Guest Suite with Private Bath on First Floor. Study with Double Doors. Upstairs features Media Room, Game Room & 2 Beds / 1 Full Baths. Mud Room. Smart Home Package. Tray Ceilings, Architectural Details and more!
Coldwell Banker Realty, MLS 2120991
May also be listed on the Westin Homes website
Information last verified by Jome: Today at 6:52 AM (December 7, 2025)
Home details
- Property status:
- Sold
- Lot size (acres):
- 0.19
- Lot width (feet):
- 55
- Size:
- 3,400 sqft
- Stories:
- 2
- Beds:
- 4
- Baths:
- 3.5
- Garage spaces:
- 3
- Fence:
- Wood Fence
- Facing direction:
- North
Construction details
- Builder Name:
- Westin Homes
- Year Built:
- 2025
- Roof:
- Composition Roofing
Home features & finishes
- Appliances:
- Exhaust Fan
- Cooling:
- Ceiling Fan(s)Central Air
- Flooring:
- Carpet FlooringTile Flooring
- Foundation Details:
- Slab
- Garage/Parking:
- GarageAttached GarageTandem Parking
- Interior Features:
- Ceiling-HighWalk-In ClosetCrown MoldingFoyerCoffered CeilingPantryDouble Vanity
- Kitchen:
- DishwasherMicrowave OvenOvenDisposalBuilt-In OvenQuartz countertopKitchen IslandKitchen Range
- Laundry facilities:
- DryerWasherUtility/Laundry Room
- Property amenities:
- Soaking TubPatioFireplacePorch
- Rooms:
- Primary Bedroom On MainKitchenPowder RoomGame RoomMedia RoomOffice/StudyMudroomDining RoomFamily RoomLiving RoomPrimary Bedroom Downstairs
Utility information
- Heating:
- Water Heater, Central Heating, Tankless water heater
- Utilities:
- Underground Utilities

Community details
Wolf Ranch - 55' at Wolf Ranch
by Westin Homes, Georgetown, TX
- 11 homes
- 9 plans
- 3,237 - 3,798 sqft
View Wolf Ranch - 55' details
Community amenities
- Grill Area
- Common Grounds
- Dog Park
- Playground
- Fitness Center/Exercise Area
- Club House
- Community Pool
- Park Nearby
- BBQ Area
- Picnic Area
- Pet Amenities
- Cluster Mailbox
- Sidewalks Available
- Greenbelt View
- Google Fiber
More homes in Wolf Ranch - 55'
Floor plans in Wolf Ranch - 55'
About the builder - Westin Homes
Neighborhood
Home address
- City:
- Georgetown
- County:
- Williamson
- Zip Code:
- 78628
Schools in Georgetown Independent School District
- Grades PK-08Privatecommunity montessori school2.3 mi500 pleasant valley drna
GreatSchools’ Summary Rating calculation is based on 4 of the school’s themed ratings, including test scores, student/academic progress, college readiness, and equity. This information should only be used as a reference. Jome is not affiliated with GreatSchools and does not endorse or guarantee this information. Please reach out to schools directly to verify all information and enrollment eligibility. Data provided by GreatSchools.org © 2025
Places of interest
Getting around
Air quality
Noise level
A Soundscore™ rating is a number between 50 (very loud) and 100 (very quiet) that tells you how loud a location is due to environmental noise.
Natural hazards risk
Climate hazards can impact homes and communities, with risks varying by location. These scores reflect the potential impact of natural disasters and climate-related risks on Williamson County
Provided by FEMA
Financials
Nearby communities in Georgetown
Homes in Georgetown Neighborhoods
Homes in Georgetown by Westin Homes
Recently added communities in this area
Other Builders in Georgetown, TX
Nearby sold homes
New homes in nearby cities
More New Homes in Georgetown, TX
Coldwell Banker Realty, MLS 2120991
Based on information from the Austin Board of REALTORS® (alternatively, from ACTRIS) for the period through 08/13/2024. Neither the Board nor ACTRIS guarantees or is in any way responsible for its accuracy. All data is provided “AS IS” and with all faults. Data maintained by the Board or ACTRIS may not reflect all real estate activity in the market. Information being provided is for consumers’ personal, non-commercial use and may not be used for any purpose other than to identify prospective properties consumers may be interested in purchasing. The Digital Millennium Copyright Act of 1998, 17 U.S.C. § 512 (the “DMCA”) provides recourse for copyright owners who believe that material appearing on the Internet infringes their rights under U.S. copyright law. If you believe in good faith that any content or material made available in connection with our website or services infringes your copyright, you (or your agent) may send us a notice requesting that the content or material be removed, or access to it blocked. Notices must be sent in writing by email to DMCAnotice@MLSGrid.com. The DMCA requires that your notice of alleged copyright infringement include the following information: (1) description of the copyrighted work that is the subject of claimed infringement; (2) description of the alleged infringing content and information sufficient to permit us to locate the content; (3) contact information for you, including your address, telephone number and email address; (4) a statement by you that you have a good faith belief that the content in the manner complained of is not authorized by the copyright owner, or its agent, or by the operation of any law; (5) a statement by you, signed under penalty of perjury, that the information in the notification is accurate and that you have the authority to enforce the copyrights that are claimed to be infringed; and (6) a physical or electronic signature of the copyright owner or a person authorized to act on the copyright owner’s behalf. Failure to include all of the above information may result in the delay of the processing of your complaint.
Read moreLast checked Dec 7, 6:40 am
- Home
- New homes
- Texas
- Greater Austin Area
- Williamson County
- Georgetown
- Wolf Ranch - 55'
- 1509 Rodeo Ridge Dr, Georgetown, TX 78628
















































































