



































- 4 bd
- 3.5 ba
- 3,306 sqft
921 Violet Sunset Dr, Georgetown, TX 78628
- Single-Family
- $199.4/sqft
- $496/semi-annual HOA
- Southwest facing
New Homes for Sale Near 921 Violet Sunset Dr, Georgetown, TX 78628
About this Home
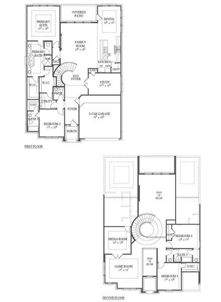
Westin Homes NEW Construction (The Lexington IX - B) READY NOW! In highly sought after Wolf Ranch. Gorgeous 2-Story Rotunda Entry with Wrought Iron Circular Staircase. Gourmet Open Island Kitchen with Quartz Countertops, 42" Tall Kitchen Cabinets with Uppers & Built-In Stainless Steel Appliances. Family Room with High Ceilings & Wall of Windows. Large Covered Patio. Private Primary Suite Down with Luxurious Bath Featuring Double Vanity Sinks with Quartz Countertops, Large Walk-in Shower & Free-Standing Tub. Guest Suite with Private Bath on First Floor. Study with Double Doors. Upstairs features Media Room, Game Room & 2 Beds / 1 Full Baths. Smart Home Package. Tray Ceilings,, Architectural Details and more!
May also be listed on the Westin Homes website
Information last verified by Jome: Wednesday at 6:51 AM (January 7, 2026)
Home details
- Property status:
- Sold
- Lot size (acres):
- 0.16
- Lot width (feet):
- 55
- Size:
- 3,306 sqft
- Stories:
- 2
- Beds:
- 4
- Baths:
- 3.5
- Garage spaces:
- 2
- Fence:
- Wood Fence
- Facing direction:
- Southwest

Floor plan details
The Lexington IX
- 4 bd
- 3.5 ba
- 3,302 sqft
View The Lexington IX details
Construction details
- Builder Name:
- Westin Homes
- Year Built:
- 2025
- Roof:
- Composition Roofing
Home features & finishes
- Appliances:
- Exhaust Fan
- Cooling:
- Ceiling Fan(s)Central Air
- Flooring:
- Carpet FlooringTile Flooring
- Foundation Details:
- Slab
- Garage/Parking:
- GarageAttached Garage
- Interior Features:
- Ceiling-HighWalk-In ClosetCrown MoldingFoyerCoffered CeilingPantryDouble Vanity
- Kitchen:
- DishwasherMicrowave OvenOvenDisposalBuilt-In OvenQuartz countertopKitchen IslandKitchen Range
- Laundry facilities:
- DryerWasherUtility/Laundry Room
- Property amenities:
- Soaking TubPatioFireplacePorch
- Rooms:
- Primary Bedroom On MainKitchenPowder RoomGame RoomMedia RoomOffice/StudyDining RoomFamily RoomLiving RoomPrimary Bedroom Downstairs
Utility information
- Heating:
- Water Heater, Central Heating, Tankless water heater
- Utilities:
- Underground Utilities

Community details
Wolf Ranch - 55' at Wolf Ranch
by Westin Homes, Georgetown, TX
- 7 homes
- 11 plans
- 3,237 - 3,798 sqft
View Wolf Ranch - 55' details
Community amenities
- Grill Area
- Common Grounds
- Dog Park
- Playground
- Fitness Center/Exercise Area
- Club House
- Community Pool
- Park Nearby
- BBQ Area
- Picnic Area
- Pet Amenities
- Cluster Mailbox
- Sidewalks Available
- Google Fiber
More homes in Wolf Ranch - 55'
- Home at address 1508 Rodeo Ridge Dr, Georgetown, TX 78628

$669,793
Move-in ready- 4 bd
- 3.5 ba
- 3,306 sqft
1508 Rodeo Ridge Dr, Georgetown, TX 78628
- Home at address 1520 Rodeo Ridge Dr, Georgetown, TX 78628

$699,380
Move-in ready- 4 bd
- 3.5 ba
- 3,267 sqft
1520 Rodeo Ridge Dr, Georgetown, TX 78628
- Home at address 1528 Rodeo Ridge Dr, Georgetown, TX 78628

$709,614
Move-in ready- 4 bd
- 3.5 ba
- 3,400 sqft
1528 Rodeo Ridge Dr, Georgetown, TX 78628
- Home at address 1512 Rodeo Ridge Dr, Georgetown, TX 78628

$709,844
Move-in ready- 4 bd
- 3.5 ba
- 3,400 sqft
1512 Rodeo Ridge Dr, Georgetown, TX 78628
- Home at address 1417 Rodeo Ridge Dr, Georgetown, TX 78628

$724,705
Move-in ready- 4 bd
- 3.5 ba
- 3,400 sqft
1417 Rodeo Ridge Dr, Georgetown, TX 78628
- Home at address 1304 Summer Moon Dr, Georgetown, TX 78628

$729,490
Move-in ready- 4 bd
- 3.5 ba
- 3,306 sqft
1304 Summer Moon Dr, Georgetown, TX 78628
Floor plans in Wolf Ranch - 55'
About the builder - Westin Homes
Neighborhood
Home address
- City:
- Georgetown
- County:
- Williamson
- Zip Code:
- 78628
Schools in Georgetown Independent School District
GreatSchools’ Summary Rating calculation is based on 4 of the school’s themed ratings, including test scores, student/academic progress, college readiness, and equity. This information should only be used as a reference. Jome is not affiliated with GreatSchools and does not endorse or guarantee this information. Please reach out to schools directly to verify all information and enrollment eligibility. Data provided by GreatSchools.org © 2025
Places of interest
Getting around
Air quality
Noise level
A Soundscore™ rating is a number between 50 (very loud) and 100 (very quiet) that tells you how loud a location is due to environmental noise.
Financials
Nearby communities in Georgetown
Homes in Georgetown Neighborhoods
Homes in Georgetown by Westin Homes
Recently added communities in this area
Other Builders in Georgetown, TX
Nearby sold homes
New homes in nearby cities
More New Homes in Georgetown, TX
- Jome
- New homes search
- Texas
- Greater Austin Area
- Williamson County
- Georgetown
- Wolf Ranch - 55'
- 921 Violet Sunset Dr, Georgetown, TX 78628







































































