














































- 5 bd
- 4.5 ba
- 3,477 sqft
4334 Wildflower Ln, Oak Point, TX 75068
- Single-Family
- $178.03/sqft
- $1,200/annual HOA
- 0.14-acre lot
New Homes for Sale Near 4334 Wildflower Ln, Oak Point, TX 75068
About this Home
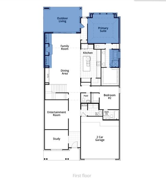
MLS# 21013158 - Built by Highland Homes - October completion! ~ Welcome to this expansive 3,477-square-foot, two-story home that artfully combines space and style, the Kent. With 5 bedrooms and 4.5 bathrooms, this residence is designed to accommodate busy living and personal retreats. As you step inside, you'll discover a thoughtfully designed study, perfect for a home office or creative space. The main level offers an inviting flow, seamlessly connecting the living areas for easy interaction and entertainment. Upstairs, a versatile loft provides an additional living space, ideal for a play area. The bedrooms are generously sized, ensuring comfort and privacy. This home is a perfect blend of functionality and charm, offering a dynamic layout that adapts to your lifestyle needs. Optional upgrades included in this home: - Fireplace - Freestanding tub in primary bath - Powder ILO storage -Enhanced extended outdoor living
HIGHLAND HOMES REALTY, MLS 21013158
May also be listed on the Highland Homes website
Information last verified by Jome: Today at 1:37 AM (April 1, 2026)
Home details
- Property status:
- Sold
- Lot size (acres):
- 0.14
- Size:
- 3,477 sqft
- Stories:
- 2
- Beds:
- 5
- Baths:
- 4
- Half baths:
- 1
- Garage spaces:
- 2
- Fence:
- Wood Fence
Construction details
- Builder Name:
- Highland Homes
- Completion Date:
- October, 2025
- Year Built:
- 2025
- Roof:
- Composition Roofing
Home features & finishes
- Appliances:
- Exhaust Fan VentedSprinkler System
- Construction Materials:
- Brick
- Cooling:
- Central Air
- Flooring:
- Ceramic FlooringWood FlooringCarpet FlooringTile Flooring
- Foundation Details:
- Slab
- Garage/Parking:
- GarageAttached Garage
- Interior Features:
- Walk-In ClosetPantry
- Kitchen:
- DishwasherMicrowave OvenDisposalKitchen IslandElectric Oven
- Laundry facilities:
- Utility/Laundry Room
- Property amenities:
- SidewalkBackyardOutdoor LivingFireplaceSmart Home System
- Rooms:
- Primary Bedroom On MainKitchenPowder RoomGame RoomOffice/StudyDining RoomFamily RoomPrimary Bedroom Downstairs
Utility information
- Heating:
- Water Heater, Central Heating, Gas Heating, Tankless water heater
- Utilities:
- City Water System, Individual Water Meter, Individual Gas Meter, High Speed Internet Access, Cable TV

Community details
Wildridge at Wildridge
by Highland Homes, Oak Point, TX
- 4 homes
- 23 plans
- 1,864 - 3,277 sqft
View Wildridge details
Community amenities
- Playground
- Lake Access
- Club House
- Community Pool
- Park Nearby
- Fishing Pond
- Greenbelt View
- Walking, Jogging, Hike Or Bike Trails
More homes in Wildridge
- Home at address 4330 Blackberry Ln, Oak Point, TX 75068

$502,160
Under construction- 4 bd
- 3 ba
- 2,131 sqft
4330 Blackberry Ln, Oak Point, TX 75068
- Home at address 9011 Wildberry Rd, Oak Point, TX 75068

$524,645
Under construction- 4 bd
- 4 ba
- 2,300 sqft
9011 Wildberry Rd, Oak Point, TX 75068
- Home at address 4018 Windy Point Rd, Oak Point, TX 75068

$587,562
Under construction- 4 bd
- 3 ba
- 2,510 sqft
4018 Windy Point Rd, Oak Point, TX 75068
- Home at address 4319 Blackberry Ln, Oak Point, TX 75068

$600,000
Under construction- 4 bd
- 3 ba
- 2,971 sqft
4319 Blackberry Ln, Oak Point, TX 75068
Floor plans in Wildridge
About the builder - Highland Homes
Neighborhood
Home address
Schools in Denton Independent School District
- Grades M-MPublicfred hill elementary1.8 mi501 ryan spiritas pkwyna
- Grades PK-03Privatecreekwood school3.2 mi800 w eldorado pkwy ste 106na
GreatSchools’ Summary Rating calculation is based on 4 of the school’s themed ratings, including test scores, student/academic progress, college readiness, and equity. This information should only be used as a reference. Jome is not affiliated with GreatSchools and does not endorse or guarantee this information. Please reach out to schools directly to verify all information and enrollment eligibility. Data provided by GreatSchools.org © 2025
Places of interest
Getting around
Air quality
Noise level
A Soundscore™ rating is a number between 50 (very loud) and 100 (very quiet) that tells you how loud a location is due to environmental noise.
Financials
Nearby communities in Oak Point
Homes in Oak Point by Highland Homes
Recently added communities in this area
Other Builders in Oak Point, TX
Nearby sold homes
New homes in nearby cities
More New Homes in Oak Point, TX
HIGHLAND HOMES REALTY, MLS 21013158
IDX information is provided exclusively for personal, non-commercial use, and may not be used for any purpose other than to identify prospective properties consumers may be interested in purchasing. You may not reproduce or redistribute this data, it is for viewing purposes only. This data is deemed reliable, but is not guaranteed accurate by the MLS or NTREIS.
Read moreLast checked Mar 31, 10:00 pm
- Jome
- New homes search
- Texas
- Dallas-Fort Worth Area
- Denton County
- Oak Point
- Wildridge
- 4334 Wildflower Ln, Oak Point, TX 75068







































































