














Book your tour. Save an average of $18,473. We'll handle the rest.
We collect exclusive builder offers, book your tours, and support you from start to housewarming.
- Confirmed tours
- Get matched & compare top deals
- Expert help, no pressure
- No added fees
Estimated value based on Jome data, T&C apply















- 4 bd
- 2 ba
- 2,058 sqft
3888 Sandusky Rd, Whitesboro, TX 76273
Why tour with Jome?
- No pressure toursTour at your own pace with no sales pressure
- Expert guidanceGet insights from our home buying experts
- Exclusive accessSee homes and deals not available elsewhere
Jome is featured in
- Single-Family
- Quick move-in
- $130.71/sqft
- 1.25-acre lot
Home description
Enjoy country living with the convenience of small-town charm! This beautiful new home sits on 1.25 acres, offering plenty of space to relax and enjoy peaceful surroundings. With easy access to Highway 377, commuting and travel are simple and convenient.
Located just minutes from Lake Texoma, you’ll have access to boating, fishing, and endless outdoor recreation. Nature lovers will appreciate being close to Hagerman National Wildlife Refuge, along with several nearby casinos and marinas for added entertainment options.
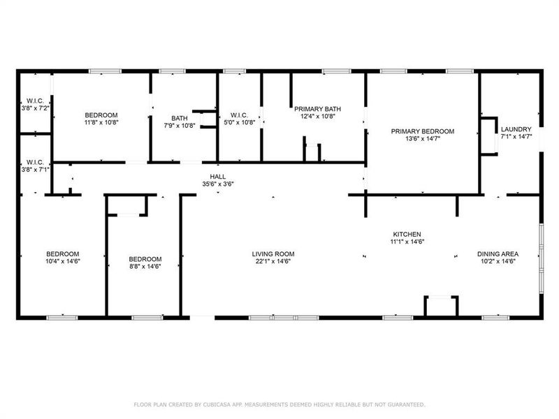
The home’s open-concept design provides plenty of space for gathering with family and friends. A split-bedroom floor plan offers added privacy, with the primary suite thoughtfully separated from the secondary bedrooms — creating a comfortable retreat at the end of the day.
The perfect blend of space, comfort, and location — ready to welcome you home!
Real Estate Shoppe TX, LLC, MLS 21196646
Information last verified by Jome: Yesterday at 1:55 AM (March 7, 2026)
Book your tour. Save an average of $18,473. We'll handle the rest.
We collect exclusive builder offers, book your tours, and support you from start to housewarming.
- Confirmed tours
- Get matched & compare top deals
- Expert help, no pressure
- No added fees
Estimated value based on Jome data, T&C apply
Home details
- Property status:
- Move-in ready
- Lot size (acres):
- 1.25
- Size:
- 2,058 sqft
- Stories:
- 1
- Beds:
- 4
- Baths:
- 2
Construction details
- Year Built:
- 2025
- Roof:
- Composition Roofing
Home features & finishes
- Construction Materials:
- Cement
- Cooling:
- Ceiling Fan(s)Central Air
- Flooring:
- Vinyl Flooring
- Foundation Details:
- Pillar/Post/Pier
- Garage/Parking:
- On-Site Garage/Parking
- Interior Features:
- PantryDouble Vanity
- Kitchen:
- DishwasherRefrigeratorDisposalKitchen IslandElectric Oven
- Laundry facilities:
- Stackable Washer/Dryer
- Lighting:
- Decorative/Designer Lighting
- Property amenities:
- Trees on property
- Rooms:
- Primary Bedroom On MainKitchenOpen Concept FloorplanPrimary Bedroom Downstairs

Get a consultation with our New Homes Expert
- See how your home builds wealth
- Plan your home-buying roadmap
- Discover hidden gems
Utility information
- Heating:
- Electric Heating, Central Heating
- Utilities:
- Electricity Available, Aerobic Septic System, High Speed Internet Access
Neighborhood
Home address
- City:
- Whitesboro
- County:
- Grayson
- Zip Code:
- 76273
Schools in Whitesboro Independent School District
- Grades M-MPublicgrayson co j j a e p13.9 mi9501 dyess stna
GreatSchools’ Summary Rating calculation is based on 4 of the school’s themed ratings, including test scores, student/academic progress, college readiness, and equity. This information should only be used as a reference. Jome is not affiliated with GreatSchools and does not endorse or guarantee this information. Please reach out to schools directly to verify all information and enrollment eligibility. Data provided by GreatSchools.org © 2025
Places of interest
Getting around
Natural hazards risk
Provided by FEMA

Considering this home?
Our expert will guide your tour, in-person or virtual
Need more information?
Text or call (888) 488-9243
Financials
Estimated monthly payment
Let us help you find your dream home
How many bedrooms are you looking for?
Similar homes nearby
Recently added communities in this area
Nearby communities in Whitesboro
New homes in nearby cities
More New Homes in Whitesboro, TX
Real Estate Shoppe TX, LLC, MLS 21196646
IDX information is provided exclusively for personal, non-commercial use, and may not be used for any purpose other than to identify prospective properties consumers may be interested in purchasing. You may not reproduce or redistribute this data, it is for viewing purposes only. This data is deemed reliable, but is not guaranteed accurate by the MLS or NTREIS.
Read moreLast checked Mar 7, 10:00 pm
- Jome
- New homes search
- Texas
- Dallas-Fort Worth Area
- Grayson County
- Whitesboro
- 3888 Sandusky Rd, Whitesboro, TX 76273

























