




































- 3 bd
- 2 ba
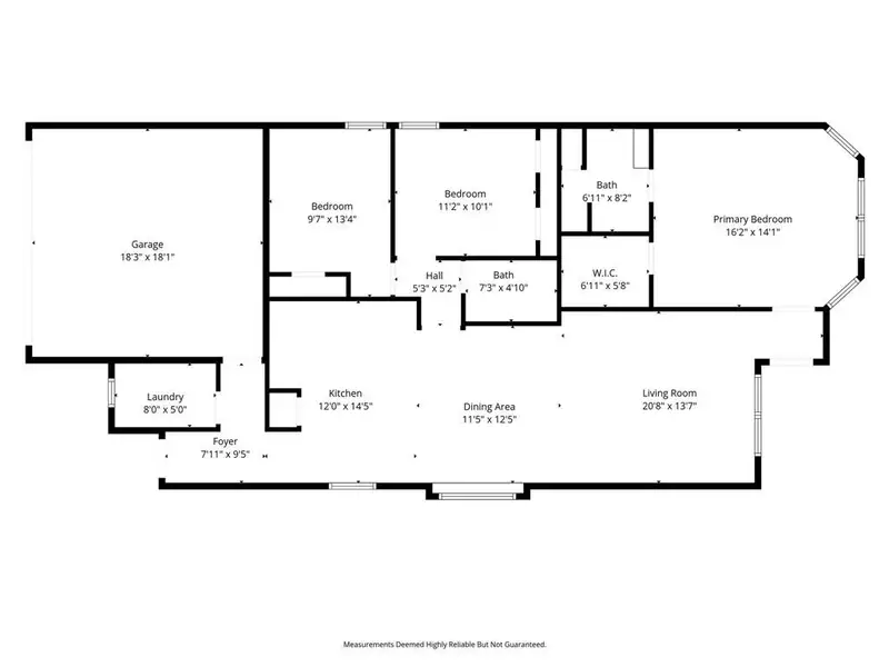
- 1,420 sqft
928 Propeller Pkwy, Fort Worth, TX 76131
- Single-Family
- $225.35/sqft
- $550/annual HOA
- South facing
New Homes for Sale Near 928 Propeller Pkwy, Fort Worth, TX 76131
About this Home
Built in 2025 and located in the highly sought-after Eagle Mountain–Saginaw ISD, this 3-bedroom, 2-bath home is move-in ready with upgrades already in place. The exterior stands out with added rock landscaping in the front flower beds and around both the front and back trees. Front lighting on both sides of the garage enhances curb appeal, while a motion-sensing flood light adds extra visibility in the backyard. Inside, you’ll find an open concept layout with a spacious living room, energy-efficient windows, a ceiling fan added in the guest bedroom, an upgraded kitchen faucet, and hand towel racks installed in both bathrooms. The layout offers a comfortable flow for everyday living, plus a covered patio and spacious yard perfect for relaxing or entertaining. Conveniently located near major highways, restaurants, and entertainment, this home combines modern features with everyday convenience.
TK Realty, MLS 21182043
May also be listed on the Legend Homes website
Information last verified by Jome: Yesterday at 1:59 AM (April 16, 2026)
Home details
- Property status:
- Sold
- Lot size (acres):
- 0.14
- Size:
- 1,420 sqft
- Stories:
- 1
- Beds:
- 3
- Baths:
- 2
- Garage spaces:
- 2
- Fence:
- Wood Fence, Wrought Iron Fence
- Facing direction:
- South
Construction details
- Builder Name:
- Legend Homes
- Completion Date:
- March, 2025
- Year Built:
- 2025
- Roof:
- Roof Gutter, Composition Roofing, Shingle Roofing
Home features & finishes
- Appliances:
- Exhaust Fan VentedIce MakerSprinkler System
- Construction Materials:
- CementVinyl SidingBrick
- Cooling:
- Ceiling Fan(s)Central Air
- Flooring:
- Laminate FlooringVinyl FlooringCarpet Flooring
- Foundation Details:
- Slab
- Garage/Parking:
- GarageFront Entry Garage/ParkingMulti-Door GarageAttached Garage
- Interior Features:
- Walk-In ClosetPantryDouble Vanity
- Kitchen:
- DishwasherMicrowave OvenRefrigeratorDisposalElectric CooktopGranite countertopKitchen IslandKitchen RangeElectric Oven
- Laundry facilities:
- DryerWasherStackable Washer/DryerUtility/Laundry Room
- Lighting:
- Exterior LightingSecurity LightsDecorative/Designer Lighting
- Property amenities:
- SidewalkBackyardLandscapingPatioYardPorch
- Rooms:
- Primary Bedroom On MainKitchenDining RoomFamily RoomOpen Concept FloorplanPrimary Bedroom Downstairs
- Security system:
- Fire Alarm SystemSmoke DetectorCarbon Monoxide Detector
Utility information
- Heating:
- Electric Heating, Heat Pump, Central Heating
- Utilities:
- Electricity Available, Underground Utilities, Phone Available, City Water System, High Speed Internet Access, Cable TV, Curbs

Community details
Retreat at Fossil Creek
by Legend Homes, Fort Worth, TX
- 17 homes
- 11 plans
- 1,412 - 2,726 sqft
View Retreat at Fossil Creek details
Community amenities
- Playground
- Community Pool
- Park Nearby
- Greenbelt View
- Walking, Jogging, Hike Or Bike Trails
More homes in Retreat at Fossil Creek
- Home at address 1016 Wind Drift Wy, Fort Worth, TX 76131

$319,980
Move-in ready- 3 bd
- 2 ba
- 1,412 sqft
1016 Wind Drift Wy, Fort Worth, TX 76131
- Home at address 10025 Freighter Trl, Fort Worth, TX 76131

$322,980
Move-in ready- 3 bd
- 2 ba
- 1,412 sqft
10025 Freighter Trl, Fort Worth, TX 76131
- Home at address 1024 Wind Drift Wy, Fort Worth, TX 76131

$329,980
Move-in ready- 3 bd
- 2 ba
- 1,556 sqft
1024 Wind Drift Wy, Fort Worth, TX 76131
- Home at address 1020 Wind Drift Wy, Fort Worth, TX 76131

$339,980
Move-in ready- 3 bd
- 2 ba
- 1,697 sqft
1020 Wind Drift Wy, Fort Worth, TX 76131
- Home at address 10017 Freighter Trl, Fort Worth, TX 76131

$339,980
Move-in ready- 3 bd
- 2 ba
- 1,516 sqft
10017 Freighter Trl, Fort Worth, TX 76131
- Home at address 10024 Freighter Trl, Fort Worth, TX 76131

$341,980
Move-in ready- 3 bd
- 2 ba
- 1,697 sqft
10024 Freighter Trl, Fort Worth, TX 76131
Floor plans in Retreat at Fossil Creek
About the builder - Legend Homes
Neighborhood
Home address
- City:
- Fort Worth
- County:
- Tarrant
- Zip Code:
- 76131
Schools in Eagle Mountain-Saginaw Independent School District
- Grades PK-05Publicelizabeth lopez hatley elementary1.5 mi850 mount vista lnna
GreatSchools’ Summary Rating calculation is based on 4 of the school’s themed ratings, including test scores, student/academic progress, college readiness, and equity. This information should only be used as a reference. Jome is not affiliated with GreatSchools and does not endorse or guarantee this information. Please reach out to schools directly to verify all information and enrollment eligibility. Data provided by GreatSchools.org © 2025
Places of interest
Getting around
Air quality
Noise level
A Soundscore™ rating is a number between 50 (very loud) and 100 (very quiet) that tells you how loud a location is due to environmental noise.
Financials
Nearby communities in Fort Worth
Homes in Fort Worth Neighborhoods
- Sendera Ranch
- Hamlet
- Garden Acres
- John T White
- Chapel Creek
- Marine Creek Ranch
- United Riverside
- Historic Southside
- West Morningside
- Far Greater Northside
- Riverbend
- Hillside Morningside
- Morningside
- Diamond Hill - Jarvis
- Scenic Bluff
- Arlington Heights
- The Trails Of Fossil Creek
- Stop Six Sunrise Edition
- Glencrest
- South Poly
- Woodhaven
- Mira Vista
- Wedgwood
- Santa Fe Enclave
- Stop Six
- North Side
- Remington Point
- Paschal
- Rock Island - Samuels
- Lake Country
- Fairhaven
- North Hi Mount
- Panther Heights
- Westcliff
Homes in Fort Worth by Legend Homes
Recently added communities in this area
Other Builders in Fort Worth, TX
Nearby sold homes
New homes in nearby cities
More New Homes in Fort Worth, TX
TK Realty, MLS 21182043
IDX information is provided exclusively for personal, non-commercial use, and may not be used for any purpose other than to identify prospective properties consumers may be interested in purchasing. You may not reproduce or redistribute this data, it is for viewing purposes only. This data is deemed reliable, but is not guaranteed accurate by the MLS or NTREIS.
Read moreLast checked Apr 16, 10:00 pm
- Jome
- New homes search
- Texas
- Dallas-Fort Worth Area
- Tarrant County
- Fort Worth
- Retreat at Fossil Creek
- 928 Propeller Pkwy, Fort Worth, TX 76131






































































