
































- 5 bd
- 3 ba
- 2,550 sqft
815 N Seven Points Dr, Kemp, TX 75143
- Single-Family
- $117.65/sqft
- North facing
- 1.06-acre lot
New Homes for Sale Near 815 N Seven Points Dr, Kemp, TX 75143
About this Home
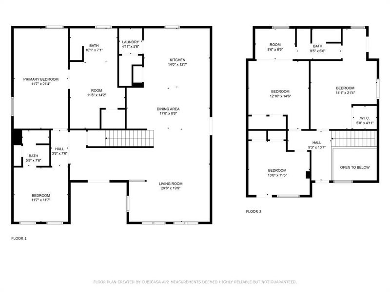
Home Near Cedar Creek Lake! This unique opportunity features a beautifully spacious two-story home offering a total of 5 bedrooms and 3 full bathrooms. Situated on a generous lot with over an acre. Just minutes from Cedar Creek Lake, and approximately 4 miles from public boating launch and park. Enjoy the convenience of nearby recreation, shopping, and dining. Home is thoughtfully designed and move-in ready with an open kitchen, dining, living room along with two ensuites down stairs with the primary bedroom having a large walk in closet. Upstairs you have a covered balcony, jack and jill bathrooms attaching two large bedrooms. The third bedroom upstairs could be a home office as well. Your new home has mature tree's great natural light inside and could be used for generational living. With a large lot you have room to make your dreams come true. Home is also available for rent $2,700 per month.
NextHome Property Advisors, MLS 20944872
Information last verified by Jome: Today at 12:38 AM (January 11, 2026)
Home details
- Property status:
- Sold
- Lot size (acres):
- 1.06
- Size:
- 2,550 sqft
- Stories:
- 2
- Beds:
- 5
- Baths:
- 3
- Facing direction:
- North
Construction details
- Roof:
- Metal Roofing, Flat Roofing
Home features & finishes
- Appliances:
- Exhaust Fan Vented
- Construction Materials:
- Metal Siding
- Cooling:
- Ceiling Fan(s)Central Air
- Flooring:
- Tile FlooringHardwood Flooring
- Garage/Parking:
- Car Carport
- Interior Features:
- Walk-In Closet
- Kitchen:
- DishwasherDisposalElectric CooktopGranite countertopKitchen Range
- Laundry facilities:
- DryerWasher
- Lighting:
- Decorative/Designer Lighting
- Property amenities:
- Balcony
- Rooms:
- KitchenOpen Concept Floorplan
- Security system:
- Smoke Detector
Utility information
- Heating:
- Electric Heating, Central Heating
- Utilities:
- City Water System, Cable TV
Neighborhood
Home address
Schools in Mabank Independent School District
GreatSchools’ Summary Rating calculation is based on 4 of the school’s themed ratings, including test scores, student/academic progress, college readiness, and equity. This information should only be used as a reference. Jome is not affiliated with GreatSchools and does not endorse or guarantee this information. Please reach out to schools directly to verify all information and enrollment eligibility. Data provided by GreatSchools.org © 2025
Places of interest
Getting around
Air quality
Natural hazards risk
Provided by FEMA
Financials
Nearby communities in Kemp
Recently added communities in this area
Other Builders in Kemp, TX
Nearby sold homes
New homes in nearby cities
More New Homes in Kemp, TX
NextHome Property Advisors, MLS 20944872
IDX information is provided exclusively for personal, non-commercial use, and may not be used for any purpose other than to identify prospective properties consumers may be interested in purchasing. You may not reproduce or redistribute this data, it is for viewing purposes only. This data is deemed reliable, but is not guaranteed accurate by the MLS or NTREIS.
Read moreLast checked Jan 10, 10:00 pm
- Jome
- New homes search
- Texas
- Dallas-Fort Worth Area
- Henderson County
- Kemp
- 815 N Seven Points Dr, Kemp, TX 75143




















































