














Book your tour. Save an average of $18,473. We'll handle the rest.
- Confirmed tours
- Get matched & compare top deals
- Expert help, no pressure
- No added fees
Estimated value based on Jome data, T&C apply










Why tour with Jome?
- No pressure toursTour at your own pace with no sales pressure
- Expert guidanceGet insights from our home buying experts
- Exclusive accessSee homes and deals not available elsewhere
Jome is featured in
- Townhouse
- Under construction
- $280.44/sqft
- $145/monthly HOA
Home description
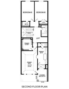
Discover sophisticated urban living in this stunning 4-story modern residence located in the heart of Addison, Texas. This one-of-a-kind home features 4 spacious bedrooms, 4.5 luxurious bathrooms, and an expansive game room — perfect for entertaining or relaxing in style. Enjoy the convenience of a 2-car garage and unwind on your private roof deck offering unencumbered views of the city skyline. The home boasts 12-foot ceilings, rich all-wood flooring, and a sleek linear electric fireplace that adds warmth and elegance to the open living area. Oversized Andersen wood-trimmed windows flood the space with natural sunlight, highlighting the home's exceptional craftsmanship and thoughtful design. The gourmet kitchen is a chef’s dream with soft-close cabinetry, pristine quartz countertops, high-end finishes throughout and Fischer & Paykel appliances. Retreat to the luxurious primary suite, featuring a spa-inspired bathroom with a large soaking tub, walk-in shower, and designer touches throughout — your private sanctuary for rest and relaxation. Ideally situated walking distance from the famous Addison Circle Park, Restaurant Row and other vibrant local spots. A short drive to the Dallas Galleria Mall, and Plano Legacy West. Quick access to the Dallas North Tollway (only 1 mile away) and less than 15 min to Love Field and DFW airports. Enjoy an active lifestyle with the Addison Athletic Club just half a mile from your door. A rare opportunity to own a designer home that combines luxury, location, and lifestyle in one of DFW’s most vibrant communities with a low monthly HOA of $145.Don’t miss your chance to experience Addison living at its finest!
RE/MAX Dallas Suburbs, MLS 20991646
May also be listed on the InTown Homes website
Information last verified by Jome: Today at 1:22 AM (January 22, 2026)
Home highlights
Popular Dallas trail connecting urban neighborhoods with tree-lined paths, fitness spots, and skyline views.
Book your tour. Save an average of $18,473. We'll handle the rest.
We collect exclusive builder offers, book your tours, and support you from start to housewarming.
- Confirmed tours
- Get matched & compare top deals
- Expert help, no pressure
- No added fees
Estimated value based on Jome data, T&C apply
Home details
- Property status:
- Under construction
- Lot size (acres):
- 0.02
- Size:
- 2,792 sqft
- Stories:
- 4
- Beds:
- 4
- Baths:
- 4.5
- Garage spaces:
- 2
Construction details
- Builder Name:
- InTown Homes
- Year Built:
- 2025
Home features & finishes
- Cooling:
- Ceiling Fan(s)Central Air
- Flooring:
- Wood Flooring
- Garage/Parking:
- Door OpenerGarageRear Entry Garage/ParkingAttached Garage
- Interior Features:
- Walk-In ClosetFoyerPantryStorage
- Kitchen:
- DishwasherDisposalGas Cooktop
- Laundry facilities:
- Laundry Facilities In HallDryerWasherStackable Washer/DryerUtility/Laundry Room
- Lighting:
- Decorative/Designer Lighting
- Property amenities:
- BalconyDeckAlleyPorch
- Rooms:
- KitchenPowder RoomGame RoomDining RoomFamily RoomOpen Concept FloorplanPrimary Bedroom Upstairs

Get a consultation with our New Homes Expert
- See how your home builds wealth
- Plan your home-buying roadmap
- Discover hidden gems
Utility information
- Heating:
- Zoned Heating, Central Heating, Gas Heating
- Utilities:
- City Water System

Community details
Addison Grove
by InTown Homes, Addison, TX
- 10 homes
- 2,154 - 3,315 sqft
View Addison Grove details
Community amenities
- Park Nearby
More homes in Addison Grove
- Home at address 14956 Oak St, Addison, TX 75001

Home
$743,000
- 4 bd
- 4.5 ba
- 2,644 sqft
14956 Oak St, Addison, TX 75001
- Home at address 6011 Laurel Ln, Addison, TX 75001

Home
$789,000
- 4 bd
- 4.5 ba
- 2,795 sqft
6011 Laurel Ln, Addison, TX 75001
- Home at address 5033 Magnolia Cir, Addison, TX 75001

Home
$825,000
- 4 bd
- 4.5 ba
- 2,944 sqft
5033 Magnolia Cir, Addison, TX 75001
- Home at address 14953 Holly St, Addison, TX 75001

Home
$858,000
- 4 bd
- 4.5 ba
- 3,116 sqft
14953 Holly St, Addison, TX 75001
About the builder - InTown Homes
Neighborhood
Home address
Schools in Dallas Independent School District
- Grades M-MPublicwalnut hill international leadership academy0.5 mi1011 midway rdna
GreatSchools’ Summary Rating calculation is based on 4 of the school’s themed ratings, including test scores, student/academic progress, college readiness, and equity. This information should only be used as a reference. Jome is not affiliated with GreatSchools and does not endorse or guarantee this information. Please reach out to schools directly to verify all information and enrollment eligibility. Data provided by GreatSchools.org © 2025
Places of interest
Getting around
Air quality
Noise level
A Soundscore™ rating is a number between 50 (very loud) and 100 (very quiet) that tells you how loud a location is due to environmental noise.

Considering this home?
Our expert will guide your tour, in-person or virtual
Need more information?
Text or call (888) 486-2818
Financials
Estimated monthly payment
Let us help you find your dream home
How many bedrooms are you looking for?
Similar homes nearby
Recently added communities in this area
Nearby communities in Addison
New homes in nearby cities
More New Homes in Addison, TX
RE/MAX Dallas Suburbs, MLS 20991646
IDX information is provided exclusively for personal, non-commercial use, and may not be used for any purpose other than to identify prospective properties consumers may be interested in purchasing. You may not reproduce or redistribute this data, it is for viewing purposes only. This data is deemed reliable, but is not guaranteed accurate by the MLS or NTREIS.
Read moreLast checked Jan 22, 10:00 am
- Jome
- New homes search
- Texas
- Dallas-Fort Worth Area
- Dallas County
- Addison
- Addison Grove
- 6007 Laurel Ln, Addison, TX 75001


























