














Book your tour. Save an average of $18,473. We'll handle the rest.
We collect exclusive builder offers, book your tours, and support you from start to housewarming.
- Confirmed tours
- Get matched & compare top deals
- Expert help, no pressure
- No added fees
Estimated value based on Jome data, T&C apply

















Why tour with Jome?
- No pressure toursTour at your own pace with no sales pressure
- Expert guidanceGet insights from our home buying experts
- Exclusive accessSee homes and deals not available elsewhere
Jome is featured in
- Single-Family
- Quick move-in
- $355.92/sqft
- $165/annual HOA
Home description
Stunning NEW All White Modern Farmhouse near downtown Carrollton with a March 2026 estimated completion! Featuring sleek metal roofs, 1st floor soaring ceilings, 8ft doors and timeless curb appeal. This brand-new 1,756 sq. ft. home features 3 bedrooms, 2.5 bathrooms and offers a perfect blend of modern elegance and farmhouse charm with an open-concept layout and designer finishes throughout. Large windows fill the interior with natural light, while the chef’s kitchen boasts of custom soft-close cabinetry, Luxe Fisher & Paykel appliances, quartz and granite countertops, and a spacious island perfect for entertaining. Luxurious all wood floors and high-end Hansgrohe plumbing fixtures make this a one-of-a-kind dream home. Unwind in your serene primary suite with a private balcony, spa-inspired bath, stand alone soaking tub, large shower, double vanity and large walk-in closet. Situated in a vibrant new development near shopping, dining, and entertainment and just minutes away from Downtown Carrollton, Addison’s Belt Line Restaurant District, Legacy West, Dallas Galleria, Koreatown, DART RAIL, I 35 E and only 30 minutes to DFW Airport. Highly sought after Carrollton-Farmers Branch ISD! This home combines comfort, convenience, and lifestyle in one of Carrollton’s most exciting new communities.
Lovett Realty, Inc, MLS 21042112
May also be listed on the InTown Homes website
Information last verified by Jome: Today at 1:34 AM (March 3, 2026)
Home highlights
Popular Dallas trail connecting urban neighborhoods with tree-lined paths, fitness spots, and skyline views.
Book your tour. Save an average of $18,473. We'll handle the rest.
We collect exclusive builder offers, book your tours, and support you from start to housewarming.
- Confirmed tours
- Get matched & compare top deals
- Expert help, no pressure
- No added fees
Estimated value based on Jome data, T&C apply
Home details
- Property status:
- Move-in ready
- Lot size (acres):
- 0.04
- Size:
- 1,756 sqft
- Stories:
- 2
- Beds:
- 3
- Baths:
- 2
- Half baths:
- 1
- Garage spaces:
- 1
Construction details
- Builder Name:
- InTown Homes
- Year Built:
- 2025
- Roof:
- Metal Roofing
Home features & finishes
- Cooling:
- Ceiling Fan(s)Central Air
- Flooring:
- Wood FlooringTile Flooring
- Garage/Parking:
- Door OpenerGarageMulti-Door GarageRear Entry Garage/ParkingAttached Garage
- Interior Features:
- Walk-In ClosetPantrySound System Wiring
- Kitchen:
- DishwasherMicrowave OvenDisposalGas CooktopGranite countertopKitchen Island
- Laundry facilities:
- Utility/Laundry Room
- Property amenities:
- SidewalkBalconyDeckSmart Home SystemPorch
- Rooms:
- KitchenPowder RoomDining RoomLiving RoomOpen Concept FloorplanPrimary Bedroom Upstairs
- Security system:
- Fire Alarm SystemSecurity SystemSmoke Detector

Get a consultation with our New Homes Expert
- See how your home builds wealth
- Plan your home-buying roadmap
- Discover hidden gems
Utility information
- Heating:
- Water Heater, Central Heating, Tankless water heater
- Utilities:
- Electricity Available, Natural Gas Available, Underground Utilities, Phone Available, City Water System, Sewer Available, Individual Gas Meter, High Speed Internet Access, Curbs

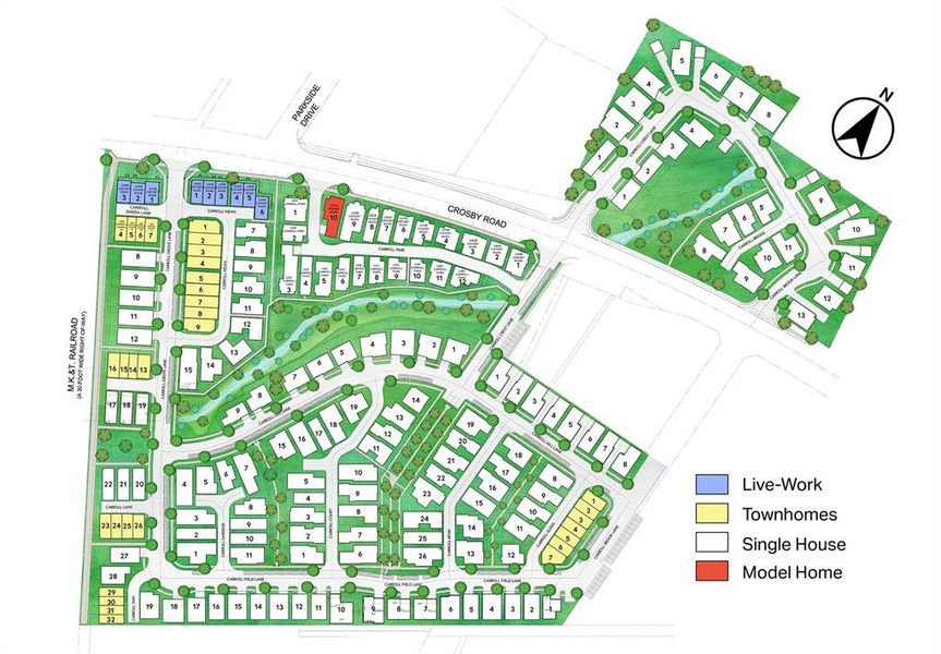
Community details
Carroll Crest
by InTown Homes, Carrollton, TX
- 6 homes
- 1,744 - 3,050 sqft
View Carroll Crest details
Community amenities
- Sidewalks Available
More homes in Carroll Crest
- Home at address 1312 E Crosby Rd, Carrollton, TX 75006

Home
$596,260
- 3 bd
- 3.5 ba
- 2,377 sqft
1312 E Crosby Rd, Carrollton, TX 75006
- Home at address 1304 E Crosby Rd, Carrollton, TX 75006

Home
$606,583
- 3 bd
- 3.5 ba
- 2,438 sqft
1304 E Crosby Rd, Carrollton, TX 75006
- Home at address 1366 E Crosby Rd, Carrollton, TX 75006

Home
$625,000
- 3 bd
- 2.5 ba
- 1,967 sqft
1366 E Crosby Rd, Carrollton, TX 75006
- Home at address 1308 E Crosby Rd, Carrollton, TX 75006

Home
$639,000
- 3 bd
- 3.5 ba
- 1,744 sqft
1308 E Crosby Rd, Carrollton, TX 75006
- Home at address 1354 E Crosby Rd, Carrollton, TX 75006

Home
$885,000
- 5 bd
- 4 ba
- 3,050 sqft
1354 E Crosby Rd, Carrollton, TX 75006
About the builder - InTown Homes
Neighborhood
Home address
- City:
- Carrollton
- County:
- Dallas
- Zip Code:
- 75006
Schools in Carrollton-Farmers Branch Independent School District
- Grades M-MPublicla villita middle0.7 mi1445 n perry rdna
GreatSchools’ Summary Rating calculation is based on 4 of the school’s themed ratings, including test scores, student/academic progress, college readiness, and equity. This information should only be used as a reference. Jome is not affiliated with GreatSchools and does not endorse or guarantee this information. Please reach out to schools directly to verify all information and enrollment eligibility. Data provided by GreatSchools.org © 2025
Places of interest
Getting around
3 nearby routes: 2 bus, 1 rail, 0 otherAir quality
Noise level
A Soundscore™ rating is a number between 50 (very loud) and 100 (very quiet) that tells you how loud a location is due to environmental noise.

Considering this home?
Our expert will guide your tour, in-person or virtual
Need more information?
Text or call (888) 488-9243
Financials
Estimated monthly payment
Let us help you find your dream home
How many bedrooms are you looking for?
Similar homes nearby
Recently added communities in this area
Nearby communities in Carrollton
New homes in nearby cities
More New Homes in Carrollton, TX
Lovett Realty, Inc, MLS 21042112
IDX information is provided exclusively for personal, non-commercial use, and may not be used for any purpose other than to identify prospective properties consumers may be interested in purchasing. You may not reproduce or redistribute this data, it is for viewing purposes only. This data is deemed reliable, but is not guaranteed accurate by the MLS or NTREIS.
Read moreLast checked Mar 3, 4:00 pm
- Jome
- New homes search
- Texas
- Dallas-Fort Worth Area
- Dallas County
- Carrollton
- Carroll Crest
- 1362 E Crosby Rd, Carrollton, TX 75006
























