



Book your tour. Save an average of $18,473. We'll handle the rest.
We collect exclusive builder offers, book your tours, and support you from start to housewarming.
- Confirmed tours
- Get matched & compare top deals
- Expert help, no pressure
- No added fees
Estimated value based on Jome data, T&C apply
- 4 bd
- 3.5 ba
- 2,434 sqft
602 Backstays Loop, Kyle, TX 78640
Why tour with Jome?
- No pressure toursTour at your own pace with no sales pressure
- Expert guidanceGet insights from our home buying experts
- Exclusive accessSee homes and deals not available elsewhere
Jome is featured in
- Single-Family
- $160.23/sqft
- $65/monthly HOA
- 0.12-acre lot
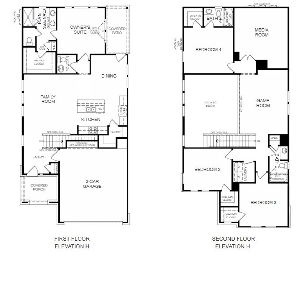
Home description
Back by popular demand, this First-floor master suite offers a large walk-in closet, dual vanity, and secluded entry, all perfect for multi-generational families or roommates. Of course, the kitchen’s walk-in pantry, dining room’s island seating, downstairs half bath and the upstairs game room & media room are only a few of Concho’s many remarkable features for remarkable living.
May also be listed on the Milestone Community Builders website
Information last verified by Jome: Thursday at 3:51 PM (December 19, 2024)
Home highlights
Expansive Austin greenbelt with hiking, swimming holes, and limestone cliffs tucked amid Hill Country suburbs.
Book your tour. Save an average of $18,473. We'll handle the rest.
We collect exclusive builder offers, book your tours, and support you from start to housewarming.
- Confirmed tours
- Get matched & compare top deals
- Expert help, no pressure
- No added fees
Estimated value based on Jome data, T&C apply
Home details
- Property status:
- Not available
- Lot size (acres):
- 0.12
- Size:
- 2,434 sqft
- Stories:
- 2
- Beds:
- 4
- Baths:
- 3.5
- Garage spaces:
- 2
Construction details
- Builder Name:
- Milestone Community Builders
- Completion Date:
- October, 2024
Home features & finishes
- Appliances:
- Water SoftenerSprinkler System
- Garage/Parking:
- GarageAttached Garage
- Interior Features:
- Ceiling-HighWalk-In Closet
- Laundry facilities:
- Utility/Laundry Room
- Property amenities:
- PatioFireplaceSmart Home SystemPorch
- Rooms:
- Flex RoomKitchenPowder RoomGame RoomMedia RoomOffice/StudyDining RoomFamily RoomOpen Concept FloorplanPrimary Bedroom Downstairs

Get a consultation with our New Homes Expert
- See how your home builds wealth
- Plan your home-buying roadmap
- Discover hidden gems

Community details
Crosswinds at Crosswinds
by Milestone Community Builders, Kyle, TX
- 10 homes
- 9 plans
- 1,546 - 2,809 sqft
View Crosswinds details
More homes in Crosswinds
- Home at address 156 White Horses Dr, Kyle, TX 78640

Carson
$349,999
- 4 bd
- 3.5 ba
- 1,700 sqft
156 White Horses Dr, Kyle, TX 78640
- Home at address 323 Elephant Island Lp, Kyle, TX 78640

Home
$379,999
- 4 bd
- 3.5 ba
- 2,512 sqft
323 Elephant Island Lp, Kyle, TX 78640
- Home at address 397 Elephant Island Lp, Kyle, TX 78640

Lamar
$379,999
- 4 bd
- 2.5 ba
- 2,274 sqft
397 Elephant Island Lp, Kyle, TX 78640
- Home at address 323 Elephant Island Lp, Buda, TX 78610

Conchos
$379,999
- 4 bd
- 3.5 ba
- 2,512 sqft
323 Elephant Island Lp, Buda, TX 78610
- Home at address 391 Backstays Lp, Kyle, TX 78640

Maverick - 3 Car
$384,999
- 4 bd
- 3 ba
- 2,121 sqft
391 Backstays Lp, Kyle, TX 78640
- Home at address 141 White Horses Dr, Kyle, TX 78640

Lamar
$397,999
- 4 bd
- 2.5 ba
- 2,274 sqft
141 White Horses Dr, Kyle, TX 78640
Floor plans in Crosswinds
About the builder - Milestone Community Builders
Neighborhood
Home address
Schools in Hays Consolidated Independent School District
- Grades PK-KGPrivatecei preschool spanish immersion school0.9 mi2381 bebee rdna
GreatSchools’ Summary Rating calculation is based on 4 of the school’s themed ratings, including test scores, student/academic progress, college readiness, and equity. This information should only be used as a reference. Jome is not affiliated with GreatSchools and does not endorse or guarantee this information. Please reach out to schools directly to verify all information and enrollment eligibility. Data provided by GreatSchools.org © 2025
Places of interest
Getting around
Air quality
Noise level
A Soundscore™ rating is a number between 50 (very loud) and 100 (very quiet) that tells you how loud a location is due to environmental noise.

Considering this home?
Our expert will guide your tour, in-person or virtual
Need more information?
Text or call (888) 545-5198
Financials
Let us help you find your dream home
How many bedrooms are you looking for?
Similar homes nearby
Recently added communities in this area
Nearby communities in Kyle
New homes in nearby cities
More New Homes in Kyle, TX
- Jome
- New homes search
- Texas
- Greater Austin Area
- Hays County
- Kyle
- Crosswinds
- 602 Backstays Loop, Kyle, TX 78640

































