














Book your tour. Save an average of $18,473. We'll handle the rest.
We collect exclusive builder offers, book your tours, and support you from start to housewarming.
- Confirmed tours
- Get matched & compare top deals
- Expert help, no pressure
- No added fees
Estimated value based on Jome data, T&C apply







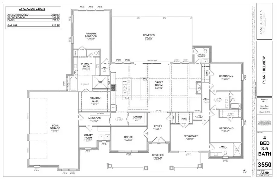
- 4 bd
- 3.5 ba
- 3,550 sqft
800 Vest Ln, Pilot Point, TX 76258
Why tour with Jome?
- No pressure toursTour at your own pace with no sales pressure
- Expert guidanceGet insights from our home buying experts
- Exclusive accessSee homes and deals not available elsewhere
Jome is featured in
- Single-Family
- Under construction
- $267.61/sqft
- 1.91-acre lot
Home description
Come build the custom home of your dreams with local builder, Scott Post Homes! This listing features a 3590 SF one
story custom new build home in the highly sought after community The Hills at Pilot Point. Lot 24 boasts 1.91 acres
and is cleared for home location and ready to build! Buyer does not have to build this home in the listing. Just showing
an example of quality and pricing. Estimated build time 6 months. No HOA, concrete road and pond view directly
behind the lot on open ranch property. This beautiful modern farmhouse plan offers 11’ - 13' high ceilings & a vaulted
living room. Three bedrooms with an optional fourth bedroom in lieu of the Media Room. With large covered double
porch access, this open living room-dining concept boasts the perfect space for family and hosting. Horses allowed.
Barns and or metal buildings allowed. Built in this community, all elevations and metal buildings require architectural
approval - which helps you to maintain value for resale. We have special low interest rates starting at 5.50 percent (for
adjustable-rate mortgage loans) on our home builds - Call Today!
Keith W Smith, MLS 21205135
Information last verified by Jome: Today at 2:09 AM (March 14, 2026)
Book your tour. Save an average of $18,473. We'll handle the rest.
We collect exclusive builder offers, book your tours, and support you from start to housewarming.
- Confirmed tours
- Get matched & compare top deals
- Expert help, no pressure
- No added fees
Estimated value based on Jome data, T&C apply
Home details
- Property status:
- Under construction
- Lot size (acres):
- 1.91
- Size:
- 3,550 sqft
- Stories:
- 1
- Beds:
- 4
- Baths:
- 3
- Half baths:
- 1
- Garage spaces:
- 3
Construction details
- Year Built:
- 2026
- Roof:
- Asphalt Roofing
Home features & finishes
- Construction Materials:
- BrickRockStone
- Cooling:
- Central Air
- Flooring:
- Ceramic FlooringWood FlooringVinyl FlooringCarpet FlooringTile Flooring
- Foundation Details:
- Slab
- Garage/Parking:
- GarageSide Entry Garage/ParkingMulti-Door GarageAttached Garage
- Home amenities:
- Home Accessibility Features
- Interior Features:
- Walk-In ClosetPantry
- Kitchen:
- DishwasherMicrowave OvenOvenDisposalElectric CooktopGas CooktopGranite countertopKitchen IslandDouble Oven
- Lighting:
- Decorative/Designer LightingDecorative Lighting
- Property amenities:
- BackyardFireplace
- Rooms:
- Primary Bedroom On MainKitchenPrimary Bedroom Downstairs

Get a consultation with our New Homes Expert
- See how your home builds wealth
- Plan your home-buying roadmap
- Discover hidden gems
Utility information
- Heating:
- Electric Heating, Central Heating, Central Heat
- Utilities:
- Electricity Available, Aerobic Septic System
Neighborhood
Home address
- City:
- Pilot Point
- County:
- Denton
- Zip Code:
- 76258
Schools in Pilot Point Independent School District
GreatSchools’ Summary Rating calculation is based on 4 of the school’s themed ratings, including test scores, student/academic progress, college readiness, and equity. This information should only be used as a reference. Jome is not affiliated with GreatSchools and does not endorse or guarantee this information. Please reach out to schools directly to verify all information and enrollment eligibility. Data provided by GreatSchools.org © 2025
Places of interest
Getting around
Air quality
Natural hazards risk
Provided by FEMA

Considering this home?
Our expert will guide your tour, in-person or virtual
Need more information?
Text or call (888) 545-5198
Financials
Estimated monthly payment
Let us help you find your dream home
How many bedrooms are you looking for?
Similar homes nearby
Recently added communities in this area
Nearby communities in Pilot Point
New homes in nearby cities
More New Homes in Pilot Point, TX
Keith W Smith, MLS 21205135
IDX information is provided exclusively for personal, non-commercial use, and may not be used for any purpose other than to identify prospective properties consumers may be interested in purchasing. You may not reproduce or redistribute this data, it is for viewing purposes only. This data is deemed reliable, but is not guaranteed accurate by the MLS or NTREIS.
Read moreLast checked Mar 13, 10:00 pm
- Jome
- New homes search
- Texas
- Dallas-Fort Worth Area
- Denton County
- Pilot Point
- 800 Vest Ln, Pilot Point, TX 76258























