


Book your tour. Save an average of $18,473. We'll handle the rest.
We collect exclusive builder offers, book your tours, and support you from start to housewarming.
- Confirmed tours
- Get matched & compare top deals
- Expert help, no pressure
- No added fees
Estimated value based on Jome data, T&C apply

- 4 bd
- 3.5 ba
- 3,354 sqft
6221 Shasta Creek Dr, Celina, TX 75009
Why tour with Jome?
- No pressure toursTour at your own pace with no sales pressure
- Expert guidanceGet insights from our home buying experts
- Exclusive accessSee homes and deals not available elsewhere
Jome is featured in
- Single-Family
- Quick move-in
- $169.93/sqft
- $212/quarterly HOA
Home description
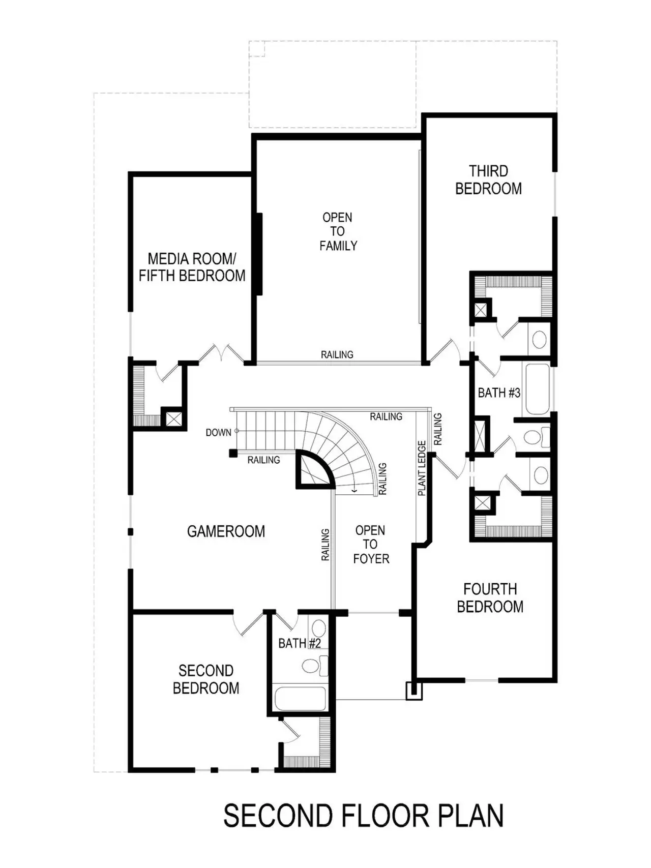
Discover the Harvard EW 2F w/Media in Edgewood Creek, Celina, TX—a spacious 4-bedroom, 3.5-bath home offering 3,354 sq. ft. of flexible living. Enjoy an open floorplan with a gourmet kitchen featuring 42" custom cabinets, an oversized granite island, and a decorative backsplash. The family room is highlighted by a 60" linear fireplace, while the primary bath includes a free-standing tub. Versatile spaces include a private study, gameroom, media room, and a covered patio for entertaining. Located near FM 1385, Dallas North Tollway, and top-rated Prosper ISD schools, this home blends comfort, convenience, and style. Schedule your private tour today.
MAKETHEMOVE
Sales event
30 YR Fixed from 4.99%
Ask about our 4.99% 30 Year Fixed Rate Promotion on Quick Move-In Homes that can close before the end of April!
Or
Up to $20K towards closing cost assistance, interest rate buydown, or pre-paids when you finance with our preferred lender.
HomesUSA.com
May also be listed on the First Texas Homes website
Information last verified by Jome: Today at 3:00 AM (April 21, 2026)
Home highlights
Book your tour. Save an average of $18,473. We'll handle the rest.
We collect exclusive builder offers, book your tours, and support you from start to housewarming.
- Confirmed tours
- Get matched & compare top deals
- Expert help, no pressure
- No added fees
Estimated value based on Jome data, T&C apply
Home details
- Property status:
- Move-in ready
- Lot size (acres):
- 0.15
- Size:
- 3,354 sqft
- Stories:
- 2
- Beds:
- 4
- Baths:
- 3.5
- Garage spaces:
- 2
- Fence:
- Wood Fence
- Facing direction:
- Southwest

Floor plan details
Harvard EW 2F (w/Media)
- 4 bd
- 3 ba
- 3,185 sqft
View Harvard EW 2F (w/Media) details
Construction details
- Builder Name:
- First Texas Homes
- Completion Date:
- February, 2024
- Year Built:
- 2024
- Roof:
- Composition Roofing
Home features & finishes
- Appliances:
- Exhaust Fan Vented
- Construction Materials:
- CementBrickRockStone
- Cooling:
- Ceiling Fan(s)Central Air
- Flooring:
- Ceramic FlooringVinyl FlooringCarpet FlooringTile Flooring
- Foundation Details:
- Slab
- Garage/Parking:
- Door OpenerGarageFront Entry Garage/ParkingAttached Garage
- Home amenities:
- Green Construction
- Interior Features:
- Ceiling-HighCeiling-VaultedWalk-In ClosetPantry
- Kitchen:
- DishwasherMicrowave OvenDisposalGas CooktopGranite countertopKitchen IslandGourmet KitchenElectric Oven
- Laundry facilities:
- DryerWasherStackable Washer/DryerUtility/Laundry Room
- Lighting:
- Decorative/Designer LightingDecorative Lighting
- Property amenities:
- BackyardBathtub in primaryElectric FireplacePatioFireplaceSmart Home SystemPorch
- Rooms:
- Flex RoomGame RoomMedia RoomOffice/StudyDining RoomFamily RoomLiving RoomOpen Concept FloorplanPrimary Bedroom Downstairs
- Security system:
- Smoke DetectorBurglar Alarm SystemCarbon Monoxide Detector

Get a consultation with our New Homes Expert
- See how your home builds wealth
- Plan your home-buying roadmap
- Discover hidden gems
Utility information
- Heating:
- Water Heater, Central Heating, Gas Heating, Tankless water heater, Central Heat
- Utilities:
- HVAC, City Water System

Community details
Edgewood Creek
by First Texas Homes, Celina, TX
- 6 homes
- 11 plans
- 1,817 - 3,744 sqft
View Edgewood Creek details
Community amenities
- Energy Efficient
- Lake Access
- Community Pool
- Sidewalks Available
- Greenbelt View
More homes in Edgewood Creek
- Home at address 6409 Tahoe Winds Dr, Celina, TX 75009

Mockingbird F
$498,950
- 4 bd
- 3.5 ba
- 2,171 sqft
6409 Tahoe Winds Dr, Celina, TX 75009
- Home at address 6104 Mulberry Ln, Celina, TX 75009

Malibu F-EW
$509,950
- 4 bd
- 3 ba
- 2,460 sqft
6104 Mulberry Ln, Celina, TX 75009
- Home at address 6205 Shasta Creek Rd, Celina, TX 75009

Cooper F
$574,950
- 4 bd
- 3.5 ba
- 3,392 sqft
6205 Shasta Creek Rd, Celina, TX 75009
- Home at address 6201 Shasta Creek Rd, Celina, TX 75009

Sheffield F-EW
$594,950
- 5 bd
- 4.5 ba
- 3,729 sqft
6201 Shasta Creek Rd, Celina, TX 75009
- Home at address 6300 Muller Creek Dr, Celina, TX 75009

Princeton 2F-EW
$619,950
- 6 bd
- 4 ba
- 3,506 sqft
6300 Muller Creek Dr, Celina, TX 75009
Floor plans in Edgewood Creek
About the builder - First Texas Homes
Neighborhood
Home address
Schools in Prosper Independent School District
- Grades PK-05Publicdan christie elementary1.2 mi6505 crutchfield rdna
- Grades PK-05Publicnew elementary3.9 mi1001 star meadow drna
GreatSchools’ Summary Rating calculation is based on 4 of the school’s themed ratings, including test scores, student/academic progress, college readiness, and equity. This information should only be used as a reference. Jome is not affiliated with GreatSchools and does not endorse or guarantee this information. Please reach out to schools directly to verify all information and enrollment eligibility. Data provided by GreatSchools.org © 2025
Places of interest
Getting around
Air quality

Considering this home?
Our expert will guide your tour, in-person or virtual
Need more information?
Text or call (888) 545-5198
Financials
Estimated monthly payment
Let us help you find your dream home
How many bedrooms are you looking for?
Similar homes nearby
Recently added communities in this area
Nearby communities in Celina
New homes in nearby cities
More New Homes in Celina, TX
- Jome
- New homes search
- Texas
- Dallas-Fort Worth Area
- Denton County
- Celina
- Edgewood Creek
- 6221 Shasta Creek Dr, Celina, TX 75009




























