



Book your tour. Save an average of $18,473. We'll handle the rest.
We collect exclusive builder offers, book your tours, and support you from start to housewarming.
- Confirmed tours
- Get matched & compare top deals
- Expert help, no pressure
- No added fees
Estimated value based on Jome data, T&C apply
- 3 bd
- 2.5 ba
- 2,196 sqft
333 Caxton Aly, Unit 487, Nolensville, TN 37135
Why tour with Jome?
- No pressure toursTour at your own pace with no sales pressure
- Expert guidanceGet insights from our home buying experts
- Exclusive accessSee homes and deals not available elsewhere
Jome is featured in
- Single-Family
- Under construction
- $241.3/sqft
- 13 days on Jome
Home description
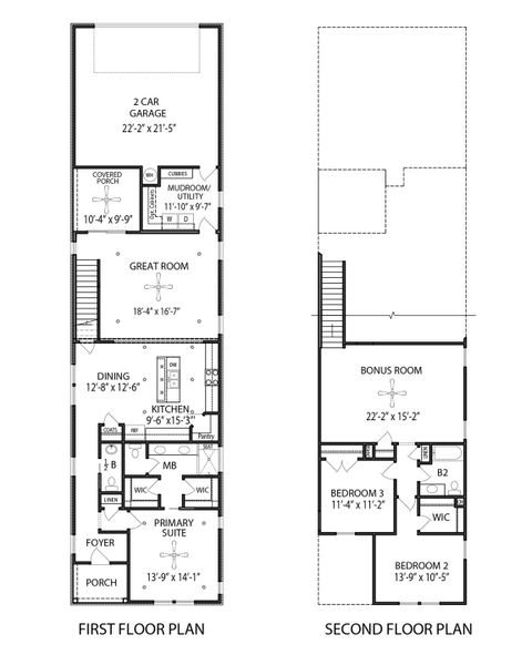
The Aubrey II boasts impressive curb appeal and a well-designed floor plan. On the first level, you'll find the primary suite, as well as an open living area that includes the great room, dining area, and a designer kitchen equipped with an island and a walk-in pantry. Adjacent to the great room is a covered rear porch, and the spacious mudroom features cubbies, with optional cubbies available as an upgrade.. The second level comprises two bedrooms, a full bathroom, and a large bonus room.
May also be listed on the Regent Homes website
Information last verified by Jome: Today at 12:01 PM (February 17, 2026)
Book your tour. Save an average of $18,473. We'll handle the rest.
We collect exclusive builder offers, book your tours, and support you from start to housewarming.
- Confirmed tours
- Get matched & compare top deals
- Expert help, no pressure
- No added fees
Estimated value based on Jome data, T&C apply
Home details
- Property status:
- Under construction
- Size:
- 2,196 sqft
- Stories:
- 2
- Beds:
- 3
- Baths:
- 2
- Half baths:
- 1
- Garage spaces:
- 2
Construction details
- Builder Name:
- Regent Homes
Home features & finishes
- Garage/Parking:
- Garage

Get a consultation with our New Homes Expert
- See how your home builds wealth
- Plan your home-buying roadmap
- Discover hidden gems

Community details
Carothers Farms
by Regent Homes, Nolensville, TN
- 13 homes
- 1,156 - 2,196 sqft
View Carothers Farms details
More homes in Carothers Farms
- Home at address 324 Savoy Lp, Unit 428, Nolensville, TN 37135

Highland II
$389,900
- 3 bd
- 2.5 ba
- 1,847 sqft
324 Savoy Lp, Unit 428, Nolensville, TN 37135
- Home at address 326 Savoy Lp, Unit 427, Nolensville, TN 37135

Westbrook CF
$419,900
- 3 bd
- 2.5 ba
- 1,989 sqft
326 Savoy Lp, Unit 427, Nolensville, TN 37135
- Home at address 419 Penfold Aly, Unit 482A, Nolensville, TN 37135

Westbrook
$434,900
- 3 bd
- 2.5 ba
- 1,786 sqft
419 Penfold Aly, Unit 482A, Nolensville, TN 37135
- Home at address 7313 Carothers Rd, Unit 503A, Nolensville, TN 37135

Asher
$439,900
- 3 bd
- 2 ba
- 1,615 sqft
7313 Carothers Rd, Unit 503A, Nolensville, TN 37135
- Home at address 7355 Carothers Rd, Unit 518, Nolensville, TN 37135

Grayson C-BSMT
$509,900
- 3 bd
- 2.5 ba
- 2,012 sqft
7355 Carothers Rd, Unit 518, Nolensville, TN 37135
- Home at address 334 Caxton Aly, Unit 491, Nolensville, TN 37135

Grayson
$514,125
- 3 bd
- 2.5 ba
- 1,936 sqft
334 Caxton Aly, Unit 491, Nolensville, TN 37135
About the builder - Regent Homes
Neighborhood
Home address
- City:
- Nolensville
- County:
- Davidson
- Zip Code:
- 37135
Schools in Metropolitan Nashville Public School District
GreatSchools’ Summary Rating calculation is based on 4 of the school’s themed ratings, including test scores, student/academic progress, college readiness, and equity. This information should only be used as a reference. Jome is not affiliated with GreatSchools and does not endorse or guarantee this information. Please reach out to schools directly to verify all information and enrollment eligibility. Data provided by GreatSchools.org © 2025
Places of interest
Getting around
Air quality

Considering this home?
Our expert will guide your tour, in-person or virtual
Need more information?
Text or call (888) 488-9243
Financials
Estimated monthly payment
Let us help you find your dream home
How many bedrooms are you looking for?
Similar homes nearby
Recently added communities in this area
Nearby communities in Nolensville
New homes in nearby cities
More New Homes in Nolensville, TN
- Jome
- New homes search
- Tennessee
- Nashville-Memphis Area
- Davidson County
- Nolensville
- Carothers Farms
- 333 Caxton Aly, Unit 487, Nolensville, TN 37135

























