



Book your tour. Save an average of $18,473. We'll handle the rest.
- Confirmed tours
- Get matched & compare top deals
- Expert help, no pressure
- No added fees
Estimated value based on Jome data, T&C apply
- 3 bd
- 2 ba
- 1,478 sqft
614 Brookside Dr, Unit 88, Mount Pleasant, TN 38474
Why tour with Jome?
- No pressure toursTour at your own pace with no sales pressure
- Expert guidanceGet insights from our home buying experts
- Exclusive accessSee homes and deals not available elsewhere
Jome is featured in
- Single-Family
- Quick move-in
- $270.57/sqft
- 94 days on Jome
Home description
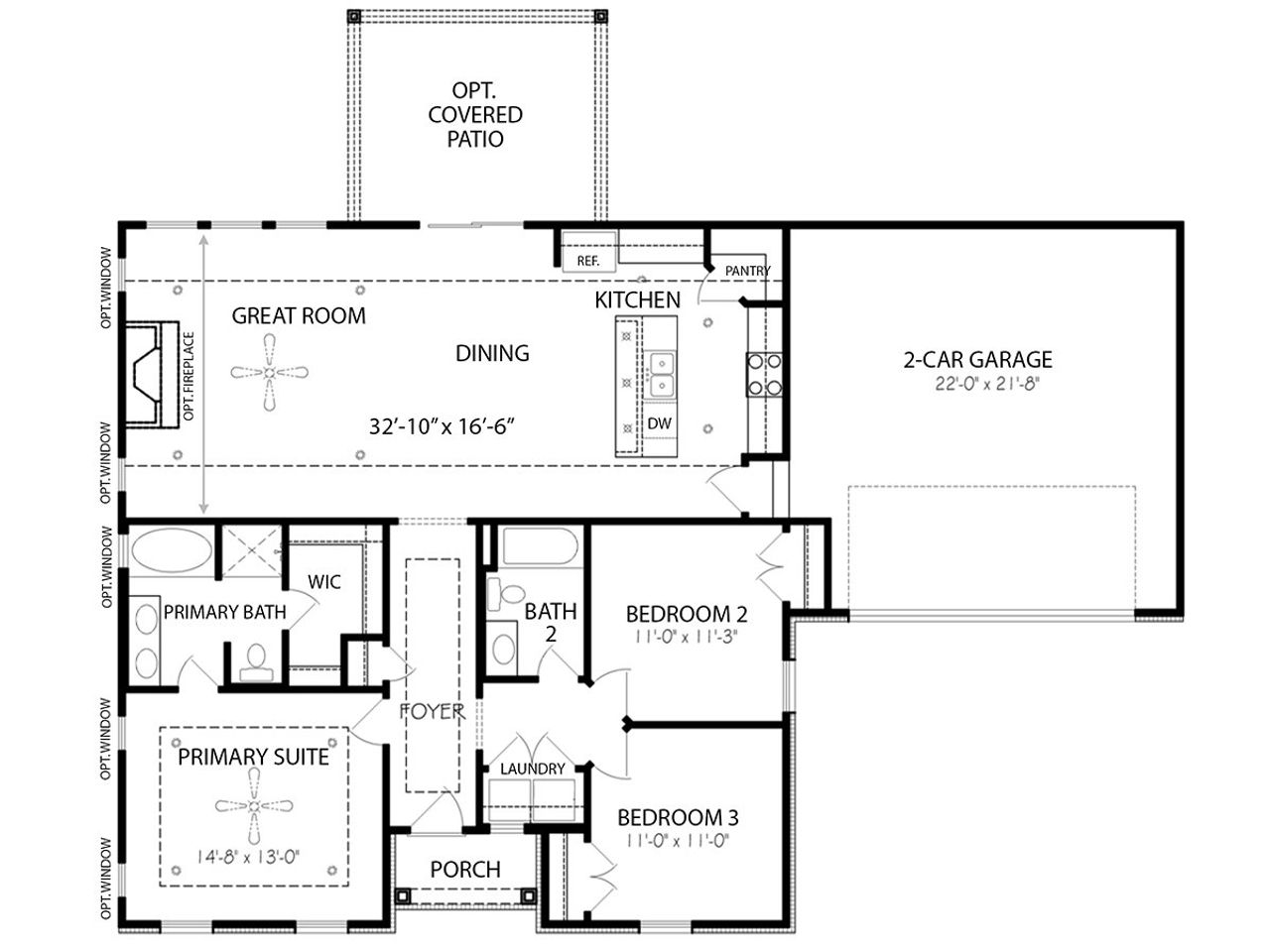
All optional windows, covered patio and fireplace in the great room are included! This one-level beauty offers 3 bedrooms, 2 full bathrooms, and a 2-car garage. The foyer features a tray ceiling and leads to the open living area that is grand in size, with the kitchen, dining, and great room flowing seamlessly together. The kitchen boasts an eye-catching center island with an eat-at bar, accent lighting, a walk-in pantry, and can lights. The primary suite features a tray ceiling, a ceiling fan, can lighting, and a primary bath with a dual sink vanity, walk-in shower, and soaking tub that provides the comfy and private space you're looking for in a new home.
May also be listed on the Regent Homes website
Information last verified by Jome: Yesterday at 9:02 PM (December 5, 2025)
Home highlights
Book your tour. Save an average of $18,473. We'll handle the rest.
We collect exclusive builder offers, book your tours, and support you from start to housewarming.
- Confirmed tours
- Get matched & compare top deals
- Expert help, no pressure
- No added fees
Estimated value based on Jome data, T&C apply
Home details
- Property status:
- Move-in ready
- Size:
- 1,478 sqft
- Stories:
- 1
- Beds:
- 3
- Baths:
- 2
- Garage spaces:
- 2
Construction details
- Builder Name:
- Regent Homes
Home features & finishes
- Garage/Parking:
- Garage
- Rooms:
- Primary Bedroom On MainPrimary Bedroom Downstairs

Community details
Sugar Creek
by Regent Homes, Mount Pleasant, TN
- 4 homes
- 11 plans
- 1,478 - 2,765 sqft
View Sugar Creek details
More homes in Sugar Creek
Floor plans in Sugar Creek
About the builder - Regent Homes
Neighborhood
Home address
- City:
- Mount Pleasant
- County:
- Maury
- Zip Code:
- 38474
Schools in Maury County School District
GreatSchools’ Summary Rating calculation is based on 4 of the school’s themed ratings, including test scores, student/academic progress, college readiness, and equity. This information should only be used as a reference. Jome is not affiliated with GreatSchools and does not endorse or guarantee this information. Please reach out to schools directly to verify all information and enrollment eligibility. Data provided by GreatSchools.org © 2025
Places of interest
Getting around
Air quality
Natural hazards risk
Climate hazards can impact homes and communities, with risks varying by location. These scores reflect the potential impact of natural disasters and climate-related risks on Maury County
Provided by FEMA

Considering this home?
Our expert will guide your tour, in-person or virtual
Need more information?
Text or call (888) 486-2818
Financials
Estimated monthly payment
Similar homes nearby
Recently added communities in this area
Nearby communities in Mount Pleasant
New homes in nearby cities
More New Homes in Mount Pleasant, TN
- Home
- New homes
- Tennessee
- Nashville-Memphis Area
- Maury County
- Mount Pleasant
- Sugar Creek
- 614 Brookside Dr, Unit 88, Mount Pleasant, TN 38474





































