





- 3 bd
- 2.5 ba
- 1,789 sqft
235 Ben Hill Dr, Unit 127, Cane Ridge, TN 37013
- Single-Family
- $223.53/sqft
- 113 days on Jome
New Homes for Sale Near 235 Ben Hill Dr, Unit 127, Cane Ridge, TN 37013
About this Home
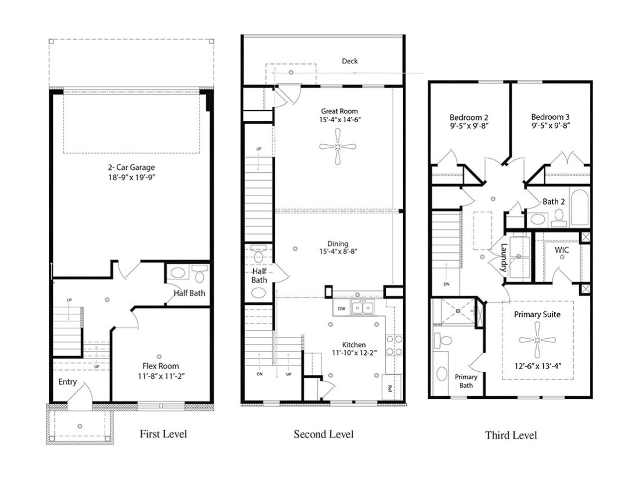
The High Point C offers exceptional design and space with the added bonus of a flex room and a half bath on the lower level. This elegant three-level townhome features an open-concept living area with a powder room and deck on the main living area and three bedrooms and two full bathrooms on the third level.
May also be listed on the Regent Homes website
Information last verified by Jome: Tuesday at 9:03 PM (November 11, 2025)
Home details
- Property status:
- Sold
- Size:
- 1,789 sqft
- Stories:
- 3+
- Beds:
- 3
- Baths:
- 2
- Half baths:
- 2
- Garage spaces:
- 2
Construction details
- Builder Name:
- Regent Homes
Home features & finishes
- Garage/Parking:
- Garage

Community details
Burkitt Ridge
by Regent Homes, Cane Ridge, TN
- 15 homes
- 1,265 - 2,428 sqft
View Burkitt Ridge details
More homes in Burkitt Ridge
About the builder - Regent Homes
Neighborhood
Home address
- City:
- Cane Ridge
- County:
- Davidson
- Zip Code:
- 37013
Schools in Metropolitan Nashville Public School District
GreatSchools’ Summary Rating calculation is based on 4 of the school’s themed ratings, including test scores, student/academic progress, college readiness, and equity. This information should only be used as a reference. Jome is not affiliated with GreatSchools and does not endorse or guarantee this information. Please reach out to schools directly to verify all information and enrollment eligibility. Data provided by GreatSchools.org © 2025
Places of interest
Getting around
Air quality
Natural hazards risk
Climate hazards can impact homes and communities, with risks varying by location. These scores reflect the potential impact of natural disasters and climate-related risks on Davidson County
Provided by FEMA
Financials
Nearby communities in Cane Ridge
Homes in Cane Ridge by Regent Homes
Recently added communities in this area
Other Builders in Cane Ridge, TN
Nearby sold homes
New homes in nearby cities
More New Homes in Cane Ridge, TN
- Jome
- New homes search
- Tennessee
- Nashville-Memphis Area
- Davidson County
- Cane Ridge
- Burkitt Ridge
- 235 Ben Hill Dr, Unit 127, Cane Ridge, TN 37013






























































