








Book your tour. Save an average of $18,473. We'll handle the rest.
We collect exclusive builder offers, book your tours, and support you from start to housewarming.
- Confirmed tours
- Get matched & compare top deals
- Expert help, no pressure
- No added fees
Estimated value based on Jome data, T&C apply








Why tour with Jome?
- No pressure toursTour at your own pace with no sales pressure
- Expert guidanceGet insights from our home buying experts
- Exclusive accessSee homes and deals not available elsewhere
Jome is featured in
- Single-Family
- Ready by July 2026
- $229.99/sqft
- 1 days on Jome
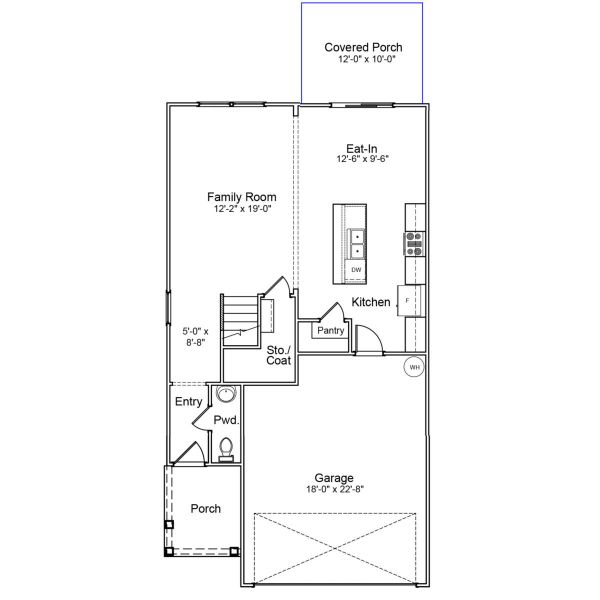
Home description
Welcome to Goose Creek's newest boutique community, Central Creek! This thoughtfully designed two-story home welcomes you in with a warm, inviting feel from the moment you step through the front door. A bright dining area greets you first, flowing seamlessly into the kitchen and great room—creating the perfect setting for everything from quiet mornings with coffee to weeknight dinners and weekend gatherings with friends. Crown molding, upgraded window trim, and durable luxury vinyl plank flooring bring both style and character to the main level. A convenient half bath and covered rear patio make everyday living effortless—whether you’re grilling out back or relaxing outdoors at the end of the day. The spacious two-car garage provides ample room for vehicles, storage, or even a small workshop, helping keep everything organized. Upstairs, the centrally located laundry room sits just steps from the bedrooms and loft, adding ease to your daily routine. The primary suite offers a peaceful retreat, complete with an upgraded tray ceiling, a generous walk-in closet, and a private bath featuring dual sinks and a walk-in shower. Two additional bedrooms are tucked on the opposite side of the loft, along with a full hall bath—offering flexible space for loved ones, guests, or a home office. Designed with real life in mind, this home blends comfort, style, and functionality in a way that truly feels like home. Plus, it’s located on the only cul-de-sac in the community—featuring some of the largest and most exclusive homesites available.
May also be listed on the Mungo Homes website
Information last verified by Jome: Today at 5:46 AM (April 1, 2026)
Book your tour. Save an average of $18,473. We'll handle the rest.
We collect exclusive builder offers, book your tours, and support you from start to housewarming.
- Confirmed tours
- Get matched & compare top deals
- Expert help, no pressure
- No added fees
Estimated value based on Jome data, T&C apply
Home details
- Property status:
- Under construction
- Size:
- 1,837 sqft
- Stories:
- 2
- Beds:
- 3
- Baths:
- 2
- Half baths:
- 1
- Garage spaces:
- 2
Construction details
- Builder Name:
- Mungo Homes
- Completion Date:
- July, 2026
Home features & finishes
- Garage/Parking:
- Garage
- Rooms:
- Primary Bedroom Upstairs

Get a consultation with our New Homes Expert
- See how your home builds wealth
- Plan your home-buying roadmap
- Discover hidden gems

Community details
Central Creek
by Mungo Homes, Goose Creek, SC
- 19 homes
- 7 plans
- 1,476 - 1,973 sqft
View Central Creek details
More homes in Central Creek
- Home at address 209 Central Creek Dr, Goose Creek, SC 29445

Bartow
$359,000
- 3 bd
- 2.5 ba
- 1,476 sqft
209 Central Creek Dr, Goose Creek, SC 29445
- Home at address 226 Central Creek Dr, Goose Creek, SC 29445

Dawson
$365,000
- 3 bd
- 2.5 ba
- 1,617 sqft
226 Central Creek Dr, Goose Creek, SC 29445
- Home at address 215 Central Creek Dr, Goose Creek, SC 29445

Dawson - Genesis Value Collection
$365,000
- 3 bd
- 2.5 ba
- 1,617 sqft
215 Central Creek Dr, Goose Creek, SC 29445
- Home at address 213 Central Creek Dr, Goose Creek, SC 29445

Bartow
$369,000
- 3 bd
- 2.5 ba
- 1,476 sqft
213 Central Creek Dr, Goose Creek, SC 29445
- Home at address 218 Central Creek Dr, Goose Creek, SC 29445

Dillon
$379,000
- 3 bd
- 2.5 ba
- 1,640 sqft
218 Central Creek Dr, Goose Creek, SC 29445
- Home at address 223 Central Creek Dr, Goose Creek, SC 29445

Dawson
$380,000
- 3 bd
- 2.5 ba
- 1,617 sqft
223 Central Creek Dr, Goose Creek, SC 29445
Floor plans in Central Creek
- View details for Bartow - Genesis Value Collection

Bartow - Genesis Value Collection
$357,000+- 3 bd
- 2.5 ba
- 1,476 sqft
- View details for Dawson - Genesis Value Collection

Dawson - Genesis Value Collection
$362,000+- 3 bd
- 2.5 ba
- 1,617 sqft
About the builder - Mungo Homes
Neighborhood
Home address
- City:
- Goose Creek
- County:
- Berkeley
- Zip Code:
- 29445
Schools in Berkeley County School District
GreatSchools’ Summary Rating calculation is based on 4 of the school’s themed ratings, including test scores, student/academic progress, college readiness, and equity. This information should only be used as a reference. Jome is not affiliated with GreatSchools and does not endorse or guarantee this information. Please reach out to schools directly to verify all information and enrollment eligibility. Data provided by GreatSchools.org © 2025
Places of interest
Getting around
Air quality
Noise level
A Soundscore™ rating is a number between 50 (very loud) and 100 (very quiet) that tells you how loud a location is due to environmental noise.

Considering this home?
Our expert will guide your tour, in-person or virtual
Need more information?
Text or call (888) 545-5198
Financials
Estimated monthly payment
Let us help you find your dream home
How many bedrooms are you looking for?
Similar homes nearby
Recently added communities in this area
Nearby communities in Goose Creek
New homes in nearby cities
More New Homes in Goose Creek, SC
- Jome
- New homes search
- South Carolina
- Charleston Metropolitan Area
- Berkeley County
- Goose Creek
- Central Creek
- 111 Old Creek Ct, Goose Creek, SC 29445





























