









Book your tour. Save an average of $18,473. We'll handle the rest.
We collect exclusive builder offers, book your tours, and support you from start to housewarming.
- Confirmed tours
- Get matched & compare top deals
- Expert help, no pressure
- No added fees
Estimated value based on Jome data, T&C apply
























- 3 bd
- 2.5 ba
- 1,305 sqft
570 Slim Cypress Run (21), Graniteville, SC 29829
Why tour with Jome?
- No pressure toursTour at your own pace with no sales pressure
- Expert guidanceGet insights from our home buying experts
- Exclusive accessSee homes and deals not available elsewhere
Jome is featured in
- Single-Family
- Quick move-in
- $156.54/sqft
- 1 days on Jome
Home description
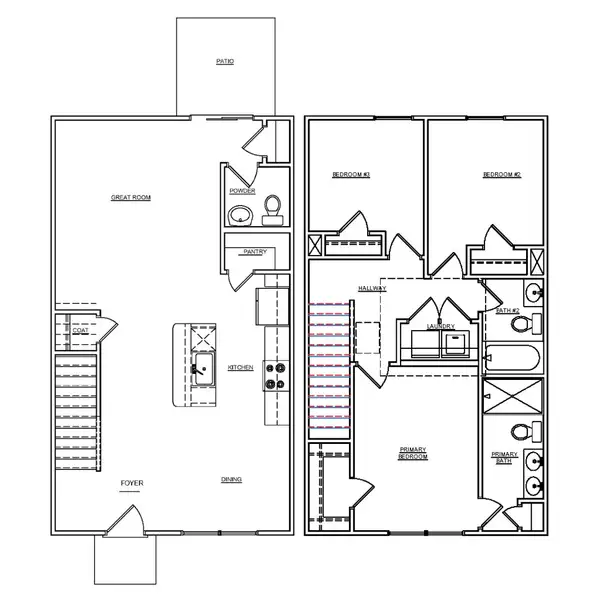
Move-In Ready! Exterior Unit! The Aspen offers a beautifully designed living space that maximizes space while keeping everyday living comfortable. From the front entry, the foyer opens into an open kitchen, dining area, and great room, creating a main living space that feels open but connected. The kitchen includes an island and pantry storage, with clear sightlines into the dining and living areas. A rear patio extends the living space outdoors, while a conveniently placed powder room and storage closet completes the main level.
This floor plan features 1,305 square feet, 3 bedrooms, and 2.5 bathrooms, with all bedrooms located on the second floor for added separation from the main living areas. Upstairs, the primary suite includes a private bath and walk-in closet, while two additional bedrooms at the rear of the home share a full bath nearby. Upstairs laundry adds everyday convenience, keeping everything you need close at hand.
May also be listed on the McGuinn Homes website
Information last verified by Jome: Today at 6:21 AM (March 24, 2026)
Book your tour. Save an average of $18,473. We'll handle the rest.
We collect exclusive builder offers, book your tours, and support you from start to housewarming.
- Confirmed tours
- Get matched & compare top deals
- Expert help, no pressure
- No added fees
Estimated value based on Jome data, T&C apply
Home details
- Property status:
- Move-in ready
- Size:
- 1,305 sqft
- Stories:
- 2
- Beds:
- 3
- Baths:
- 2
- Half baths:
- 1
Construction details
- Builder Name:
- McGuinn Homes

Get a consultation with our New Homes Expert
- See how your home builds wealth
- Plan your home-buying roadmap
- Discover hidden gems

Community details
Cypress Point
by McGuinn Homes, Graniteville, SC
- 4 homes
- 1 plan
- 1,305 - 1,305 sqft
View Cypress Point details
More homes in Cypress Point
- Home at address 564 Run, Graniteville, SC 29829

Aspen
Savings$189,490
- 3 bd
- 2.5 ba
- 1,305 sqft
564 Run, Graniteville, SC 29829
- Home at address 552 Slim Cypress Run (18), Aiken, SC 29829

Aspen
Savings$189,490
- 3 bd
- 2.5 ba
- 1,305 sqft
552 Slim Cypress Run (18), Aiken, SC 29829
- Home at address 526 Slim Cypress Run (14), Graniteville, SC 29829

Aspen
Savings$204,290
- 3 bd
- 2.5 ba
- 1,305 sqft
526 Slim Cypress Run (14), Graniteville, SC 29829
Floor plans in Cypress Point
About the builder - McGuinn Homes
Neighborhood
Home address
- City:
- Graniteville
- County:
- Aiken
- Zip Code:
- 29829
Schools in Aiken County School District
GreatSchools’ Summary Rating calculation is based on 4 of the school’s themed ratings, including test scores, student/academic progress, college readiness, and equity. This information should only be used as a reference. Jome is not affiliated with GreatSchools and does not endorse or guarantee this information. Please reach out to schools directly to verify all information and enrollment eligibility. Data provided by GreatSchools.org © 2025
Getting around
Air quality
Noise level
A Soundscore™ rating is a number between 50 (very loud) and 100 (very quiet) that tells you how loud a location is due to environmental noise.

Considering this home?
Our expert will guide your tour, in-person or virtual
Need more information?
Text or call (888) 545-5198
Financials
Estimated monthly payment
Let us help you find your dream home
How many bedrooms are you looking for?
Similar homes nearby
Recently added communities in this area
Nearby communities in Graniteville
New homes in nearby cities
More New Homes in Graniteville, SC
- Jome
- New homes search
- South Carolina
- Aiken County
- Graniteville
- Cypress Point
- 570 Slim Cypress Run (21), Graniteville, SC 29829



























