







































- 4 bd
- 3.5 ba
- 2,266 sqft
149 Cape Horn Dr, Unit (144), Columbia, SC 29209
- Single-Family
- $124.58/sqft
- 59 days on Jome
New Homes for Sale Near 149 Cape Horn Dr, Unit (144), Columbia, SC 29209
About this Home
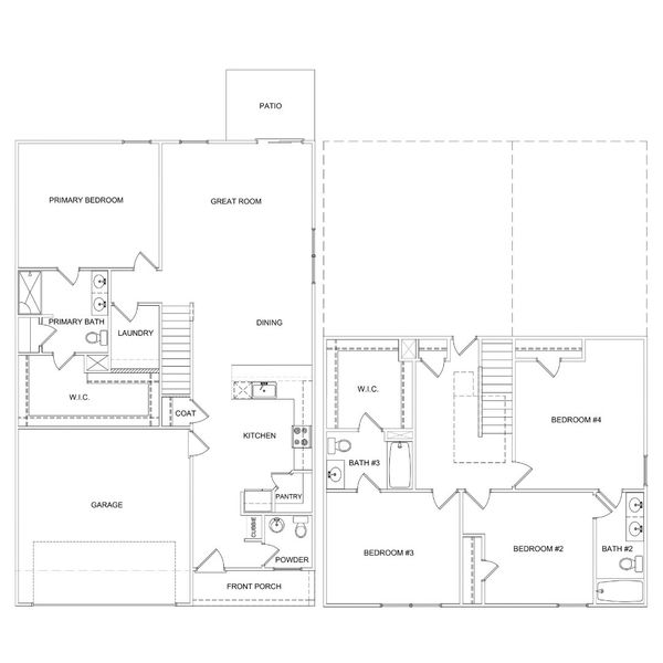
The Alder is designed to make everyday life feel simple and comfortable. With the primary bedroom on the main level and open living spaces at the heart of the home, this plan is easy to settle into from day one. The kitchen flows naturally into the dining area and great room, creating a space that works just as well for quiet nights at home as it does for hosting.
This home offers 2,266 square feet, 4 bedrooms, and 3.5 bathrooms, with a main-level primary suite that includes a walk-in closet and private bath. A dedicated laundry room adds everyday convenience right where you need it.
Upstairs, three additional bedrooms and two full bathrooms give everyone their own space, along with flexibility for guests, work, or hobbies. The Alder also includes a two-car garage and a back patio, rounding out a floor plan that’s practical, comfortable, and built for real life.
May also be listed on the McGuinn Homes website
Information last verified by Jome: Monday at 6:06 AM (March 23, 2026)
Home details
- Property status:
- Sold
- Size:
- 2,266 sqft
- Stories:
- 2
- Beds:
- 4
- Baths:
- 3
- Half baths:
- 1
- Garage spaces:
- 2
Construction details
- Builder Name:
- McGuinn Homes
Home features & finishes
- Garage/Parking:
- Garage

Community details
Reserve at Mill Creek
by McGuinn Homes, Columbia, SC
- 7 homes
- 13 plans
- 1,392 - 2,266 sqft
View Reserve at Mill Creek details
More homes in Reserve at Mill Creek
- Home at address 131 Cape Horn Dr, Unit (148), Columbia, SC 29209

$270,990
Move-in ready- 4 bd
- 2.5 ba
- 2,075 sqft
131 Cape Horn Dr, Unit (148), Columbia, SC 29209
Floor plans in Reserve at Mill Creek
About the builder - McGuinn Homes
Neighborhood
Home address
Schools in Richland School District 1
GreatSchools’ Summary Rating calculation is based on 4 of the school’s themed ratings, including test scores, student/academic progress, college readiness, and equity. This information should only be used as a reference. Jome is not affiliated with GreatSchools and does not endorse or guarantee this information. Please reach out to schools directly to verify all information and enrollment eligibility. Data provided by GreatSchools.org © 2025
Places of interest
Getting around
Air quality
Noise level
A Soundscore™ rating is a number between 50 (very loud) and 100 (very quiet) that tells you how loud a location is due to environmental noise.
Financials
Nearby communities in Columbia
Homes in Columbia Neighborhoods
Homes in Columbia by McGuinn Homes
Recently added communities in this area
Other Builders in Columbia, SC
Nearby sold homes
New homes in nearby cities
More New Homes in Columbia, SC
- Jome
- New homes search
- South Carolina
- Richland County
- Columbia
- Reserve at Mill Creek
- 149 Cape Horn Dr, Unit (144), Columbia, SC 29209
























































