














Book your tour. Save an average of $18,473. We'll handle the rest.
We collect exclusive builder offers, book your tours, and support you from start to housewarming.
- Confirmed tours
- Get matched & compare top deals
- Expert help, no pressure
- No added fees
Estimated value based on Jome data, T&C apply






















- 4 bd
- 2.5 ba
- 1,927 sqft
214 Livingston Woods Dr, Irmo, SC 29063
Why tour with Jome?
- No pressure toursTour at your own pace with no sales pressure
- Expert guidanceGet insights from our home buying experts
- Exclusive accessSee homes and deals not available elsewhere
Jome is featured in
- Single-Family
- Quick move-in
- $166.75/sqft
- 3 days on Jome
Home description
About this home
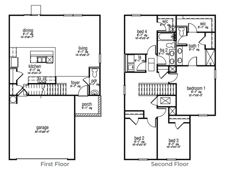
Welcome to the Aisle at 214 Livingston Woods Drive with a stunning two-story design including elevated features and Hardie Plank and brick exterior. Inside, the open-concept layout showcases a spacious kitchen with sleek quartz countertops, a stylish backsplash, and a large floating kitchen island, finished with durable RevWood flooring. The kitchen with feature gray cabinets, although white is pictured. The dining and living spaces are open off the living space, creating the perfect entertainment space, and are also finished with RevWood flooring. With 4 bedrooms and 2.5 bathrooms, this home provides both space and functionality. All bedrooms are located upstairs, as well as the laundry room and 2 bathrooms. This thoughtfully designed home combines modern finishes and functionality in an ideal location. Located in the peaceful community of Livingston Woods, just minutes from Lake Murray and local schools, you don't want to miss the chance to call the Aisle your home! Call us today
May also be listed on the D.R. Horton website
Information last verified by Jome: Today at 3:34 AM (March 6, 2026)
Book your tour. Save an average of $18,473. We'll handle the rest.
We collect exclusive builder offers, book your tours, and support you from start to housewarming.
- Confirmed tours
- Get matched & compare top deals
- Expert help, no pressure
- No added fees
Estimated value based on Jome data, T&C apply
Home details
- Property status:
- Move-in ready
- Size:
- 1,927 sqft
- Stories:
- 2
- Beds:
- 4
- Baths:
- 2.5
- Garage spaces:
- 2
Construction details
- Builder Name:
- D.R. Horton
Home features & finishes
- Garage/Parking:
- Garage

Get a consultation with our New Homes Expert
- See how your home builds wealth
- Plan your home-buying roadmap
- Discover hidden gems

Community details
Livingston Woods
by D.R. Horton, Irmo, SC
- 2 homes
- 14 plans
- 1,459 - 3,764 sqft
View Livingston Woods details
More homes in Livingston Woods
- Home at address 237 Livingston Woods Dr, Irmo, SC 29063

Trivecta
$421,855
- 4 bd
- 3 ba
- 2,291 sqft
237 Livingston Woods Dr, Irmo, SC 29063
Floor plans in Livingston Woods
About the builder - D.R. Horton

- 1,182communities on Jome
- 10,174homes on Jome
Neighborhood
Home address
Schools in Lexington School District 5
GreatSchools’ Summary Rating calculation is based on 4 of the school’s themed ratings, including test scores, student/academic progress, college readiness, and equity. This information should only be used as a reference. Jome is not affiliated with GreatSchools and does not endorse or guarantee this information. Please reach out to schools directly to verify all information and enrollment eligibility. Data provided by GreatSchools.org © 2025
Places of interest
Getting around
Air quality
Noise level
A Soundscore™ rating is a number between 50 (very loud) and 100 (very quiet) that tells you how loud a location is due to environmental noise.

Considering this home?
Our expert will guide your tour, in-person or virtual
Need more information?
Text or call (888) 488-9243
Financials
Estimated monthly payment
Let us help you find your dream home
How many bedrooms are you looking for?
Similar homes nearby
Recently added communities in this area
Nearby communities in Irmo
New homes in nearby cities
More New Homes in Irmo, SC
- Jome
- New homes search
- South Carolina
- Richland County
- Irmo
- Livingston Woods
- 214 Livingston Woods Dr, Irmo, SC 29063

































