



Book your tour. Save an average of $18,473. We'll handle the rest.
We collect exclusive builder offers, book your tours, and support you from start to housewarming.
- Confirmed tours
- Get matched & compare top deals
- Expert help, no pressure
- No added fees
Estimated value based on Jome data, T&C apply
- 4 bd
- 2.5 ba
- 2,366 sqft
109 Beechcroft Pl, Fountain Inn, SC 29644
Why tour with Jome?
- No pressure toursTour at your own pace with no sales pressure
- Expert guidanceGet insights from our home buying experts
- Exclusive accessSee homes and deals not available elsewhere
Jome is featured in
- Single-Family
- Quick move-in
- $154.06/sqft
- 46 days on Jome
Home description
About this home
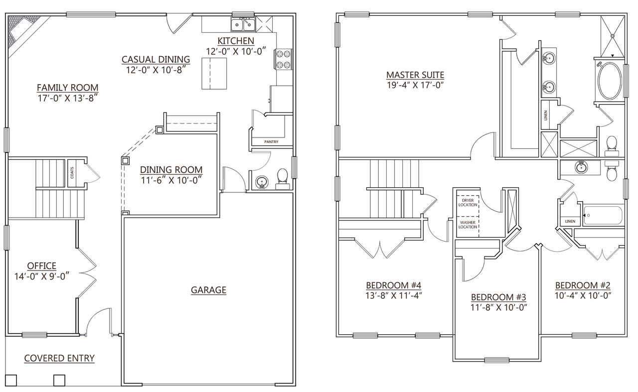
Check out 109 Beechcroft Place, a stunning new home in our Briargate community! This thoughtfully designed two-story home features four bedrooms, two and a half bathrooms, and a two-car garage. With its flexible layout and modern flow, this home is perfect for both everyday living and entertaining.
From the covered entry, step into a welcoming foyer that leads to a dedicated office and a formal dining room. The kitchen includes modern appliances, a pantry, and a large island that overlooks the casual dining area and living room, creating an open and connected space for gatherings of any size.
Upstairs, the primary suite provides a relaxing retreat with a spacious bathroom featuring dual vanities, a soaking tub, a separate shower, and a walk-in closet. Three additional bedrooms and a full bathroom are also located on the second floor, along with a conveniently placed laundry area.
With its comfortable design, open living areas, and thoughtful details throughout, this home blends modern style with everyday functionality. Pictures are representative.
May also be listed on the D.R. Horton website
Information last verified by Jome: Today at 3:15 AM (April 12, 2026)
Book your tour. Save an average of $18,473. We'll handle the rest.
We collect exclusive builder offers, book your tours, and support you from start to housewarming.
- Confirmed tours
- Get matched & compare top deals
- Expert help, no pressure
- No added fees
Estimated value based on Jome data, T&C apply
Home details
- Property status:
- Move-in ready
- Size:
- 2,366 sqft
- Stories:
- 2
- Beds:
- 4
- Baths:
- 2.5
- Garage spaces:
- 2
Construction details
- Builder Name:
- D.R. Horton
Home features & finishes
- Garage/Parking:
- Garage

Get a consultation with our New Homes Expert
- See how your home builds wealth
- Plan your home-buying roadmap
- Discover hidden gems

Community details
Briargate
by D.R. Horton, Fountain Inn, SC
- 6 homes
- 5 plans
- 1,828 - 3,157 sqft
View Briargate details
More homes in Briargate
- Home at address 114 Beechcroft Pl, Fountain Inn, SC 29644

Phoenix
$358,900
- 4 bd
- 2.5 ba
- 2,366 sqft
114 Beechcroft Pl, Fountain Inn, SC 29644
- Home at address 108 Beechcroft Pl, Fountain Inn, SC 29644

Phoenix
$374,500
- 4 bd
- 2.5 ba
- 2,366 sqft
108 Beechcroft Pl, Fountain Inn, SC 29644
- Home at address 111 Beechcroft Pl, Fountain Inn, SC 29644

Vail
$391,500
- 4 bd
- 3 ba
- 2,692 sqft
111 Beechcroft Pl, Fountain Inn, SC 29644
- Home at address 103 Beechcroft Pl, Fountain Inn, SC 29644

Vail
$393,500
- 4 bd
- 3 ba
- 2,692 sqft
103 Beechcroft Pl, Fountain Inn, SC 29644
- Home at address 107 Beechcroft Pl, Fountain Inn, SC 29644

Vail
$397,500
- 4 bd
- 3 ba
- 2,692 sqft
107 Beechcroft Pl, Fountain Inn, SC 29644
Floor plans in Briargate
About the builder - D.R. Horton

- 1,154communities on Jome
- 10,668homes on Jome
Neighborhood
Home address
- City:
- Fountain Inn
- County:
- Greenville
- Zip Code:
- 29644
Schools in Greenville County School District
GreatSchools’ Summary Rating calculation is based on 4 of the school’s themed ratings, including test scores, student/academic progress, college readiness, and equity. This information should only be used as a reference. Jome is not affiliated with GreatSchools and does not endorse or guarantee this information. Please reach out to schools directly to verify all information and enrollment eligibility. Data provided by GreatSchools.org © 2025
Places of interest
Getting around
Air quality
Noise level
A Soundscore™ rating is a number between 50 (very loud) and 100 (very quiet) that tells you how loud a location is due to environmental noise.

Considering this home?
Our expert will guide your tour, in-person or virtual
Need more information?
Text or call (888) 545-5198
Financials
Estimated monthly payment
Let us help you find your dream home
How many bedrooms are you looking for?
Similar homes nearby
Recently added communities in this area
Nearby communities in Fountain Inn
New homes in nearby cities
More New Homes in Fountain Inn, SC
- Jome
- New homes search
- South Carolina
- Greenville County
- Fountain Inn
- Briargate
- 109 Beechcroft Pl, Fountain Inn, SC 29644























