








Book your tour. Save an average of $18,473. We'll handle the rest.
We collect exclusive builder offers, book your tours, and support you from start to housewarming.
- Confirmed tours
- Get matched & compare top deals
- Expert help, no pressure
- No added fees
Estimated value based on Jome data, T&C apply








Why tour with Jome?
- No pressure toursTour at your own pace with no sales pressure
- Expert guidanceGet insights from our home buying experts
- Exclusive accessSee homes and deals not available elsewhere
Jome is featured in
- Single-Family
- Ready by June 2026
- $152.03/sqft
- 59 days on Jome
Builder deals available
- TOP-TIER DEAL
VA 30 Year Fixed
$4,820 est. value- Rate buydown from 3.49% (1 year) with 4.733% APR
FHA 30 Year Fixed
$500 est. value- Rate buydown from 3.49% (1 year) with 5.422% APR and 3.5% down payment
Deals may change and are not guaranteed. Some deals apply to specific homes or plans. Not a financing offer. Eligibility varies by lender. Please verify details.
Home description
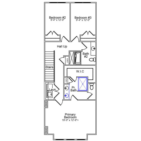
This two-story Foxglove townhome includes three bedrooms and two-and-one-half-bathrooms. Upon entering, a hallway leads you past the staircase and half bathroom and into the open-concept kitchen, great room, eat-in area, and patio. Upstairs, the primary suite features a walk-in closet and dual vanities. A laundry closet is located upstairs for ultimate convenience. The two additional bedrooms share a bathroom. A one-car garage completes this home. Convenient to both downtown Greenville and Greer and located in the award-winning Riverside School District, Edwards Station is a stand-out community!
May also be listed on the Mungo Homes website
Information last verified by Jome: Today at 5:54 AM (April 19, 2026)
Book your tour. Save an average of $18,473. We'll handle the rest.
We collect exclusive builder offers, book your tours, and support you from start to housewarming.
- Confirmed tours
- Get matched & compare top deals
- Expert help, no pressure
- No added fees
Estimated value based on Jome data, T&C apply
Home details
- Property status:
- Under construction
- Size:
- 1,697 sqft
- Stories:
- 2
- Beds:
- 3
- Baths:
- 2
- Half baths:
- 1
- Garage spaces:
- 1
Construction details
- Builder Name:
- Mungo Homes
- Completion Date:
- June, 2026
Home features & finishes
- Garage/Parking:
- Garage
- Rooms:
- Primary Bedroom Upstairs

Get a consultation with our New Homes Expert
- See how your home builds wealth
- Plan your home-buying roadmap
- Discover hidden gems

Community details
Edwards Station
by Mungo Homes, Taylors, SC
- 13 homes
- 5 plans
- 1,250 - 2,322 sqft
View Edwards Station details
More homes in Edwards Station
- Home at address 312 Cambrian Ct, Taylors, SC 29687

Laurens
Savings$224,000
- 3 bd
- 2.5 ba
- 1,288 sqft
312 Cambrian Ct, Taylors, SC 29687
- Home at address 314 Cambrian Ct, Taylors, SC 29687

Laurens
Savings$229,000
- 3 bd
- 2.5 ba
- 1,288 sqft
314 Cambrian Ct, Taylors, SC 29687
- Home at address 17 Nonnington Wy, Taylors, SC 29687

Foxglove
Savings$251,000
- 3 bd
- 2.5 ba
- 1,697 sqft
17 Nonnington Wy, Taylors, SC 29687
- Home at address 46 Nonnington Wy, Taylors, SC 29687

Foxglove
Savings$256,000
- 3 bd
- 2.5 ba
- 1,697 sqft
46 Nonnington Wy, Taylors, SC 29687
- Home at address 34 Nonnington Wy, Taylors, SC 29687

Foxglove
Savings$256,000
- 3 bd
- 2.5 ba
- 1,670 sqft
34 Nonnington Wy, Taylors, SC 29687
- Home at address 47 Nonnington Wy, Taylors, SC 29687

Foxglove
Savings$258,000
- 3 bd
- 2.5 ba
- 1,670 sqft
47 Nonnington Wy, Taylors, SC 29687
Floor plans in Edwards Station
- View details for Laurens - Genesis Value Collection

Laurens - Genesis Value Collection
Savings$221,000+- 3 bd
- 2.5 ba
- 1,250 sqft
- View details for Dahlia - Genesis Value Collection

Dahlia - Genesis Value Collection
Savings$244,000+- 3 bd
- 2.5 ba
- 1,672 sqft
About the builder - Mungo Homes
Neighborhood
Home address
- City:
- Taylors
- County:
- Greenville
- Zip Code:
- 29687
Schools in Greenville County School District
GreatSchools’ Summary Rating calculation is based on 4 of the school’s themed ratings, including test scores, student/academic progress, college readiness, and equity. This information should only be used as a reference. Jome is not affiliated with GreatSchools and does not endorse or guarantee this information. Please reach out to schools directly to verify all information and enrollment eligibility. Data provided by GreatSchools.org © 2025
Places of interest
Getting around
Air quality
Noise level
A Soundscore™ rating is a number between 50 (very loud) and 100 (very quiet) that tells you how loud a location is due to environmental noise.

Considering this home?
Our expert will guide your tour, in-person or virtual
Need more information?
Text or call (888) 545-5198
Financials
Estimated monthly payment
Let us help you find your dream home
How many bedrooms are you looking for?
Similar homes nearby
Recently added communities in this area
Nearby communities in Taylors
New homes in nearby cities
More New Homes in Taylors, SC
- Jome
- New homes search
- South Carolina
- Greenville County
- Taylors
- Edwards Station
- 44 Nonnington Wy, Taylors, SC 29687


























