




- 4 bd
- 3 ba
- 2,380 sqft
1103 Nazareth Rd, Lexington, SC 29073
- Single-Family
- $166.35/sqft
- No HOA fee
- 136 days on Jome
New Homes for Sale Near 1103 Nazareth Rd, Lexington, SC 29073
About this Home
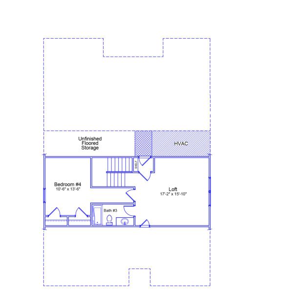
Welcome to Nazareth, Lexington's newest community with large lots, beautiful homes, and an exceptional location. The Durham II is a one-story home featuring four bedrooms and three bathrooms. The kitchen is open to the great room and eat-in and includes an island with breakfast bar. The primary suite is just off the great room and features a linen closet, water closet, and large walk-in closet. Two secondary bedrooms are located at the front of the home, and each have a walk-in closet. An upstairs guest room has a private closet and ensuite bathroom! A large loft area is also found upstairs, as well as a floored storage space within the upstairs attic. The garage entry is tucked away with a conveniently located coat closet, giving easy access to the full garage and third bay. Call for more information!
May also be listed on the Mungo Homes website
Information last verified by Jome: Thursday at 5:39 AM (March 5, 2026)
Home details
- Property status:
- Sold
- Size:
- 2,380 sqft
- Stories:
- 1
- Beds:
- 4
- Baths:
- 3
- Garage spaces:
- 3
Construction details
- Builder Name:
- Mungo Homes
- Completion Date:
- June, 2026
Home features & finishes
- Garage/Parking:
- Garage
- Rooms:
- Primary Bedroom On MainPrimary Bedroom Downstairs

Community details
Nazareth Heights
by Mungo Homes, Lexington, SC
- 1 home
- 2,477 - 2,477 sqft
View Nazareth Heights details
More homes in Nazareth Heights
- Home at address 1079 Nazareth Rd, Lexington, SC 29073

$340,000
Under construction- 4 bd
- 2 ba
- 2,477 sqft
1079 Nazareth Rd, Lexington, SC 29073
About the builder - Mungo Homes
Neighborhood
Home address
Schools in Lexington School District 1
GreatSchools’ Summary Rating calculation is based on 4 of the school’s themed ratings, including test scores, student/academic progress, college readiness, and equity. This information should only be used as a reference. Jome is not affiliated with GreatSchools and does not endorse or guarantee this information. Please reach out to schools directly to verify all information and enrollment eligibility. Data provided by GreatSchools.org © 2025
Places of interest
Getting around
Air quality
Noise level
A Soundscore™ rating is a number between 50 (very loud) and 100 (very quiet) that tells you how loud a location is due to environmental noise.
Financials
Nearby communities in Lexington
Homes in Lexington by Mungo Homes
Recently added communities in this area
Other Builders in Lexington, SC
Nearby sold homes
New homes in nearby cities
More New Homes in Lexington, SC
- Jome
- New homes search
- South Carolina
- Lexington County
- Lexington
- Nazareth Heights
- 1103 Nazareth Rd, Lexington, SC 29073































































