









Book your tour. Save an average of $18,473. We'll handle the rest.
We collect exclusive builder offers, book your tours, and support you from start to housewarming.
- Confirmed tours
- Get matched & compare top deals
- Expert help, no pressure
- No added fees
Estimated value based on Jome data, T&C apply
























Why tour with Jome?
- No pressure toursTour at your own pace with no sales pressure
- Expert guidanceGet insights from our home buying experts
- Exclusive accessSee homes and deals not available elsewhere
Jome is featured in
- Single-Family
- Quick move-in
- $232.07/sqft
- 0.19-acre lot
Builder deals available
- TOP-TIER DEAL
VA 30 Year Fixed
$7,970 est. value- Rate buydown from 3.49% (1 year) with 4.733% APR
FHA 30 Year Fixed
$830 est. value- Rate buydown from 3.49% (1 year) with 5.422% APR and 3.5% down payment
Deals may change and are not guaranteed. Some deals apply to specific homes or plans. Not a financing offer. Eligibility varies by lender. Please verify details.
Home description
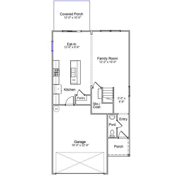
Located on one of the limited cul-de-sac homesites in Central Creek, a brand-new boutique community in the heart of Goose Creek, the Highland plan is a thoughtfully designed two-story home offering 3 bedrooms and 2.5 baths. An open layout welcomes you with crown molding and luxury vinyl plank flooring throughout the main level. The great room flows into the eat-in area and modern kitchen with a large island, pantry, and adjacent storage closet. Upgrades include quartz countertops, upgraded cabinetry, open wood spindles, and durable Hardie Plank exterior. Relax on the covered back porch overlooking a wooded view. Upstairs, all bedrooms are near the laundry room. The primary suite offers a walk-in closet and a spa-like bath with a tiled walk-in shower and linen closet.
Carolina One Real Estate, MLS 26006313
May also be listed on the Mungo Homes website
Information last verified by Jome: Yesterday at 1:55 PM (April 18, 2026)
Home highlights
Cutting-edge data hub in Berkeley County boosting tech jobs, infrastructure, and digital growth in the Charleston area.
Book your tour. Save an average of $18,473. We'll handle the rest.
We collect exclusive builder offers, book your tours, and support you from start to housewarming.
- Confirmed tours
- Get matched & compare top deals
- Expert help, no pressure
- No added fees
Estimated value based on Jome data, T&C apply
Home details
- Property status:
- Move-in ready
- Lot size (acres):
- 0.19
- Size:
- 1,840 sqft
- Stories:
- 2
- Beds:
- 3
- Baths:
- 2
- Half baths:
- 1
- Garage spaces:
- 2
Construction details
- Builder Name:
- Mungo Homes
- Completion Date:
- April, 2026
- Year Built:
- 2026
Home features & finishes
- Cooling:
- Ceiling Fan(s)Central Air
- Flooring:
- Vinyl FlooringCarpet Flooring
- Garage/Parking:
- GarageAttached Garage
- Interior Features:
- Ceiling-HighWalk-In ClosetFoyerPantryLoft
- Kitchen:
- Kitchen Island
- Laundry facilities:
- DryerWasherUtility/Laundry Room
- Property amenities:
- Cul-de-sacPorch
- Rooms:
- KitchenFamily RoomPrimary Bedroom Upstairs

Get a consultation with our New Homes Expert
- See how your home builds wealth
- Plan your home-buying roadmap
- Discover hidden gems
Utility information
- Heating:
- Electric Heating
- Sewer:
- Public Sewer
- Water source:
- Public

Community details
Central Creek
by Mungo Homes, Goose Creek, SC
- 20 homes
- 7 plans
- 1,476 - 1,973 sqft
View Central Creek details
Community amenities
- Park Nearby
- Walking, Jogging, Hike Or Bike Trails
More homes in Central Creek
- Home at address 209 Central Creek Dr, Goose Creek, SC 29445

Bartow
Savings$356,000
- 3 bd
- 2.5 ba
- 1,476 sqft
209 Central Creek Dr, Goose Creek, SC 29445
- Home at address 226 Central Creek Dr, Goose Creek, SC 29445

Dawson
Savings$360,000
- 3 bd
- 2.5 ba
- 1,617 sqft
226 Central Creek Dr, Goose Creek, SC 29445
- Home at address 215 Central Creek Dr, Goose Creek, SC 29445

Dawson - Genesis Value Collection
Savings$365,000
- 3 bd
- 2.5 ba
- 1,617 sqft
215 Central Creek Dr, Goose Creek, SC 29445
- Home at address 213 Central Creek Dr, Goose Creek, SC 29445

Bartow
Savings$369,000
- 3 bd
- 2.5 ba
- 1,476 sqft
213 Central Creek Dr, Goose Creek, SC 29445
- Home at address 223 Central Creek Dr, Goose Creek, SC 29445

Dawson
Savings$370,000
- 3 bd
- 2.5 ba
- 1,617 sqft
223 Central Creek Dr, Goose Creek, SC 29445
- Home at address 218 Central Creek Dr, Goose Creek, SC 29445

Dillon
Savings$375,000
- 3 bd
- 2.5 ba
- 1,640 sqft
218 Central Creek Dr, Goose Creek, SC 29445
Floor plans in Central Creek
- View details for Bartow - Genesis Value Collection

Bartow - Genesis Value Collection
$357,000+- 3 bd
- 2.5 ba
- 1,476 sqft
- View details for Dawson - Genesis Value Collection

Dawson - Genesis Value Collection
$362,000+- 3 bd
- 2.5 ba
- 1,617 sqft
About the builder - Mungo Homes
Neighborhood
Home address
- City:
- Goose Creek
- County:
- Berkeley
- Zip Code:
- 29445
Schools in Berkeley County School District
GreatSchools’ Summary Rating calculation is based on 4 of the school’s themed ratings, including test scores, student/academic progress, college readiness, and equity. This information should only be used as a reference. Jome is not affiliated with GreatSchools and does not endorse or guarantee this information. Please reach out to schools directly to verify all information and enrollment eligibility. Data provided by GreatSchools.org © 2025
Places of interest
Getting around
Air quality
Noise level
A Soundscore™ rating is a number between 50 (very loud) and 100 (very quiet) that tells you how loud a location is due to environmental noise.

Considering this home?
Our expert will guide your tour, in-person or virtual
Need more information?
Text or call (888) 545-5198
Financials
Estimated monthly payment
Let us help you find your dream home
How many bedrooms are you looking for?
Similar homes nearby
Recently added communities in this area
Nearby communities in Goose Creek
New homes in nearby cities
More New Homes in Goose Creek, SC
Carolina One Real Estate, MLS 26006313
IDX information is provided exclusively for personal, non-commercial use, and may not be used for any purpose other than to identify prospective properties consumers may be interested in purchasing. Copyright Charleston Trident Multiple Listing Service, Inc. All rights reserved. Information is deemed reliable but not guaranteed.
Read moreLast checked Apr 19, 1:55 am
- Jome
- New homes search
- South Carolina
- Charleston Metropolitan Area
- Berkeley County
- Goose Creek
- Central Creek
- 108 Old Creek Ct, Goose Creek, SC 29445































