














Book your tour. Save an average of $18,473. We'll handle the rest.
- Confirmed tours
- Get matched & compare top deals
- Expert help, no pressure
- No added fees
Estimated value based on Jome data, T&C apply


































- 4 bd
- 2.5 ba
- 2,672 sqft
3046 Meadowcrest Dr, Unit 69, Clover, SC 29710
Why tour with Jome?
- No pressure toursTour at your own pace with no sales pressure
- Expert guidanceGet insights from our home buying experts
- Exclusive accessSee homes and deals not available elsewhere
Jome is featured in
- Single-Family
- Quick move-in
- $250/sqft
- 1.27-acre lot
Home description
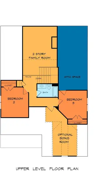
Step into your dream home on this spacious 1.27-acre lot in the beautiful Stonecrest Meadows community. This home offers a prime location with excellent curb appeal. Enjoy the privacy of a large lot while still being part of a thoughtfully planned development. Featuring a large kitchen and living area, this home is great for everyday meals or entertaining guests. The main level primary suite is a standout feature, offering a private ensuite bathroom. A unique feature is the direct access from the primary bathroom into the laundry room, adding everyday convenience and making household tasks a breeze. Completing the main floor, a convenient half bath for guests and a spacious dinning room. Upstairs you'll find three additional bedrooms and a full bathroom, idea for family, guests, or flexible spaces such as an office or playroom. Outside, enjoy a screened in covered back porch with a full acre of land for outdoor seating, gardening, or play. Located just 15 minutes from downtown York. Clover address but York school districts. Tankless gas hot water heater and high energy-efficient heat pump (14 seer rating). Comes pre-wired for easy access to Comporium and AT&T high-speed Internet. Enjoy the cost-saving benefit of water from a private well, eliminating expensive water bills, as well as no sewer bills to pay! Don't miss your chance to make this wonderful property your own, schedule a showing today!
Laureate Realty, MLS CAR4327029
Information last verified by Jome: Today at 12:02 AM (January 20, 2026)
Book your tour. Save an average of $18,473. We'll handle the rest.
We collect exclusive builder offers, book your tours, and support you from start to housewarming.
- Confirmed tours
- Get matched & compare top deals
- Expert help, no pressure
- No added fees
Estimated value based on Jome data, T&C apply
Home details
- Property status:
- Move-in ready
- Lot size (acres):
- 1.27
- Size:
- 2,672 sqft
- Stories:
- 2
- Beds:
- 4
- Baths:
- 2
- Half baths:
- 1
- Garage spaces:
- 2
Construction details
- Year Built:
- 2025
Home features & finishes
- Foundation Details:
- Slab
- Garage/Parking:
- GarageAttached Garage
- Kitchen:
- DishwasherOvenDisposalConvection Oven
- Laundry facilities:
- DryerWasherLaundry Facilities On Main LevelUtility/Laundry Room
- Property amenities:
- Fireplace
- Rooms:
- AtticFamily Room

Get a consultation with our New Homes Expert
- See how your home builds wealth
- Plan your home-buying roadmap
- Discover hidden gems
Utility information
- Heating:
- Heat Pump
- Utilities:
- Electricity Available, Natural Gas on Property, Underground Utilities, Internet-Fiber
Neighborhood
Home address
Schools in York School District 1
GreatSchools’ Summary Rating calculation is based on 4 of the school’s themed ratings, including test scores, student/academic progress, college readiness, and equity. This information should only be used as a reference. Jome is not affiliated with GreatSchools and does not endorse or guarantee this information. Please reach out to schools directly to verify all information and enrollment eligibility. Data provided by GreatSchools.org © 2025
Places of interest
Getting around
Natural hazards risk
Provided by FEMA

Considering this home?
Our expert will guide your tour, in-person or virtual
Need more information?
Text or call (888) 486-2818
Financials
Estimated monthly payment
Let us help you find your dream home
How many bedrooms are you looking for?
Similar homes nearby
Recently added communities in this area
Nearby communities in Clover
New homes in nearby cities
More New Homes in Clover, SC
Laureate Realty, MLS CAR4327029
Based on information submitted to the MLS GRID as of 10/21/2024 2:31 PM CDT. All data is obtained from various sources and may not have been verified by the broker or MLS GRID. Supplied Open House Information is subject to change without notice. All information should be independently reviewed and verified for accuracy. Properties may or may not be listed by the office/agent presenting the information. Properties displayed may be listed or sold by various participants in the MLS. The Digital Millennium Copyright Act of 1998, 17 U.S.C. § 512 (the “DMCA”) provides recourse for copyright owners who believe that material appearing on the Internet infringes their rights under U.S. copyright law. If you believe in good faith that any content or material made available in connection with our website or services infringes your copyright, you (or your agent) may send us a notice requesting that the content or material be removed, or access to it blocked. Notices must be sent in writing by email to DMCAnotice@MLSGrid.com. The DMCA requires that your notice of alleged copyright infringement include the following information: (1) description of the copyrighted work that is the subject of claimed infringement; (2) description of the alleged infringing content and information sufficient to permit us to locate the content; (3) contact information for you, including your address, telephone number and email address; (4) a statement by you that you have a good faith belief that the content in the manner complained of is not authorized by the copyright owner, or its agent, or by the operation of any law; (5) a statement by you, signed under penalty of perjury, that the information in the notification is accurate and that you have the authority to enforce the copyrights that are claimed to be infringed; and (6) a physical or electronic signature of the copyright owner or a person authorized to act on the copyright owner’s behalf. Failure to include all of the above information may result in the delay of the processing of your complaint.
Read moreLast checked Jan 20, 12:00 am
- Jome
- New homes search
- South Carolina
- Charlotte Metropolitan Area
- York County
- Clover
- 3046 Meadowcrest Dr, Unit 69, Clover, SC 29710



























