









- 3 bd
- 2.5 ba
- 2,001 sqft
823 Coldsheet Dr, Sumter, SC 29154
- Single-Family
- $146.72/sqft
- 36 days on Jome
New Homes for Sale Near 823 Coldsheet Dr, Sumter, SC 29154
About this Home
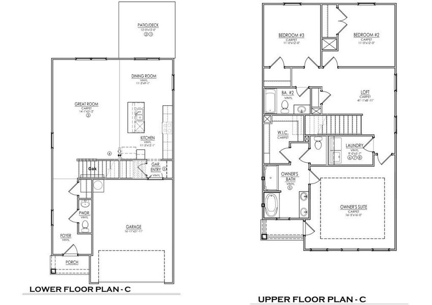
The Crestfall by Great Southern Homes is a charming two-story home featuring a classic design with modern accents. The lower floor boasts a spacious great room, dining area, and modern kitchen with elegant cabinetry, a sleek backsplash, and a double oven with gas. The upper floor includes a luxurious owner's suite with a balcony, offering a private retreat. The owner's suite bathroom features a separate tiled shower and tub, double vanities, and a huge walk-in closet. Two additional bedrooms, a loft providing family room space, and a convenient laundry room with cabinets complete the upper floor.
May also be listed on the Great Southern Homes website
Information last verified by Jome: Thursday at 6:08 AM (December 18, 2025)
Home details
- Property status:
- Sold
- Size:
- 2,001 sqft
- Beds:
- 3
- Baths:
- 2
- Half baths:
- 1
- Garage spaces:
- 2
Construction details
- Builder Name:
- Great Southern Homes
Home features & finishes
- Garage/Parking:
- Garage

Community details
Southbridge
by Great Southern Homes, Sumter, SC
- 3 homes
- 11 plans
- 1,617 - 3,005 sqft
View Southbridge details
More homes in Southbridge
Floor plans in Southbridge
About the builder - Great Southern Homes
Neighborhood
Home address
Schools in Sumter County Consolidated School District
- Grades 09-12Privatetemple christian high school2.1 mi120 pinewood rdna
GreatSchools’ Summary Rating calculation is based on 4 of the school’s themed ratings, including test scores, student/academic progress, college readiness, and equity. This information should only be used as a reference. Jome is not affiliated with GreatSchools and does not endorse or guarantee this information. Please reach out to schools directly to verify all information and enrollment eligibility. Data provided by GreatSchools.org © 2025
Places of interest
Getting around
Air quality
Noise level
A Soundscore™ rating is a number between 50 (very loud) and 100 (very quiet) that tells you how loud a location is due to environmental noise.
Natural hazards risk
Climate hazards can impact homes and communities, with risks varying by location. These scores reflect the potential impact of natural disasters and climate-related risks on Sumter County
Provided by FEMA
Financials
Nearby communities in Sumter
Homes in Sumter by Great Southern Homes
Recently added communities in this area
Other Builders in Sumter, SC
Nearby sold homes
New homes in nearby cities
More New Homes in Sumter, SC
- Jome
- New homes search
- South Carolina
- Sumter County
- Sumter
- Southbridge
- 823 Coldsheet Dr, Sumter, SC 29154












































































