














Book your tour. Save an average of $18,473. We'll handle the rest.
We collect exclusive builder offers, book your tours, and support you from start to housewarming.
- Confirmed tours
- Get matched & compare top deals
- Expert help, no pressure
- No added fees
Estimated value based on Jome data, T&C apply






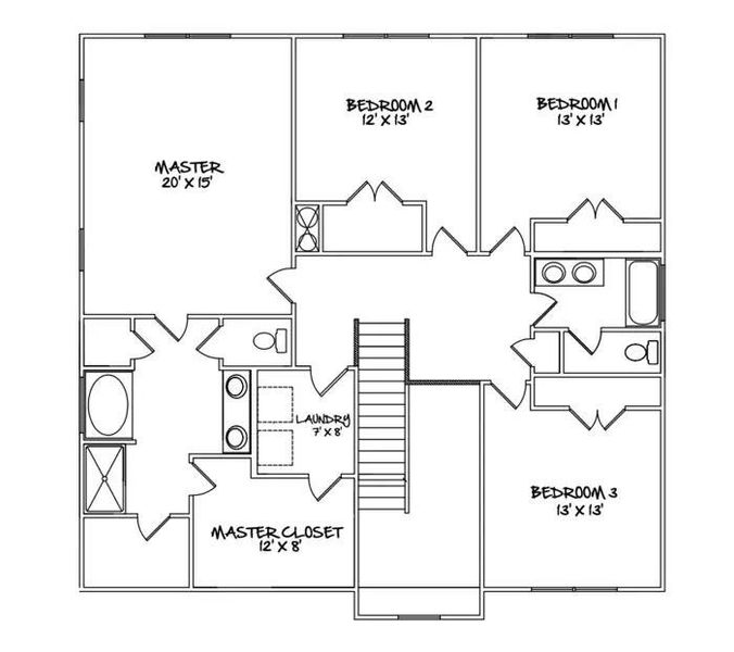
- 5 bd
- 3 ba
- 3,023 sqft
Edgefield, SC 29824
Why tour with Jome?
- No pressure toursTour at your own pace with no sales pressure
- Expert guidanceGet insights from our home buying experts
- Exclusive accessSee homes and deals not available elsewhere
Jome is featured in
- Single-Family
- Quick move-in
- $109.79/sqft
- 0.19-acre lot
Home description
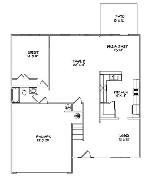
Builder is currently offering a $10,000 incentive! (Some restrictions apply). With over 3,000 square feet and 5 spacious bedrooms, the Durham blends the best features of classic style and modern living convenience. With coffee in hand, enjoy pleasant morning views from the kitchen--which overlooks the rear patio--and enjoy evening meals in a grand, formal dining space. A large owners suite upstairs boasts an oversized closet, double vanities in the master bath, and plenty of space to relax. Kitchen features stainless steel under mount sink and granite countertops. Stainless steel Whirlpool brand appliances include free standing electric range, matching 1000W microwave, and EnergyStar dishwasher.Flooring is luxury vinyl tile in living areas, bathrooms, and laundry with carpet in bedrooms and loft. Vyve cable internet available with underground utilities. This home is a pre-construction opportunity. You can select your lot and your colors!
Weichert Realtors - Pendarvis Company, MLS 25029769
Information last verified by Jome: Yesterday at 7:37 AM (March 5, 2026)
Book your tour. Save an average of $18,473. We'll handle the rest.
We collect exclusive builder offers, book your tours, and support you from start to housewarming.
- Confirmed tours
- Get matched & compare top deals
- Expert help, no pressure
- No added fees
Estimated value based on Jome data, T&C apply
Home details
- Property status:
- Move-in ready
- Lot size (acres):
- 0.19
- Size:
- 3,023 sqft
- Stories:
- 2
- Beds:
- 5
- Baths:
- 3
- Garage spaces:
- 2
Construction details
- Year Built:
- 2025
- Roof:
- Asphalt Roofing
Home features & finishes
- Construction Materials:
- Vinyl Siding
- Cooling:
- Central Air
- Flooring:
- Vinyl FlooringCarpet Flooring
- Garage/Parking:
- GarageOff-Street Garage/ParkingAttached Garage
- Interior Features:
- Walk-In Closet
- Laundry facilities:
- DryerWasherUtility/Laundry Room
- Rooms:
- Dining RoomFamily RoomSeparate Living and Dining

Get a consultation with our New Homes Expert
- See how your home builds wealth
- Plan your home-buying roadmap
- Discover hidden gems
Utility information
- Heating:
- Heat Pump
Neighborhood
Home address
Schools in Edgefield County School District
GreatSchools’ Summary Rating calculation is based on 4 of the school’s themed ratings, including test scores, student/academic progress, college readiness, and equity. This information should only be used as a reference. Jome is not affiliated with GreatSchools and does not endorse or guarantee this information. Please reach out to schools directly to verify all information and enrollment eligibility. Data provided by GreatSchools.org © 2025
Getting around
Air quality
Natural hazards risk
Provided by FEMA

Considering this home?
Our expert will guide your tour, in-person or virtual
Need more information?
Text or call (888) 488-9243
Financials
Estimated monthly payment
Let us help you find your dream home
How many bedrooms are you looking for?
Similar homes nearby
Recently added communities in this area
Nearby communities in Edgefield
New homes in nearby cities
More New Homes in Edgefield, SC
Weichert Realtors - Pendarvis Company, MLS 25029769
IDX information is provided exclusively for personal, non-commercial use, and may not be used for any purpose other than to identify prospective properties consumers may be interested in purchasing. Copyright Charleston Trident Multiple Listing Service, Inc. All rights reserved. Information is deemed reliable but not guaranteed.
Read moreLast checked Mar 6, 1:55 am
- Jome
- New homes search
- South Carolina
- Edgefield County
- Edgefield
- Edgefield, SC 29824























