




































- 3 bd
- 2.5 ba
- 1,812 sqft
4 River Fork Trl, Piedmont, SC 29605
- Single-Family
- $182.06/sqft
- 126 days on Jome
New Homes for Sale Near 4 River Fork Trl, Piedmont, SC 29605
About this Home
About this home
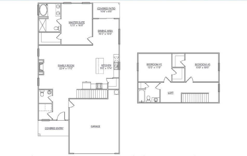
Check out 4 River Fork Trail, a beautiful new home in our Edgewood Estates community! This thoughtfully designed two-story home offers approximately 1,812 square feet of living space and features three bedrooms, two and a half bathrooms, an upstairs loft, and a two-car garage. With its modern style and functional layout, this home is designed to fit today’s lifestyle.
The main level features an open-concept design with 9-foot ceilings throughout. The spacious living room includes a raised-hearth gas log fireplace with stone to the mantel, creating a cozy centerpiece for gatherings. The kitchen is beautifully appointed with 42-inch cabinetry accented by crown molding, upgraded granite countertops, and a ceramic tile backsplash, offering both style and convenience.
Upstairs, the primary suite provides a relaxing retreat with double sinks, a garden tub, and a separate upgraded ceramic tile shower with a frameless glass door. Quartz vanities are featured in all full bathrooms, and luxury vinyl plank flooring extends throughout the main living areas. A versatile loft provides additional space for work, recreation, or relaxation.
Outside, the screened patio offers the perfect spot to enjoy the outdoors, while the sodded lawn and irrigation system enhance the home’s appeal. With its modern finishes, spacious design, and thoughtful details, this home is the perfect place to call your own.
May also be listed on the D.R. Horton website
Information last verified by Jome: Wednesday at 1:59 AM (December 31, 2025)
Home details
- Property status:
- Sold
- Size:
- 1,812 sqft
- Stories:
- 2
- Beds:
- 3
- Baths:
- 2.5
- Garage spaces:
- 2
Construction details
- Builder Name:
- D.R. Horton
Home features & finishes
- Garage/Parking:
- Garage

Community details
Edgewood Estates
by D.R. Horton, Greenville, SC
- 1 home
- 4 plans
- 1,812 - 2,366 sqft
View Edgewood Estates details
More homes in Edgewood Estates
- Home at address 223 Chapel Creek Ct, Greenville, SC 29605

$351,985
Move-in ready- 3 bd
- 2.5 ba
- 1,828 sqft
223 Chapel Creek Ct, Greenville, SC 29605
Floor plans in Edgewood Estates
About the builder - D.R. Horton

- 1,201communities on Jome
- 9,858homes on Jome
Neighborhood
Home address
- City:
- Piedmont
- County:
- Greenville
- Zip Code:
- 29605
Schools in Greenville County School District
- Grades KG-12Privateconestee baptist day school2.3 mi145 2nd stna
GreatSchools’ Summary Rating calculation is based on 4 of the school’s themed ratings, including test scores, student/academic progress, college readiness, and equity. This information should only be used as a reference. Jome is not affiliated with GreatSchools and does not endorse or guarantee this information. Please reach out to schools directly to verify all information and enrollment eligibility. Data provided by GreatSchools.org © 2025
Places of interest
Getting around
Air quality
Financials
Nearby communities in Piedmont
Homes in Piedmont by D.R. Horton
Recently added communities in this area
Other Builders in Piedmont, SC
Nearby sold homes
New homes in nearby cities
More New Homes in Piedmont, SC
- Jome
- New homes search
- South Carolina
- Greenville County
- Piedmont
- Edgewood Estates
- 4 River Fork Trl, Piedmont, SC 29605



































































