














Book your tour. Save an average of $18,473. We'll handle the rest.
- Confirmed tours
- Get matched & compare top deals
- Expert help, no pressure
- No added fees
Estimated value based on Jome data, T&C apply































- 4 bd
- 3.5 ba
- 3,125 sqft
6444 St. Anthony Dr, Yonges Island, SC 29449
Why tour with Jome?
- No pressure toursTour at your own pace with no sales pressure
- Expert guidanceGet insights from our home buying experts
- Exclusive accessSee homes and deals not available elsewhere
Jome is featured in
- Single-Family
- Under construction
- $392/sqft
- 8.39-acre lot
Home description
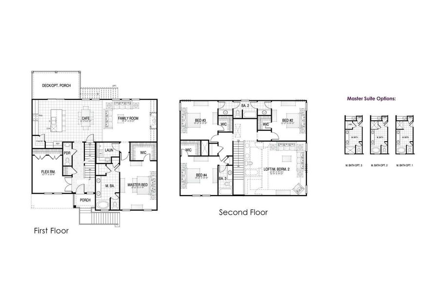
Beautiful 8+ acre lot on Yonges Island backing to serene marsh and a tidal creek -- the perfect setting for your dream home!This proposed luxury new-construction home has been thoughtfully priced with the features shown in the photos, making it an easy choice for those seeking both charm and value. Designed for comfort, functionality, and style, this elevated 4-bedroom, 3.5-bath residence showcases exceptional craftsmanship and coastal-inspired design.The main level features a private primary suite offering convenience and tranquility, while the open-concept layout seamlessly connects the living, dining, and gourmet kitchen areas - perfect for entertaining and everyday living.The designer kitchen includes shaker-style cabinetry with a farm sink, quartz countertops, a gas range, pot filler, full-height cabinets, and a nice backsplash to tie it all together. There is a three panel glass sliding door giving you access to your back porch with marsh views! Adjacent to the kitchen is a beautiful dining space and a spacious family room featuring a gas fireplace with custom tile surround, a wood mantel, and built-in cabinets. The coffered ceiling and abundance of natural light create a warm, inviting living area.
Additional main floor highlights include low maintenance LVP floors throughout the main level, a butler's pantry connecting to a front office or flex space, and a luxurious primary suite with a walk-in closet, dual vanity, a freestanding soaking tub, and a walk-in tile shower with a frameless glass shower door!
Upstairs, you'll find a roomy loft - ideal for a second living space or you can make this a fifth bedroom - along with three spacious bedrooms. Two share a Jack-and-Jill bath with separate vanities, and the third enjoys its own private ensuite bathroom.
This proposed construction by Hunter Quinn is priced to represent both the home with the finishes shown in the photos and the lot. Buyers have the flexibility to customize the design and finishes of this plan or choose an alternative layout that better suits their needs. Alternatively, buyers can select their own builder. Pricing may vary based on customizations and lot preparation; however, some allowances for clearing, driveway, permits, and site work have been factored into the construction estimate. The lot itself would be purchased first and the buyers would enter into a separate contract with the builder.
AgentOwned Realty Preferred Group, MLS 25027351
Information last verified by Jome: Today at 7:44 AM (December 5, 2025)
Home highlights
Laid-back surf town vibe with eclectic charm, vibrant nightlife, and easy access to downtown Charleston.
Book your tour. Save an average of $18,473. We'll handle the rest.
We collect exclusive builder offers, book your tours, and support you from start to housewarming.
- Confirmed tours
- Get matched & compare top deals
- Expert help, no pressure
- No added fees
Estimated value based on Jome data, T&C apply
Home details
- Property status:
- Under construction
- Lot size (acres):
- 8.39
- Size:
- 3,125 sqft
- Stories:
- 2
- Beds:
- 4
- Baths:
- 3
- Half baths:
- 1
- Garage spaces:
- 2
Construction details
- Year Built:
- 2026
- Roof:
- Metal Roofing, Asphalt Roofing
Home features & finishes
- Cooling:
- Central Air
- Flooring:
- Ceramic FlooringVinyl FlooringCarpet FlooringTile Flooring
- Garage/Parking:
- Garage
- Interior Features:
- Ceiling-HighWalk-In ClosetLoftGarden Tub
- Kitchen:
- Kitchen Island
- Laundry facilities:
- WasherUtility/Laundry Room
- Property amenities:
- Gas Log FireplaceFireplace
- Rooms:
- KitchenOffice/StudyDining RoomFamily RoomLiving Room
Utility information
- Heating:
- Central Heating
Neighborhood
Home address
- City:
- Yonges Island
- County:
- Charleston
- Zip Code:
- 29449
Schools in Charleston County School District
GreatSchools’ Summary Rating calculation is based on 4 of the school’s themed ratings, including test scores, student/academic progress, college readiness, and equity. This information should only be used as a reference. Jome is not affiliated with GreatSchools and does not endorse or guarantee this information. Please reach out to schools directly to verify all information and enrollment eligibility. Data provided by GreatSchools.org © 2025
Places of interest
Getting around
Air quality
Natural hazards risk
Climate hazards can impact homes and communities, with risks varying by location. These scores reflect the potential impact of natural disasters and climate-related risks on Charleston County
Provided by FEMA

Considering this home?
Our expert will guide your tour, in-person or virtual
Need more information?
Text or call (888) 486-2818
Financials
Similar homes nearby
Recently added communities in this area
Nearby communities in Yonges Island
New homes in nearby cities
More New Homes in Yonges Island, SC
AgentOwned Realty Preferred Group, MLS 25027351
IDX information is provided exclusively for personal, non-commercial use, and may not be used for any purpose other than to identify prospective properties consumers may be interested in purchasing. Copyright Charleston Trident Multiple Listing Service, Inc. All rights reserved. Information is deemed reliable but not guaranteed.
Read moreLast checked Dec 5, 7:55 am
- Home
- New homes
- South Carolina
- Charleston Metropolitan Area
- Charleston County
- Yonges Island
- 6444 St. Anthony Dr, Yonges Island, SC 29449


























