








Book your tour. Save an average of $18,473. We'll handle the rest.
We collect exclusive builder offers, book your tours, and support you from start to housewarming.
- Confirmed tours
- Get matched & compare top deals
- Expert help, no pressure
- No added fees
Estimated value based on Jome data, T&C apply
































- 5 bd
- 3.5 ba
- 3,160 sqft
1100 Creek Pointe Dr, Moncks Corner, SC 29461
Why tour with Jome?
- No pressure toursTour at your own pace with no sales pressure
- Expert guidanceGet insights from our home buying experts
- Exclusive accessSee homes and deals not available elsewhere
Jome is featured in
- Single-Family
- Quick move-in
- $150.28/sqft
- 0.13-acre lot
Home description
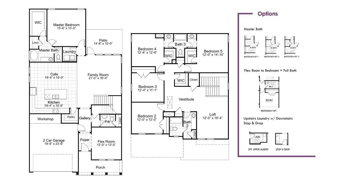
The Belmont welcomes you with 3,160 sq. ft. of thoughtfully designed space, offering 5 bedrooms and 3.5 baths--with the flexibility to expand to 7 bedrooms. On the first floor, an open-concept living and dining area creates the perfect backdrop for gatherings, while the private owner's suite offers a spacious retreat tucked away from it all. A versatile flex room at the entry adds even more possibilities for work or play. Upstairs, you'll find four secondary bedrooms, two full baths, and a roomy loft that can serve as a media space, study, or lounge. With oversized walk-in closets, smart storage throughout, and a layout that adapts to your lifestyle, the Belmont truly has something for everyone.
HQ Real Estate LLC, MLS 25025836
May also be listed on the Hunter Quinn Homes website
Information last verified by Jome: Today at 7:38 AM (May 19, 2026)
Home highlights
Cutting-edge data hub in Berkeley County boosting tech jobs, infrastructure, and digital growth in the Charleston area.
Book your tour. Save an average of $18,473. We'll handle the rest.
We collect exclusive builder offers, book your tours, and support you from start to housewarming.
- Confirmed tours
- Get matched & compare top deals
- Expert help, no pressure
- No added fees
Estimated value based on Jome data, T&C apply
Home details
- Property status:
- Move-in ready
- Lot size (acres):
- 0.13
- Size:
- 3,160 sqft
- Stories:
- 2
- Beds:
- 5
- Baths:
- 3
- Half baths:
- 1
- Garage spaces:
- 2
Construction details
- Builder Name:
- Hunter Quinn Homes
- Year Built:
- 2025
Home features & finishes
- Construction Materials:
- Vinyl Siding
- Cooling:
- Ceiling Fan(s)Central Air
- Flooring:
- Vinyl FlooringCarpet Flooring
- Garage/Parking:
- Garage
- Interior Features:
- Ceiling-HighWalk-In Closet
- Laundry facilities:
- DryerWasher

Get a consultation with our New Homes Expert
- See how your home builds wealth
- Plan your home-buying roadmap
- Discover hidden gems
Utility information
- Heating:
- Electric Heating, Heat Pump
- Sewer:
- Public Sewer
- Water source:
- Public
Community amenities
- Walking, Jogging, Hike Or Bike Trails
About the builder - Hunter Quinn Homes
Neighborhood
Home address
- City:
- Moncks Corner
- County:
- Berkeley
- Zip Code:
- 29461
Schools in Berkeley County School District
GreatSchools’ Summary Rating calculation is based on 4 of the school’s themed ratings, including test scores, student/academic progress, college readiness, and equity. This information should only be used as a reference. Jome is not affiliated with GreatSchools and does not endorse or guarantee this information. Please reach out to schools directly to verify all information and enrollment eligibility. Data provided by GreatSchools.org © 2025
Places of interest
Getting around
Air quality
Noise level
A Soundscore™ rating is a number between 50 (very loud) and 100 (very quiet) that tells you how loud a location is due to environmental noise.
Natural hazards risk
Provided by FEMA

Considering this home?
Our expert will guide your tour, in-person or virtual
Need more information?
Text or call (888) 545-5198
Financials
Estimated monthly payment
Let us help you find your dream home
How many bedrooms are you looking for?
Similar homes nearby
Recently added communities in this area
Nearby communities in Moncks Corner
New homes in nearby cities
More New Homes in Moncks Corner, SC
HQ Real Estate LLC, MLS 25025836
IDX information is provided exclusively for personal, non-commercial use, and may not be used for any purpose other than to identify prospective properties consumers may be interested in purchasing. Copyright Charleston Trident Multiple Listing Service, Inc. All rights reserved. Information is deemed reliable but not guaranteed.
Read moreLast checked May 19, 7:55 am
- Jome
- New homes search
- South Carolina
- Charleston Metropolitan Area
- Berkeley County
- Moncks Corner
- 1100 Creek Pointe Dr, Moncks Corner, SC 29461





























