








Book your tour. Save an average of $18,473. We'll handle the rest.
We collect exclusive builder offers, book your tours, and support you from start to housewarming.
- Confirmed tours
- Get matched & compare top deals
- Expert help, no pressure
- No added fees
Estimated value based on Jome data, T&C apply

















- 3 bd
- 3.5 ba
- 3,460 sqft
1964 Central Ests, Summerville, SC 29483
Why tour with Jome?
- No pressure toursTour at your own pace with no sales pressure
- Expert guidanceGet insights from our home buying experts
- Exclusive accessSee homes and deals not available elsewhere
Jome is featured in
- Single-Family
- Quick move-in
- $170.52/sqft
- East facing
Home description
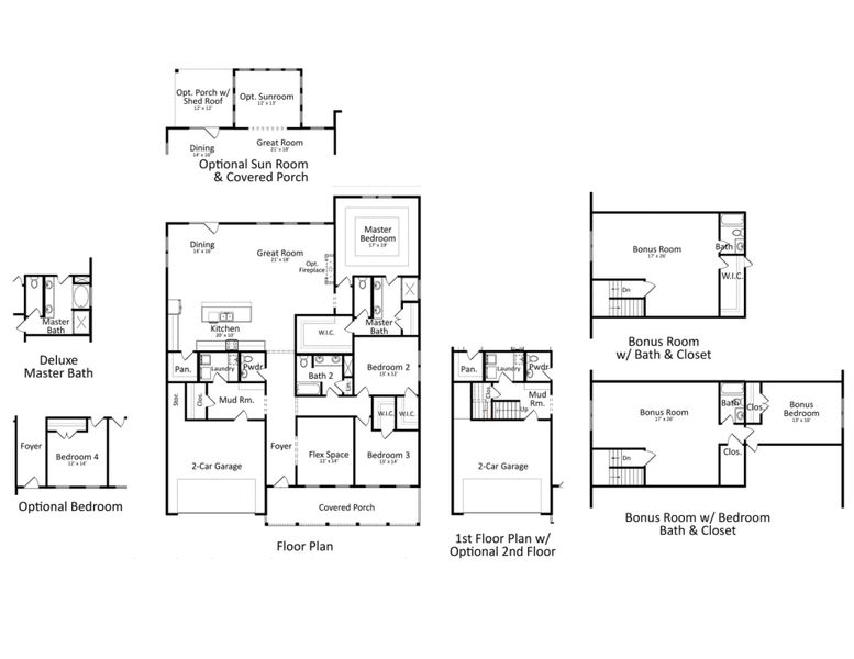
Ready NOW! .68 ACRE LOT/3 CAR GARAGE!! Iron fence at front yard! Say hello to style, space, and Southern charm at 1964 Central Avenue in beautiful Summerville! This stunning 3-bedroom, 3.5-bath home spans an impressive 3,460 sq ft and sits on a 0.68-acre lot in the Central Estates community. With a designer-inspired Sumter floor plan, you'll fall in love with the gourmet kitchen, oversized island, and cozy gas fireplace that anchors the light-filled living room. The main-level owners suite is a dream with a spa-like bath and walk-in closet, while the upstairs bonus room offers endless potential -think media room, guest suite, or creative escape. High ceilings, a dedicated study with French doors, and a 3-car garage round out this picture-perfect home!
Carolina One Real Estate, MLS 25011545
May also be listed on the Center Park Homes website
Information last verified by Jome: Yesterday at 7:39 AM (May 4, 2026)
Book your tour. Save an average of $18,473. We'll handle the rest.
We collect exclusive builder offers, book your tours, and support you from start to housewarming.
- Confirmed tours
- Get matched & compare top deals
- Expert help, no pressure
- No added fees
Estimated value based on Jome data, T&C apply
Home details
- Property status:
- Move-in ready
- Lot size (acres):
- 0.68
- Size:
- 3,460 sqft
- Stories:
- 2
- Beds:
- 3
- Baths:
- 3
- Half baths:
- 1
- Garage spaces:
- 3
- Facing direction:
- East
Construction details
- Builder Name:
- Center Park Homes
- Year Built:
- 2025
- Roof:
- Roof Gutter
Home features & finishes
- Construction Materials:
- Vinyl Siding
- Flooring:
- Ceramic FlooringVinyl FlooringCarpet FlooringTile Flooring
- Garage/Parking:
- Door OpenerGarageGarage StorageAttached Garage
- Interior Features:
- Ceiling-HighWalk-In ClosetFoyerPantryLoft
- Kitchen:
- Kitchen Island
- Laundry facilities:
- DryerWasherUtility/Laundry Room
- Property amenities:
- Gas Log FireplaceIrrigationFireplacePorch
- Rooms:
- Sun RoomFlex RoomPrimary Bedroom On MainKitchenPowder RoomOffice/StudyMudroomDining RoomFamily RoomOpen Concept FloorplanPrimary Bedroom Downstairs

Get a consultation with our New Homes Expert
- See how your home builds wealth
- Plan your home-buying roadmap
- Discover hidden gems
Utility information
- Heating:
- Gas Heating
- Sewer:
- Septic Tank
- Water source:
- Public

Community details
Central Estates
by Center Park Homes, Summerville, SC
- 4 homes
- 7 plans
- 2,150 - 3,460 sqft
View Central Estates details
More homes in Central Estates
- Home at address 1960 Central Ave, Summerville, SC 29483

Mercer
$532,990
- 4 bd
- 3.5 ba
- 3,055 sqft
1960 Central Ave, Summerville, SC 29483
- Home at address 1956 Central Ave, Summerville, SC 29483

Putnam
$562,990
- 3 bd
- 3.5 ba
- 2,793 sqft
1956 Central Ave, Summerville, SC 29483
- Home at address 1968 Central Ave, Summerville, SC 29483

Putnam
$569,990
- 4 bd
- 3.5 ba
- 3,191 sqft
1968 Central Ave, Summerville, SC 29483
Floor plans in Central Estates
About the builder - Center Park Homes
Neighborhood
Home address
- City:
- Summerville
- Zip Code:
- 29483
Schools in Dorchester School District 2
GreatSchools’ Summary Rating calculation is based on 4 of the school’s themed ratings, including test scores, student/academic progress, college readiness, and equity. This information should only be used as a reference. Jome is not affiliated with GreatSchools and does not endorse or guarantee this information. Please reach out to schools directly to verify all information and enrollment eligibility. Data provided by GreatSchools.org © 2025
Places of interest
Getting around
Air quality
Noise level
A Soundscore™ rating is a number between 50 (very loud) and 100 (very quiet) that tells you how loud a location is due to environmental noise.

Considering this home?
Our expert will guide your tour, in-person or virtual
Need more information?
Text or call (888) 545-5198
Financials
Estimated monthly payment
Let us help you find your dream home
How many bedrooms are you looking for?
Similar homes nearby
Recently added communities in this area
Nearby communities in Summerville
New homes in nearby cities
More New Homes in Summerville, SC
Carolina One Real Estate, MLS 25011545
IDX information is provided exclusively for personal, non-commercial use, and may not be used for any purpose other than to identify prospective properties consumers may be interested in purchasing. Copyright Charleston Trident Multiple Listing Service, Inc. All rights reserved. Information is deemed reliable but not guaranteed.
Read moreLast checked May 4, 7:55 pm
- Jome
- New homes search
- South Carolina
- Charleston Metropolitan Area
- Summerville
- Central Estates
- 1964 Central Ests, Summerville, SC 29483



































