














Book your tour. Save an average of $18,473. We'll handle the rest.
We collect exclusive builder offers, book your tours, and support you from start to housewarming.
- Confirmed tours
- Get matched & compare top deals
- Expert help, no pressure
- No added fees
Estimated value based on Jome data, T&C apply





























Why tour with Jome?
- No pressure toursTour at your own pace with no sales pressure
- Expert guidanceGet insights from our home buying experts
- Exclusive accessSee homes and deals not available elsewhere
Jome is featured in
- Single-Family
- Quick move-in
- $162.79/sqft
- 257 days on Jome
Home description
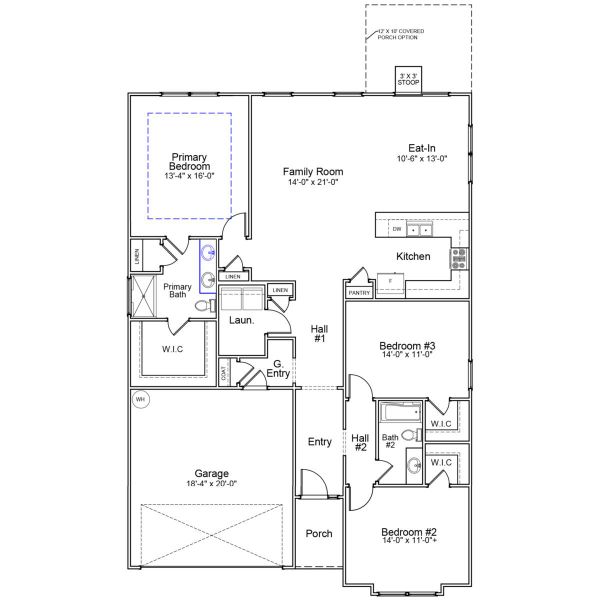
Experience easy one-story living in the Durham D floorplan—designed for comfort, style, and togetherness. The open kitchen, dining, and living areas are perfect for gatherings with loved ones and everyday living. The spacious primary suite includes a five-foot tiled shower with glass doors, double sinks, ample cabinetry, and a large walk-in closet. Enjoy granite countertops, a tile backsplash, and Luxury Vinyl Plank flooring throughout the main areas. The oversized laundry room offers space for a second fridge, freezer, or added storage. A covered 10-foot by 12-foot back porch invites outdoor relaxing, while both secondary bedrooms feature walk-in closets. Decorative garage doors complete the look. House hunting from out of town? Plan your visit with our Stay-and-Play Package and experience the lifestyle, amenities, and homes at Fairway Woods at Wyboo in one relaxing visit. We cover a one-night stay and a round of golf, along with personalized tours of the community, homes, and amenities with a Mungo Homes New Home Advisor. Call for terms and details.
May also be listed on the Mungo Homes website
Information last verified by Jome: Today at 5:54 AM (March 6, 2026)
Book your tour. Save an average of $18,473. We'll handle the rest.
We collect exclusive builder offers, book your tours, and support you from start to housewarming.
- Confirmed tours
- Get matched & compare top deals
- Expert help, no pressure
- No added fees
Estimated value based on Jome data, T&C apply
Home details
- Property status:
- Move-in ready
- Size:
- 1,718 sqft
- Stories:
- 1
- Beds:
- 3
- Baths:
- 2
- Garage spaces:
- 2
Construction details
- Builder Name:
- Mungo Homes
- Completion Date:
- September, 2025
Home features & finishes
- Garage/Parking:
- Garage
- Rooms:
- Primary Bedroom On MainPrimary Bedroom Downstairs

Get a consultation with our New Homes Expert
- See how your home builds wealth
- Plan your home-buying roadmap
- Discover hidden gems

Community details
Fairway Woods at Wyboo
by Mungo Homes, Manning, SC
- 4 homes
- 9 plans
- 1,433 - 2,431 sqft
View Fairway Woods at Wyboo details
More homes in Fairway Woods at Wyboo
- Home at address 1015 Carolina Wy, Manning, SC 29102

Dorchester
$269,000
- 3 bd
- 2 ba
- 1,677 sqft
1015 Carolina Wy, Manning, SC 29102
- Home at address 1000 Carolina Wy, Manning, SC 29102

Gwinnett
$275,000
- 4 bd
- 2 ba
- 1,823 sqft
1000 Carolina Wy, Manning, SC 29102
- Home at address 1001 Par Three Ct, Manning, SC 29102

Durham
$277,000
- 3 bd
- 2 ba
- 1,823 sqft
1001 Par Three Ct, Manning, SC 29102
Floor plans in Fairway Woods at Wyboo
- View details for Howard - Genesis Value Collection

Howard - Genesis Value Collection
$259,000+- 3 bd
- 2 ba
- 1,433 sqft
- View details for Lawrence - Genesis Value Collection

Lawrence - Genesis Value Collection
$261,000+- 3 bd
- 2 ba
- 1,500 sqft
About the builder - Mungo Homes
Neighborhood
Home address
Schools in Clarendon School District 1
- Grades 03-05Publicst. paul elementary school5.5 mi9297 alex harvin highwayna
- Grades 06-08Publicscott's branch middle school5.6 mi9253 alex harvin highwayna
- Grades 09-12Publicscott's branch high5.6 mi9253 alex harvin highwayna
GreatSchools’ Summary Rating calculation is based on 4 of the school’s themed ratings, including test scores, student/academic progress, college readiness, and equity. This information should only be used as a reference. Jome is not affiliated with GreatSchools and does not endorse or guarantee this information. Please reach out to schools directly to verify all information and enrollment eligibility. Data provided by GreatSchools.org © 2025
Places of interest
Getting around

Considering this home?
Our expert will guide your tour, in-person or virtual
Need more information?
Text or call (888) 488-9243
Financials
Estimated monthly payment
Let us help you find your dream home
How many bedrooms are you looking for?
Similar homes nearby
Recently added communities in this area
Nearby communities in Manning
New homes in nearby cities
More New Homes in Manning, SC
- Jome
- New homes search
- South Carolina
- Clarendon County
- Manning
- Fairway Woods at Wyboo
- 1026 Carolina Wy, Manning, SC 29102





























