



- 3 bd
- 2 ba
- 1,899 sqft
1177 New Basin Dr, Inman, SC 29349
- Single-Family
- $175.43/sqft
- 286 days on Jome
New Homes for Sale Near 1177 New Basin Dr, Inman, SC 29349
About this Home
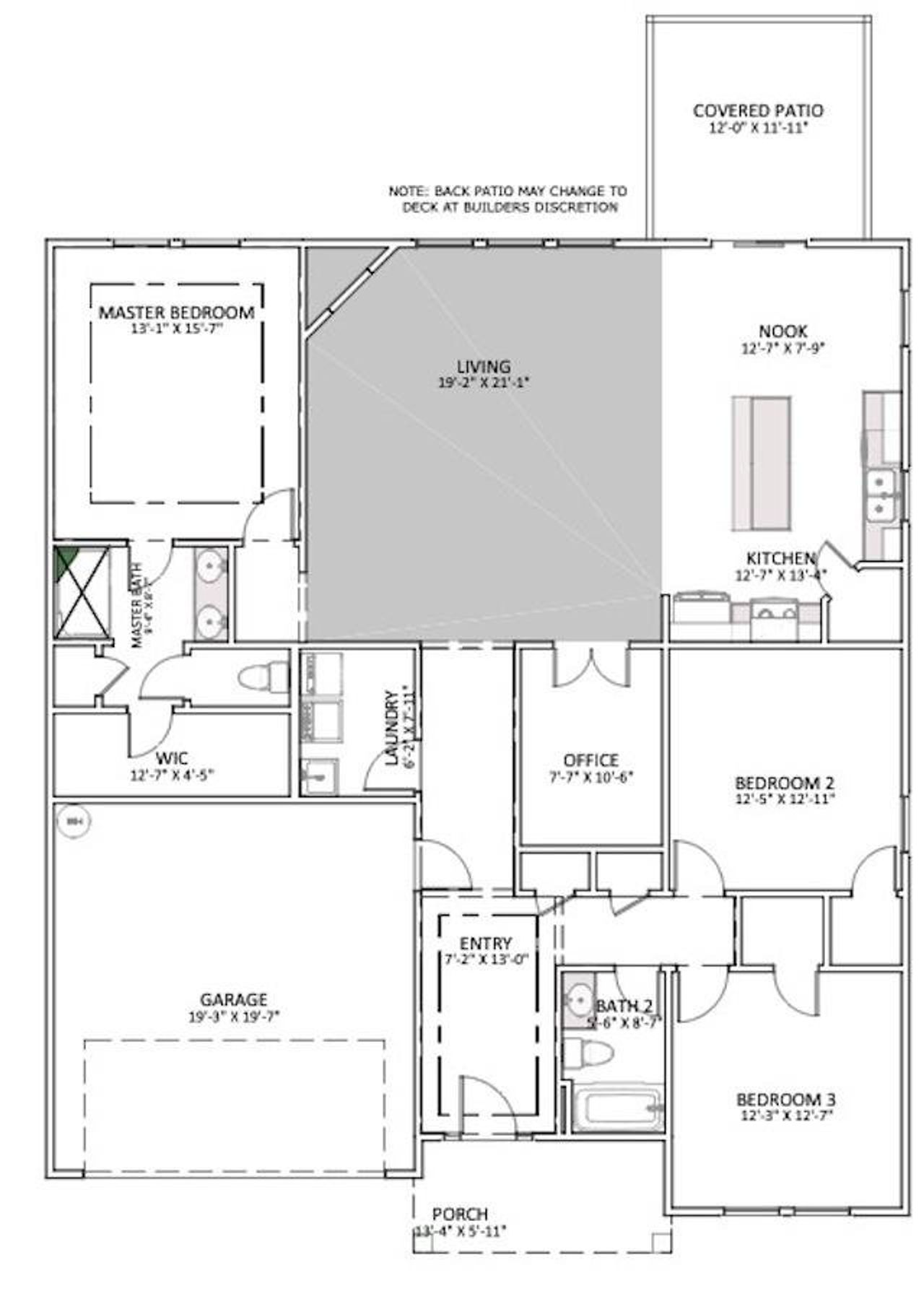
The Franklin floor plan features three-bedrooms, two-bathrooms and an office just off of the living area. Luxury vinyl plank flooring adds a touch of modern sophistication, while the kitchen boasts granite countertops. Cozy up next to the fireplace in the spacious living room, ideal for relaxing evenings. Step outside to the covered back patio, where you can enjoy outdoor dining or simply unwind. With meticulous attention to detail throughout, this home offers the perfect blend of comfort and luxury. Located just seconds from Lake Bowen in the brand new, New Prospect Haven community! Call today for more info!
May also be listed on the Enchanted Homes website
Information last verified by Jome: Thursday at 6:05 AM (January 22, 2026)
Home details
- Property status:
- Sold
- Size:
- 1,899 sqft
- Stories:
- 1
- Beds:
- 3
- Baths:
- 2
- Garage spaces:
- 2
Construction details
- Builder Name:
- Enchanted Homes
Home features & finishes
- Garage/Parking:
- Garage
- Rooms:
- Primary Bedroom On MainPrimary Bedroom Downstairs

Community details
New Prospect Haven
by Enchanted Homes, Inman, SC
- 31 plans
- 1,247 - 2,411 sqft
View New Prospect Haven details
Floor plans in New Prospect Haven
About the builder - Enchanted Homes
Neighborhood
Home address
- City:
- Inman
- County:
- Spartanburg
- Zip Code:
- 29349
Schools in Spartanburg School District 1
GreatSchools’ Summary Rating calculation is based on 4 of the school’s themed ratings, including test scores, student/academic progress, college readiness, and equity. This information should only be used as a reference. Jome is not affiliated with GreatSchools and does not endorse or guarantee this information. Please reach out to schools directly to verify all information and enrollment eligibility. Data provided by GreatSchools.org © 2025
Places of interest
Getting around
Air quality
Noise level
A Soundscore™ rating is a number between 50 (very loud) and 100 (very quiet) that tells you how loud a location is due to environmental noise.
Financials
Nearby communities in Inman
Homes in Inman by Enchanted Homes
Recently added communities in this area
Other Builders in Inman, SC
Nearby sold homes
New homes in nearby cities
More New Homes in Inman, SC
- Jome
- New homes search
- South Carolina
- Spartanburg County
- Inman
- New Prospect Haven
- 1177 New Basin Dr, Inman, SC 29349































































