
































- 5 bd
- 4 ba
- 3,490 sqft
248 Miramar Dr, York, SC 29745
- Single-Family
- $158.95/sqft
- 0.19-acre lot
- 278 days on Jome
New Homes for Sale Near 248 Miramar Dr, York, SC 29745
About this Home
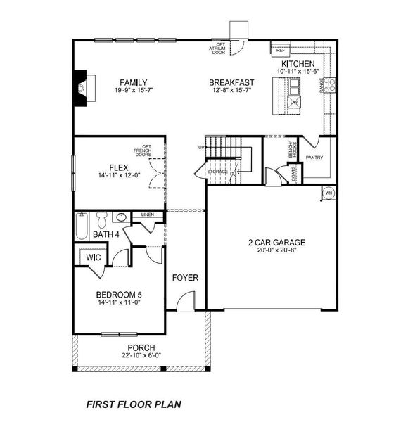
The New Wylie floorplan NOW under construction. Please call onsite agent to verify construction stage. This impressive home starts with an inviting front porch where the entry is flanked with a dining room on one side and an office on the other. Main floor also has a guest room, full bathroom, & large family room w/Fireplace open to kitchen w/Island! Chef's kitchen boast quartz counters, double wall oven and a gas cooktop. 2nd floor has spacious loft, 3 bedrooms along with the Primary that includes 2 Walk-in closets, separate tub & shower w/dual vanity! All this and a large pool & clubhouse to come and only a few minutes to a Lake Wylie boat ramp & park. Home is connected includes programmable thermostat, Z-Wave door lock and wireless light switch, touchscreen control device, automation platform, and video doorbell! All features are subject to change without notice.
Conveniently Self-Tour on your own between the hours of 7am-9pm daily using NterNow!
DR Horton Inc, MLS CAR4270443
May also be listed on the D.R. Horton website
Information last verified by Jome: Monday at 3:53 PM (March 9, 2026)
Home details
- Property status:
- Sold
- Lot size (acres):
- 0.19
- Size:
- 3,490 sqft
- Stories:
- 2
- Beds:
- 5
- Baths:
- 4
- Garage spaces:
- 2
Construction details
- Builder Name:
- D.R. Horton
- Year Built:
- 2026
- Roof:
- Shingle Roofing
Home features & finishes
- Appliances:
- Exhaust Fan
- Construction Materials:
- CementStone
- Cooling:
- Central Air
- Flooring:
- Vinyl FlooringCarpet Flooring
- Foundation Details:
- Slab
- Garage/Parking:
- Door OpenerGarageFront Entry Garage/ParkingAttached Garage
- Kitchen:
- DishwasherMicrowave OvenOvenDisposalGas CooktopDouble Oven
- Laundry facilities:
- Laundry Facilities On Upper LevelDryerWasherUtility/Laundry Room
- Property amenities:
- FireplacePorch
- Rooms:
- Living Room
- Security system:
- Smoke DetectorCarbon Monoxide Detector
Utility information
- Heating:
- Heat Pump, Water Heater, Tankless water heater

Community details
Westport
by D.R. Horton, York, SC
- 14 homes
- 20 plans
- 1,597 - 3,490 sqft
View Westport details
Community amenities
- Playground
- Fitness Center/Exercise Area
- Club House
- Community Pool
- Game Room/Area
- Sidewalks Available
- Mountain(s) View
- Walking, Jogging, Hike Or Bike Trails
More homes in Westport
- Home at address 569 Mahogany Rd, York, SC 29745

$499,000
Under construction- 5 bd
- 4 ba
- 3,212 sqft
569 Mahogany Rd, York, SC 29745
- Home at address 570 Mahogany Rd, York, SC 29745

$500,465
Under construction- 5 bd
- 4 ba
- 3,212 sqft
570 Mahogany Rd, York, SC 29745
- Home at address 577 Mahogany Rd, York, SC 29745

$510,440
Under construction- 5 bd
- 4 ba
- 3,093 sqft
577 Mahogany Rd, York, SC 29745
Floor plans in Westport
About the builder - D.R. Horton

- 1,171communities on Jome
- 10,155homes on Jome
Neighborhood
Home address
Schools in York School District 2
GreatSchools’ Summary Rating calculation is based on 4 of the school’s themed ratings, including test scores, student/academic progress, college readiness, and equity. This information should only be used as a reference. Jome is not affiliated with GreatSchools and does not endorse or guarantee this information. Please reach out to schools directly to verify all information and enrollment eligibility. Data provided by GreatSchools.org © 2025
Places of interest
Getting around
Air quality
Financials
Nearby communities in York
Homes in York by D.R. Horton
Recently added communities in this area
Other Builders in York, SC
Nearby sold homes
New homes in nearby cities
More New Homes in York, SC
DR Horton Inc, MLS CAR4270443
Based on information submitted to the MLS GRID as of 10/21/2024 2:31 PM CDT. All data is obtained from various sources and may not have been verified by the broker or MLS GRID. Supplied Open House Information is subject to change without notice. All information should be independently reviewed and verified for accuracy. Properties may or may not be listed by the office/agent presenting the information. Properties displayed may be listed or sold by various participants in the MLS. The Digital Millennium Copyright Act of 1998, 17 U.S.C. § 512 (the “DMCA”) provides recourse for copyright owners who believe that material appearing on the Internet infringes their rights under U.S. copyright law. If you believe in good faith that any content or material made available in connection with our website or services infringes your copyright, you (or your agent) may send us a notice requesting that the content or material be removed, or access to it blocked. Notices must be sent in writing by email to DMCAnotice@MLSGrid.com. The DMCA requires that your notice of alleged copyright infringement include the following information: (1) description of the copyrighted work that is the subject of claimed infringement; (2) description of the alleged infringing content and information sufficient to permit us to locate the content; (3) contact information for you, including your address, telephone number and email address; (4) a statement by you that you have a good faith belief that the content in the manner complained of is not authorized by the copyright owner, or its agent, or by the operation of any law; (5) a statement by you, signed under penalty of perjury, that the information in the notification is accurate and that you have the authority to enforce the copyrights that are claimed to be infringed; and (6) a physical or electronic signature of the copyright owner or a person authorized to act on the copyright owner’s behalf. Failure to include all of the above information may result in the delay of the processing of your complaint.
Read moreLast checked Mar 16, 11:00 pm
- Jome
- New homes search
- South Carolina
- Charlotte Metropolitan Area
- York County
- York
- Westport
- 248 Miramar Dr, York, SC 29745




































































